Aldebert Terrace, London, SW8

- PROPERTY TYPE
House
- BEDROOMS
8
- BATHROOMS
8
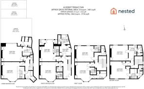
- SIZE
3,401 sq ft
316 sq m
- TENUREDescribes how you own a property. There are different types of tenure - freehold, leasehold, and commonhold.Read more about tenure in our glossary page.
Freehold
Key features
- Freehold
- Incredibly rare opportunity
- Largest house on the street
- Development opportunity
- High Ceilings
- Period features throughout
- 2 x private garages on the plot
- Chain-free sale
- Great transport links nearby
- Plenty of local amenities on the doorstep
Description
An incredibly rare opportunity to purchase this stunning, 3401 square foot house with two off-street garages on Aldebert Terrace, SW8. Currently split into 8 self contained studio apartments + additional office/ studio, this house could provide an incredible investment opportunity for a buy to let investor looking to modernise the units and then benefit from the rental income. Or, the building has the potential to be one of the best houses in the area with a full internal re-build. Boasting high ceilings, huge windows and original period features throughout, this house has the wow factor.
Aldebert Terrace is within a low traffic zone and is conveniently located in the South Lambeth conservation area by Albert Square and the large selection of local shops, cafes and amenities on South Lambeth Road, including the Canton Arms Pub and 'Little Portugal'. The popular Oval farmers' market, Kennington Park and the iconic site of the Oval Cricket Ground are within easy reach, as well as nearby Vauxhall with the bridge providing access to Pimlico, Westminster and Victoria. For transport links, Stockwell Underground Station (Northern & Victoria Lines), Vauxhall Station (Victoria Line & mainline South West Trains), Nine Elms Underground Station (Northern Line) and Vauxhall Bus Station are no more than a 10 minutes' walk.
EPC Rating: E
Parking - Garage
- COUNCIL TAXA payment made to your local authority in order to pay for local services like schools, libraries, and refuse collection. The amount you pay depends on the value of the property.Read more about council Tax in our glossary page.
- Band: G
- PARKINGDetails of how and where vehicles can be parked, and any associated costs.Read more about parking in our glossary page.
- Garage
- GARDENA property has access to an outdoor space, which could be private or shared.
- Private garden
- ACCESSIBILITYHow a property has been adapted to meet the needs of vulnerable or disabled individuals.Read more about accessibility in our glossary page.
- Ask agent
Energy performance certificate - ask agent
Aldebert Terrace, London, SW8
Add an important place to see how long it'd take to get there from our property listings.
__mins driving to your place
Get an instant, personalised result:
- Show sellers you’re serious
- Secure viewings faster with agents
- No impact on your credit score
Your mortgage
Notes
Staying secure when looking for property
Ensure you're up to date with our latest advice on how to avoid fraud or scams when looking for property online.
Visit our security centre to find out moreDisclaimer - Property reference d81523fa-e8ae-45bd-b2ab-68bdc581cf27. The information displayed about this property comprises a property advertisement. Rightmove.co.uk makes no warranty as to the accuracy or completeness of the advertisement or any linked or associated information, and Rightmove has no control over the content. This property advertisement does not constitute property particulars. The information is provided and maintained by Nested, Nationwide. Please contact the selling agent or developer directly to obtain any information which may be available under the terms of The Energy Performance of Buildings (Certificates and Inspections) (England and Wales) Regulations 2007 or the Home Report if in relation to a residential property in Scotland.
*This is the average speed from the provider with the fastest broadband package available at this postcode. The average speed displayed is based on the download speeds of at least 50% of customers at peak time (8pm to 10pm). Fibre/cable services at the postcode are subject to availability and may differ between properties within a postcode. Speeds can be affected by a range of technical and environmental factors. The speed at the property may be lower than that listed above. You can check the estimated speed and confirm availability to a property prior to purchasing on the broadband provider's website. Providers may increase charges. The information is provided and maintained by Decision Technologies Limited. **This is indicative only and based on a 2-person household with multiple devices and simultaneous usage. Broadband performance is affected by multiple factors including number of occupants and devices, simultaneous usage, router range etc. For more information speak to your broadband provider.
Map data ©OpenStreetMap contributors.




