Tower Hill, Witney, OX28

- PROPERTY TYPE
Terraced
- BEDROOMS
3
- BATHROOMS
1
- SIZE
Ask agent
- TENUREDescribes how you own a property. There are different types of tenure - freehold, leasehold, and commonhold.Read more about tenure in our glossary page.
Freehold
Key features
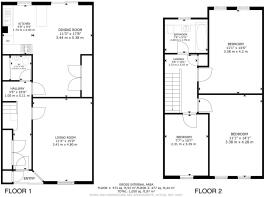
- Three bedroom family house
- Easy reach of the town centre shops and schooling
- Sitting Room & Kitchen/Dining Room
- Cloakroom & Bathroom
- Parking Space & Garden
Description
A conveniently located modern three bedroom family house, available with no onward chain and within easy reach of the many town centre amenities.
The accommodation briefly comprises porch, entrance hall, cloakroom, sitting room, a spacious kitchen/dining room with patio doors accessing the westerly facing rear garden, three first floor bedrooms and a bathroom. Gas central heating, gardens and an allocated parking space close by.
Freehold. Annual Service Charge: £241.00 (Clarion Housing takes care of garden areas around parking spaces).
Witney is an attractive town steeped in history, with good modern amenities and a bustling community life. There are fine buildings surrounding the ancient Buttercross and a weekly market. There are two major health centres in the town with others on the periphery and an excellent choice of primary and secondary schools, including faith schools. Witney Lakes Resort has a golf course, health club and swimming pool and there is also a community leisure centre. The Woolgate Centre and Marriotts Walk together with other smaller shopping areas provide an excellent variety of shops including Marks & Spencer, a Multi-Screen Cinema and many restaurants and food outlets. Public transport is available from outlying villages and from Witney to Oxford.
EPC Rating: C
- COUNCIL TAXA payment made to your local authority in order to pay for local services like schools, libraries, and refuse collection. The amount you pay depends on the value of the property.Read more about council Tax in our glossary page.
- Band: C
- PARKINGDetails of how and where vehicles can be parked, and any associated costs.Read more about parking in our glossary page.
- Yes
- GARDENA property has access to an outdoor space, which could be private or shared.
- Private garden
- ACCESSIBILITYHow a property has been adapted to meet the needs of vulnerable or disabled individuals.Read more about accessibility in our glossary page.
- Ask agent
Tower Hill, Witney, OX28
Add an important place to see how long it'd take to get there from our property listings.
__mins driving to your place
Get an instant, personalised result:
- Show sellers you’re serious
- Secure viewings faster with agents
- No impact on your credit score
Your mortgage
Notes
Staying secure when looking for property
Ensure you're up to date with our latest advice on how to avoid fraud or scams when looking for property online.
Visit our security centre to find out moreDisclaimer - Property reference 637a0052-a659-490a-865a-04490ba93d65. The information displayed about this property comprises a property advertisement. Rightmove.co.uk makes no warranty as to the accuracy or completeness of the advertisement or any linked or associated information, and Rightmove has no control over the content. This property advertisement does not constitute property particulars. The information is provided and maintained by Martyn Cox & Company, Witney. Please contact the selling agent or developer directly to obtain any information which may be available under the terms of The Energy Performance of Buildings (Certificates and Inspections) (England and Wales) Regulations 2007 or the Home Report if in relation to a residential property in Scotland.
*This is the average speed from the provider with the fastest broadband package available at this postcode. The average speed displayed is based on the download speeds of at least 50% of customers at peak time (8pm to 10pm). Fibre/cable services at the postcode are subject to availability and may differ between properties within a postcode. Speeds can be affected by a range of technical and environmental factors. The speed at the property may be lower than that listed above. You can check the estimated speed and confirm availability to a property prior to purchasing on the broadband provider's website. Providers may increase charges. The information is provided and maintained by Decision Technologies Limited. **This is indicative only and based on a 2-person household with multiple devices and simultaneous usage. Broadband performance is affected by multiple factors including number of occupants and devices, simultaneous usage, router range etc. For more information speak to your broadband provider.
Map data ©OpenStreetMap contributors.







