Plot for sale
Church Lane, Saxilby, Lincoln, LN1 2PE
- PROPERTY TYPE
Plot
- BEDROOMS
4
- BATHROOMS
2
- SIZE
Ask agent
Key features
- Serviced level building plot in a desirable non estate village location.
- Planning previously passed for a sizeable 2069sq ft 4 bedroom family house
- Well served village of Saxilby.
- Ideal village for those wishing to utilise the nearby City of Lincoln.
- Rare opportunity for developers and self builders.
Description
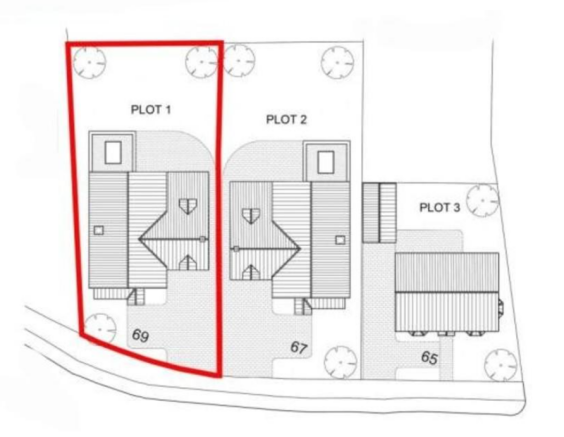
Reference RF0897 - 2 PLOTS REMAINING!!! A rare and exciting opportunity to purchase this serviced building plot, having had planning previously passed for a 2069sq ft detached 4 bedroom family home. Located in the highly desirable and well served village of Saxilby, the plot offers an appealing opportunity for both self builders and developers to create a non estate home with a specification designed and tailored to their own needs and requirements. Saxilby benefits from it's geographical location offering easy access to the beautiful city of Lincoln and it's wide range of shops, amenities and attractions, whilst retaining a village feel to it's surroundings. Full details can be found via West Lindsey district councils planning portal under application number 142505. There are 2 plots available so please feel free to contact the agent for any questions you may have.
Church Lane, Saxilby, Lincoln, LN1 2PE
NEAREST STATIONS
Distances are straight line measurements from the centre of the postcode- Saxilby Station0.6 miles
Notes
Disclaimer - Property reference S1416103. The information displayed about this property comprises a property advertisement. Rightmove.co.uk makes no warranty as to the accuracy or completeness of the advertisement or any linked or associated information, and Rightmove has no control over the content. This property advertisement does not constitute property particulars. The information is provided and maintained by eXp UK, East Midlands. Please contact the selling agent or developer directly to obtain any information which may be available under the terms of The Energy Performance of Buildings (Certificates and Inspections) (England and Wales) Regulations 2007 or the Home Report if in relation to a residential property in Scotland.
Map data ©OpenStreetMap contributors.






