The Phoenix, Bridge Street, High Wycombe, HP11 2EL
- SIZE
Ask agent
- SECTOR
Bar / nightclub for sale
Key features
- Prominent town centre location
- Established late night venue - 3am licence
- Leasehold opportunity - vacant possession
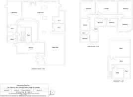
- Bar (50) Dance floor/Stage area (150)
- Annual rent £45k, flexible terms, free of tie
- Large upstairs area - 5 bedrooms
- Christie & Co Ref: 3858306
Description
The Phoenix is a well established late-night bar and live music venue with a strong reputation in the alternative and indie music scenes.
The property comprises a two-storey building with a traditional pub frontage and a versatile layout suited to both bar and performance use. It recently hosted the popular Phoenix Fest, demonstrating its continued appeal and capacity for high-energy events.
Situated in the heart of High Wycombe, Buckinghamshire, The Phoenix enjoys a prominent position within the town?s vibrant nightlife scene.
High Wycombe is a well-connected market town with excellent transport links via the M40 and Chiltern Railways, making it easily accessible from London and Oxford.
The venue benefits from a central location close to other hospitality and retail outlets, drawing consistent footfall from locals, students, and visitors alike.
Internally, the venue is split into two main zones. The front bar area accommodates approximately 40-50 patrons and offers a cosy, welcoming atmosphere ideal for casual drinks and socialising. To the rear, a larger performance and dance floor space holds around 150 guests, making it suitable for live music, DJ nights, and private events.
The venue holds a 3am late licence, allowing operations into the early hours, and includes a disused kitchen area that could be refurbished to introduce a food offering.
Sold as seen, no inventory will be provided.
External DetailsA rear courtyard with benches, space for approximately 20 people. No on site parking but ample surrounding car parks.
Owner's AccommodationThe first floor provides substantial private accommodation, comprising five bedrooms, a lounge, a bathroom, and a kitchen. This space is ideal for live-in operators or could be repurposed for staff use or additional income through short-term lets, subject to necessary consents.
The OpportunityThe Phoenix presents an exciting opportunity for an enthusiastic new operator to take over a beloved venue with deep roots in the local music and nightlife community.
With a late licence already in place and a loyal customer base, the site is primed for continued success. There is scope to reintroduce food service, expand event programming, and further develop the venue?s brand. The property is available due to the previous operator?s lease expiry, offering a clean slate for a new chapter for the property.
No staff members to TUPE.
Trading HoursCurrently closed but the property has a 3am late licence.
TenureThe landlord Wellington Pub Company is willing to offer a new 20 year free of tie lease with an annual rent of £42,000 per year.
Business RatesRateable value effective from 1 April 2023 is £13,200. This is not the rates payable. Please check with the VOA for the most up-to-date information on all rating matters.
RegulatoryPremises licence.
Brochures
The Phoenix, Bridge Street, High Wycombe, HP11 2EL
NEAREST STATIONS
Distances are straight line measurements from the centre of the postcode- High Wycombe Station0.5 miles
- Marlow Station4.2 miles
- Bourne End Station4.3 miles
Notes
Disclaimer - Property reference 3858306-lh. The information displayed about this property comprises a property advertisement. Rightmove.co.uk makes no warranty as to the accuracy or completeness of the advertisement or any linked or associated information, and Rightmove has no control over the content. This property advertisement does not constitute property particulars. The information is provided and maintained by Christie & Co, Pubs & Restaurants. Please contact the selling agent or developer directly to obtain any information which may be available under the terms of The Energy Performance of Buildings (Certificates and Inspections) (England and Wales) Regulations 2007 or the Home Report if in relation to a residential property in Scotland.
Map data ©OpenStreetMap contributors.





