
Cope Park, Almondsbury, BS32

- PROPERTY TYPE
Detached
- BEDROOMS
4
- BATHROOMS
2
- SIZE
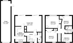
1,216 sq ft
113 sq m
- TENUREDescribes how you own a property. There are different types of tenure - freehold, leasehold, and commonhold.Read more about tenure in our glossary page.
Freehold
Key features
- A super detached home on a sizeable plot tucked away at the end of a quiet cul-de-sac
- Lovingly owned and looked after by one family from new
- Offered to the market with no onward chain
- Occupying the corner plot with ample room for expanding (subject to planning)
- Convenient location with easy access to the M4/M5 corridor and catchment for Almondsbury Primary School
- Four bedrooms
- Kitchen/breakfast room
- family bathroom and downstairs wc
- Large garage and driveway parking
Description
Occupying the corner plot, this residence offers ample room for expanding (subject to planning), ensuring future possibilities for customisation to suit individual preferences. Conveniently situated with easy access to the M4/M5 corridor and falling within the catchment area for the esteemed Almondsbury Primary School, this location guarantees both connectivity and educational opportunities.
Upon entering, you are greeted by an inviting entrance hall with a convenient wc, setting the tone for the rest of the home. The living room, overlooking the rear garden, provides a spacious and comfortable retreat perfect for relaxation and entertainment. The kitchen/breakfast room offers a functional space for cooking endeavours and daily meals.
Upstairs, you will find four good-sized bedrooms, ensuring ample accommodation for a growing family or hosting guests. The family bathroom adds convenience to the home while servicing all four bedrooms
Outside, the property boasts a large garden mainly laid to level lawn, complemented by a charming patio area off of the living room, offering an ideal spot for outdoor activities and gatherings. The large tandem garage provides space to park a car and additional storage options. Completing the picture is the driveway parking, ensuring practicality and convenience for residents and visitors alike.
Don’t miss the opportunity to make this delightful property your own – contact us today to arrange a viewing and step into your future dream home.
EPC Rating: D
Parking - Driveway
- COUNCIL TAXA payment made to your local authority in order to pay for local services like schools, libraries, and refuse collection. The amount you pay depends on the value of the property.Read more about council Tax in our glossary page.
- Band: E
- PARKINGDetails of how and where vehicles can be parked, and any associated costs.Read more about parking in our glossary page.
- Driveway
- GARDENA property has access to an outdoor space, which could be private or shared.
- Private garden
- ACCESSIBILITYHow a property has been adapted to meet the needs of vulnerable or disabled individuals.Read more about accessibility in our glossary page.
- Ask agent
Cope Park, Almondsbury, BS32
Add an important place to see how long it'd take to get there from our property listings.
__mins driving to your place
Get an instant, personalised result:
- Show sellers you’re serious
- Secure viewings faster with agents
- No impact on your credit score
Your mortgage
Notes
Staying secure when looking for property
Ensure you're up to date with our latest advice on how to avoid fraud or scams when looking for property online.
Visit our security centre to find out moreDisclaimer - Property reference 124850c9-0335-4812-ac50-1a07653554bf. The information displayed about this property comprises a property advertisement. Rightmove.co.uk makes no warranty as to the accuracy or completeness of the advertisement or any linked or associated information, and Rightmove has no control over the content. This property advertisement does not constitute property particulars. The information is provided and maintained by Lisa Costa Residential Sales & Lettings, Thornbury. Please contact the selling agent or developer directly to obtain any information which may be available under the terms of The Energy Performance of Buildings (Certificates and Inspections) (England and Wales) Regulations 2007 or the Home Report if in relation to a residential property in Scotland.
*This is the average speed from the provider with the fastest broadband package available at this postcode. The average speed displayed is based on the download speeds of at least 50% of customers at peak time (8pm to 10pm). Fibre/cable services at the postcode are subject to availability and may differ between properties within a postcode. Speeds can be affected by a range of technical and environmental factors. The speed at the property may be lower than that listed above. You can check the estimated speed and confirm availability to a property prior to purchasing on the broadband provider's website. Providers may increase charges. The information is provided and maintained by Decision Technologies Limited. **This is indicative only and based on a 2-person household with multiple devices and simultaneous usage. Broadband performance is affected by multiple factors including number of occupants and devices, simultaneous usage, router range etc. For more information speak to your broadband provider.
Map data ©OpenStreetMap contributors.





