Residential Letting Investment - 2 Grove Street, Wantage
- SIZE
Ask agent
- SECTOR
Commercial property for sale
Description
General Description
A three-storeys x 7 en-suite rooms former guest house (Use Class C1) with a communal kitchen facility, currently operating as a House in Multiple Occupation (see Agent's note overleaf) for 7+ occupiers (Sui generis use class).
Location
On the east side of Grove Street in Wantage town centre, which is the principal link between the Market Place retail area and Kings Park shopping centre.
Wantage is situated at the junction of the A338 and A417 in southern Oxfordshire, approximately 15 miles south west of Oxford and 6 miles west of the A34 Milton interchange near Didcot. Along with nearby Grove the town is experiencing considerable housing and population growth, which is set to continue for a number of years.
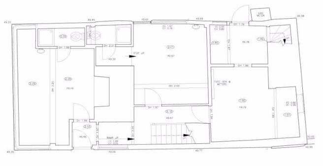
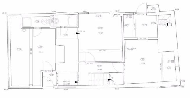
The accommodation (all dimensions approximate)
On the ground floor:
Main entrance hall – Stairs up to the first floor, doors off to:
Room 12 – 3.67m x 3.04m (c.12'1” x 9'11”), hand basin, shower room;
Room 11 – 4.44m x 3.43m (c.14'6” x 11'2”), hand basin, shower room; and the Communal kitchen facility which is separately accessible from the yard.
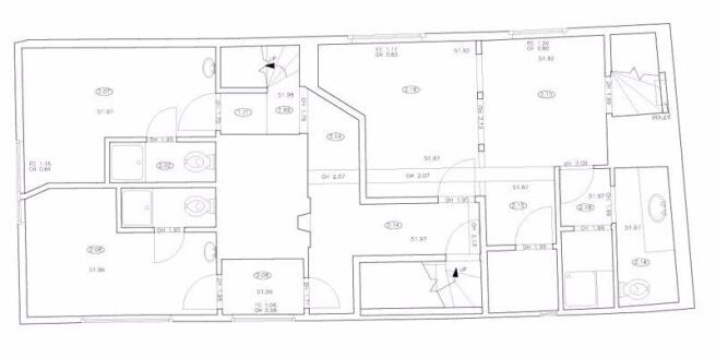
The first floor:
Landing – Stairs off to the second floor, doors off to;
Room 10 – (Irregular shape) 4.83m x 3.21m (c.15'10” x 10'6”) + a further recess 1.43m x 1.07m (c.4'8” x 3'6”) + wardrobe recess & two part shower room;
Room 9 – (L-shaped) 3.86m max x 2.62m max (c.12'7” x 8'7”), hand basin, shower room; and Room 8 – (L-shaped) 3.93m x 1.85m (c.12'10” x 6'1”) + wardrobe recess 1.7m x 0.86m (c. 5'6” x 2'9”), hand basin, shower room.
The second floor:
Room 7 – (L-shaped) 3.36m x 2.13m (c.11'1” x 6'11”), shower room; and
Room 6 – 3.55m x 3.09m (c.11'7” x 7'11”), full bathroom suite off.
Approx. gross area...
Outside:
Shared access^ to a storeroom/garage. ^With the single storey buildings to the rear.
Price guide
Offers in the region of £360,000 are invited for the freehold as a going concern.
VAT
We understand VAT is not payable in addition.
Business Rates
Rateable Value - £7,300 (April 2023). The Small Business Multiplier 2025/26 is x 0.499 (= £3,642.70 payable) but, as the rateable value is below £12,000 there should be £Nil rates payable by claiming Small Business Rate Relief. Please contact VWHDC directly for confirmation (contact details below).
Services
Mains gas, electricity, water and drainage are connected. Telephone/broadband by subscription.
EPC rating
D/80. Full details are available on request.
Local planning, rating and licensing authority
Vale of White Horse District Council, Abbey House, Abbey Close, Abingdon OX14 3SE.
Tel:
Viewing
By prior appointment only with the sole agent Green & Co Commercial and Development Agency, during usual business hours Monday to Friday 9am-6pm. Tel. (ref. OM) or email: oliver.
Agent's notes
1. The current owner/operator's HMO Licence is not transferrable. Prospective purchasers intending to continue operating these premises as a HMO must please satisfy themselves, from their own enquiries of the local authority in this respect, before offering to purchase.
2. The building is Grade 2 Listed and located within the designated town centre Conservation Area.
3. A typical room
Brochures
Residential Letting Investment - 2 Grove Street, Wantage
NEAREST STATIONS
Distances are straight line measurements from the centre of the postcode- Didcot Parkway Station8.0 miles
Notes
Disclaimer - Property reference 12672008. The information displayed about this property comprises a property advertisement. Rightmove.co.uk makes no warranty as to the accuracy or completeness of the advertisement or any linked or associated information, and Rightmove has no control over the content. This property advertisement does not constitute property particulars. The information is provided and maintained by Green & Co Commercial, Wantage. Please contact the selling agent or developer directly to obtain any information which may be available under the terms of The Energy Performance of Buildings (Certificates and Inspections) (England and Wales) Regulations 2007 or the Home Report if in relation to a residential property in Scotland.
Map data ©OpenStreetMap contributors.




