
Denny End Road, Waterbeach, Cambridge, CB25 9QE

- PROPERTY TYPE
House
- BEDROOMS
4
- BATHROOMS
3
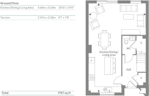
- SIZE
1,757 sq ft
163 sq m
- TENUREDescribes how you own a property. There are different types of tenure - freehold, leasehold, and commonhold.Read more about tenure in our glossary page.
Freehold
Key features
- Ready to move into with upgrades worth over £32,000!*
- Less than half an hour to Cambridge City Centre & 10 mins to Cambridge Science Park
- New shop, cafe and community space opening this month!
- Transport Hub with bus to Waterbeach station and Cambridge city centre
- Transport Hub with bus to Waterbeach station and Cambridge city centre
- A10 pedestrian, cycle and equestrian bridge opening Spring 2026 - connecting Waterbeach to the Science Park, Regional Colleges and onto the city
- 10-year Premier Guarantee and 2-year Stonebond Customer Care Warranty
Description
View Home available to view!
The Beckett is a beautifully designed four-bedroom home, perfect for modern family living. Featuring an expansive open-plan kitchen, dining, and living area, this space is ideal for both entertaining and everyday family life. The large area provides seamless access to a private garden, offering a tranquil outdoor space for relaxation.
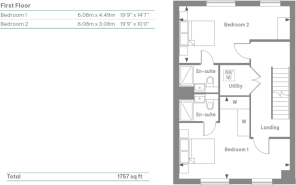
Inside, you'll find four generous double bedrooms, two of which benefit from their own en-suite bathrooms, providing ultimate comfort and privacy. A spacious main bathroom serves the remaining bedrooms. With its thoughtful layout and high-quality finishes, The Beckett is an excellent choice for those seeking both style and practicality.
Ready to move into with £32,000 worth of extras including:
- Premium flooring throughout
- Underfloor heating
- Stone worksurfaces and integrated Bosch appliances
- Rear garden laid to lawn with enhanced planting to the entrance
- Electric car charger
- Fitted wardrobe to principle bedroom
- Curtains & blinds, light fittings, artwork and mirrors throughout
A Landscape Like No Other
With a 23-acre lake, wide green spaces, and dappled woodland, Waterbeach offers a lifestyle where nature runs through every aspect of the community. Whether you're walking through the woods, relaxing by the water, or enjoying a run on leafy paths.
A Community Built for Life
Located just north of Waterbeach Village, this vibrant new neighbourhood is being developed in phases. Each phase includes everything you need for daily life - homes, schools, green spaces, community facilities, shops, a health centre, cafés, and a sustainable travel hub with excellent walking and cycling routes.
Built with Sustainability in Mind
Waterbeach homes are designed for a lower-carbon, more efficient future. With superior insulation, aerated taps, LED lighting, and underfloor heating, these properties are up to 65% more energy-efficient than older homes - potentially saving you £979 a year on bills.^
Book Your Viewing Today
Don't miss your chance to be part of this exceptional new neighbourhood. Visit the show home and discover everything Waterbeach has to offer.
Specification
Overview
- Fitted wardrobe to bedroom one
- Underfloor heating throughout
- Air source heat pump
- BT point to living area
- Infrastructure ready for Sky Glass connectivity
- Feature pale slate satin finish to skiting, architrave and doors
- External tap
- Garage and EV charging point
- Provision for free standing washer/dryer in the utility cupboard on the first floor
Kitchen
- Stylish handless kitchens with soft close doors and drawers
- Modern slimline stone worktop and upstand
- Strip lights to underside of wall units
- Bosch single oven and micro combi-oven
- Bosch wine cooler
- Bosch integrated fridge/freezer
- Bosch integrated dishwasher
Bathroom & en suite
- White contemporary sanitaryware with chrome brassware
- Half height tiles to sanitaryware walls
- Full height tiling around bath and shower enclosures
- Fixed riser head shower and screen to main bathroom
- Rainfall shower and handheld shower head to ensuite
- Recessed storage
- Heated towel rail
*T&Cs Apply - speak to a Sales Consultant for more information
^ HBF Watt a Save January 2025. Calculations are based on the Ofgem price cap from January 2024, using data from EPC registrations of new and existing properties in the year to September 2024. T&Cs apply, selected plots only. Not available in conjunction with any other offer
- COUNCIL TAXA payment made to your local authority in order to pay for local services like schools, libraries, and refuse collection. The amount you pay depends on the value of the property.Read more about council Tax in our glossary page.
- Ask developer
- PARKINGDetails of how and where vehicles can be parked, and any associated costs.Read more about parking in our glossary page.
- Yes
- GARDENA property has access to an outdoor space, which could be private or shared.
- Private garden
- ACCESSIBILITYHow a property has been adapted to meet the needs of vulnerable or disabled individuals.Read more about accessibility in our glossary page.
- Ask developer
Energy performance certificate - ask developer
- Local school, shops & restaurants
- Great transport links
- 7 miles from Cambridge centre
- 23 acre lake and woodland walks
Denny End Road, Waterbeach, Cambridge, CB25 9QE
Add an important place to see how long it'd take to get there from our property listings.
__mins driving to your place
Get an instant, personalised result:
- Show sellers you’re serious
- Secure viewings faster with agents
- No impact on your credit score
About Stonebond
We don’t build houses that we wouldn’t want to live in. It’s the rule that we follow when creating new homes. And we believe homes are made together. We work alongside our partners and homeowners to make the process as seamless and easy as possible, aiming to build homes that are not just valued, but create value.
It means we are driven by the things that really matter to home-owners and our partners.
It sounds obvious but to deliver it requires a company that is committed. That takes real pride in creating the homes of the future. That is lean and agile, works collaboratively with strong personal relationships and that puts the customer first. And that’s exactly what we have at Stonebond – a group of highly experienced individuals, totally passionate about creating homes – homes our owners love and that we love too.
Your mortgage
Notes
Staying secure when looking for property
Ensure you're up to date with our latest advice on how to avoid fraud or scams when looking for property online.
Visit our security centre to find out moreDisclaimer - Property reference W34beckett. The information displayed about this property comprises a property advertisement. Rightmove.co.uk makes no warranty as to the accuracy or completeness of the advertisement or any linked or associated information, and Rightmove has no control over the content. This property advertisement does not constitute property particulars. The information is provided and maintained by Stonebond. Please contact the selling agent or developer directly to obtain any information which may be available under the terms of The Energy Performance of Buildings (Certificates and Inspections) (England and Wales) Regulations 2007 or the Home Report if in relation to a residential property in Scotland.
*This is the average speed from the provider with the fastest broadband package available at this postcode. The average speed displayed is based on the download speeds of at least 50% of customers at peak time (8pm to 10pm). Fibre/cable services at the postcode are subject to availability and may differ between properties within a postcode. Speeds can be affected by a range of technical and environmental factors. The speed at the property may be lower than that listed above. You can check the estimated speed and confirm availability to a property prior to purchasing on the broadband provider's website. Providers may increase charges. The information is provided and maintained by Decision Technologies Limited. **This is indicative only and based on a 2-person household with multiple devices and simultaneous usage. Broadband performance is affected by multiple factors including number of occupants and devices, simultaneous usage, router range etc. For more information speak to your broadband provider.
Map data ©OpenStreetMap contributors.






