
Ryder Gardens, Bovingdon

- PROPERTY TYPE
Semi-Detached
- BEDROOMS
3
- BATHROOMS
3
- SIZE
Ask agent
- TENUREDescribes how you own a property. There are different types of tenure - freehold, leasehold, and commonhold.Read more about tenure in our glossary page.
Freehold
Key features
- Showhome Now Available
- Stunning Homes in this Popular Village
- Bosch Integrated Appliances*
- 3 in 1 hot tap - boiling, hot and cold water tap*
- Underfloor heating to ground floor powered with air source heat pump
- Lunar touch thermostats which can be controlled via WIFI and phone app
- Electric Car Charging Points*
- Wireless Alarm
Description
This EXCLUSIVE collection of Stunning 3 & 4 bedroom homes in the HIGHLY SOUGHT-AFTER village of BOVINGDON! Stylish fittings & QUALITY specifications, with an emphasis on sustainability, are complemented by attractive exteriors, with thoughtful, nature-friendly features.
At Ryder Gardens, you’ll find a range of beautifully-designed homes, full of light and space, with flexible floorplans to suit you and your lifestyle. The stylish fittings and quality specifications, with an emphasis on sustainability, are complemented by attractive exteriors, with thoughtful, nature-friendly features.
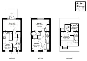
The Elder is a superbly appointed semi-detached home, as you enter the home on the ground floor, through the hallway you have access to the professionally designed kitchen/dining room with quality units and laminate work surfaces. The kitchen is finished with 3 in 1 hot tap - boiling, hot and cold water tap, fully integrated BOSCH appliances including a BOSCH built-in single oven plus combi/micro oven. Further through the hallway is a storage cupboard and the cloakroom/W.C.
Through the doors leading you into the sitting room which in addition have French double doors leading to the rear garden. The ground floor is completed with underfloor heating powered by an energy-efficient air source heat pump.
To the first floor, the principal bedroom benefits from build in wardrobes and luxurious en-suite. A further well-sized third bedroom and the family bathroom, which is fitted with White Roca sanitary ware. On the second floor is bedroom 2 with an ensuite and a separate study. Externally there is the landscaped front garden and cultivated turf to rear garden with outside tap, outside electrical point to rear patio and electric vehicle charging point.
Ryder Gardens is perfectly located, with Hemel Hempstead to the north east and Watford to the south east. Giving you the perfect balance of a semi-rural location, combined with easy access to an even wider range of amenities and transport links. With superb designs and build quality, you will easily find the home you want to call yours here.
We are committed to bringing added value and meaningful benefit to the communities in which we build, not just through the homes we create, but by investing and enhancing in the very essence of what brings a local community together. Our pledges bring together a host of bespoke measures for each local community including activities, donations, initiatives, volunteering drives and much more.
*T's & C's Apply!*
**Images of the homes and the arrangement are CGIs or photos of another Cala site or showhome**
**Details are correct at time of advertising. Design is subject to change, please consult your Sales Consultant for more information.
Disclaimer
haart Estate Agents also offer a professional, ARLA accredited Lettings and Management Service. If you are considering renting your property in order to purchase, are looking at buy to let or would like a free review of your current portfolio then please call the Lettings Branch Manager on the number shown above.
haart Estate Agents is the seller's agent for this property. Your conveyancer is legally responsible for ensuring any purchase agreement fully protects your position. We make detailed enquiries of the seller to ensure the information provided is as accurate as possible. Please inform us if you become aware of any information being inaccurate.
Brochures
Brochure- COUNCIL TAXA payment made to your local authority in order to pay for local services like schools, libraries, and refuse collection. The amount you pay depends on the value of the property.Read more about council Tax in our glossary page.
- Ask agent
- PARKINGDetails of how and where vehicles can be parked, and any associated costs.Read more about parking in our glossary page.
- Yes
- GARDENA property has access to an outdoor space, which could be private or shared.
- Yes
- ACCESSIBILITYHow a property has been adapted to meet the needs of vulnerable or disabled individuals.Read more about accessibility in our glossary page.
- Ask agent
Energy performance certificate - ask agent
Ryder Gardens, Bovingdon
Add an important place to see how long it'd take to get there from our property listings.
__mins driving to your place
Get an instant, personalised result:
- Show sellers you’re serious
- Secure viewings faster with agents
- No impact on your credit score
Your mortgage
Notes
Staying secure when looking for property
Ensure you're up to date with our latest advice on how to avoid fraud or scams when looking for property online.
Visit our security centre to find out moreDisclaimer - Property reference 0207_HRT020711004. The information displayed about this property comprises a property advertisement. Rightmove.co.uk makes no warranty as to the accuracy or completeness of the advertisement or any linked or associated information, and Rightmove has no control over the content. This property advertisement does not constitute property particulars. The information is provided and maintained by haart, Stopsley. Please contact the selling agent or developer directly to obtain any information which may be available under the terms of The Energy Performance of Buildings (Certificates and Inspections) (England and Wales) Regulations 2007 or the Home Report if in relation to a residential property in Scotland.
*This is the average speed from the provider with the fastest broadband package available at this postcode. The average speed displayed is based on the download speeds of at least 50% of customers at peak time (8pm to 10pm). Fibre/cable services at the postcode are subject to availability and may differ between properties within a postcode. Speeds can be affected by a range of technical and environmental factors. The speed at the property may be lower than that listed above. You can check the estimated speed and confirm availability to a property prior to purchasing on the broadband provider's website. Providers may increase charges. The information is provided and maintained by Decision Technologies Limited. **This is indicative only and based on a 2-person household with multiple devices and simultaneous usage. Broadband performance is affected by multiple factors including number of occupants and devices, simultaneous usage, router range etc. For more information speak to your broadband provider.
Map data ©OpenStreetMap contributors.






