
3 bedroom barn conversion for sale
Osier Farm , Eastgate, Deeping St James, Market Deeping, PE6

- PROPERTY TYPE
Barn Conversion
- BEDROOMS
3
- BATHROOMS
2
- SIZE
Ask agent
- TENUREDescribes how you own a property. There are different types of tenure - freehold, leasehold, and commonhold.Read more about tenure in our glossary page.
Freehold
Key features
- Individual Single-Storey Barn Conversion
- Brand New Conversion
- High Specification
- Exclusive Development
Description
Situated in a small exclusive development of five executive homes, two barn conversions and a thatched farmhouse, this contemporary, single storey barn conversion has been built to an exceptionally high standard by Postland Developments, a well known and respected developer who are renowned for their luxury homes and excellent customer aftercare service. Featuring a lounge with high vaulted ceiling and feature bi-folding doors opening onto the rear garden, this home will have a luxury kitchen/dining room, impressive entrance hall with glazed ceiling and three good size bedrooms with the master having an en-suite. With a private enclosed garden leading to an open cart shed for parking, this individual quality home will be completed in early 2026 and at this early stage the lucky purchaser will have a choice of kitchen and bathroom fittings. This unique home will attract a great deal of interest, so book your viewing today.
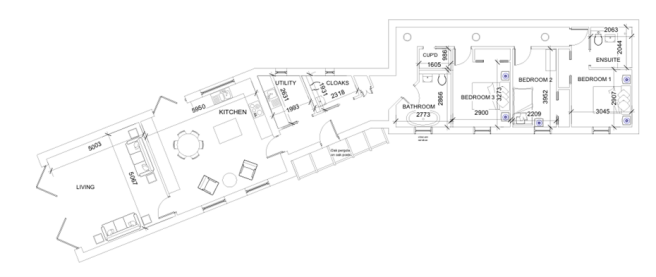
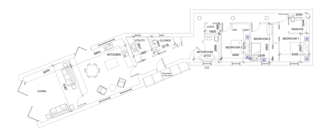
ENTRANCE
An impressive oak Pagoda leading to entrance door opening to
HALLWAY
A stunning entrance, with a part-glazed vaulted roof, this breathtaking entrance has built-in cupboard, built-in cloaks cupboard and access to principal rooms.
CLOAKROOM
Comprising low flush WC and wash-hand basin.
KITCHEN/DINING ROOM
19’6 x 16’9 (5.95m x 5.10m)
A stunning room with high vaulted ceiling, this room will have a high specification kitchen with dining area, family area, two windows to front elevation and door leading to
LIVING ROOM
19’6 x 16’5 (5.10m x 5.00m)
A stunning room with high vaulted ceiling with bi-folding doors opening onto the rear garden with feature glazing above.
UTILITY ROOM
8’6 x 6’3 (2.60m x 1.90m)
With a range of wall and base units.
MASTER BEDROOM
16’5 max x 10’ (5.00m x 3.04m)
With a range of quality built-in wardrobes and window to front elevation, this large master bedroom has access to
LUXURY EN-SUITE
A luxury en-suite to be installed.
BEDROOM TWO
12’9 x 9’6 (3.90m x 2.90m)
With built-in wardrobes and window to front elevation.
BEDROOM THREE
12’9 x 7’3 (3.90m x 2.20m)
With window to front elevation.
BATHROOM
A luxury suite with window to front elevation.
OUTSIDE
The property has off-road parking with open cart shed large enough for one vehicle and additional parking space.
The gardens will provide a high degree of privacy.
- COUNCIL TAXA payment made to your local authority in order to pay for local services like schools, libraries, and refuse collection. The amount you pay depends on the value of the property.Read more about council Tax in our glossary page.
- Ask agent
- PARKINGDetails of how and where vehicles can be parked, and any associated costs.Read more about parking in our glossary page.
- Yes
- GARDENA property has access to an outdoor space, which could be private or shared.
- Yes
- ACCESSIBILITYHow a property has been adapted to meet the needs of vulnerable or disabled individuals.Read more about accessibility in our glossary page.
- Ask agent
Energy performance certificate - ask agent
Osier Farm , Eastgate, Deeping St James, Market Deeping, PE6
Add an important place to see how long it'd take to get there from our property listings.
__mins driving to your place
Get an instant, personalised result:
- Show sellers you’re serious
- Secure viewings faster with agents
- No impact on your credit score



Your mortgage
Notes
Staying secure when looking for property
Ensure you're up to date with our latest advice on how to avoid fraud or scams when looking for property online.
Visit our security centre to find out moreDisclaimer - Property reference 29379768. The information displayed about this property comprises a property advertisement. Rightmove.co.uk makes no warranty as to the accuracy or completeness of the advertisement or any linked or associated information, and Rightmove has no control over the content. This property advertisement does not constitute property particulars. The information is provided and maintained by Briggs Residential, Market Deeping. Please contact the selling agent or developer directly to obtain any information which may be available under the terms of The Energy Performance of Buildings (Certificates and Inspections) (England and Wales) Regulations 2007 or the Home Report if in relation to a residential property in Scotland.
*This is the average speed from the provider with the fastest broadband package available at this postcode. The average speed displayed is based on the download speeds of at least 50% of customers at peak time (8pm to 10pm). Fibre/cable services at the postcode are subject to availability and may differ between properties within a postcode. Speeds can be affected by a range of technical and environmental factors. The speed at the property may be lower than that listed above. You can check the estimated speed and confirm availability to a property prior to purchasing on the broadband provider's website. Providers may increase charges. The information is provided and maintained by Decision Technologies Limited. **This is indicative only and based on a 2-person household with multiple devices and simultaneous usage. Broadband performance is affected by multiple factors including number of occupants and devices, simultaneous usage, router range etc. For more information speak to your broadband provider.
Map data ©OpenStreetMap contributors.





