1 bedroom apartment for sale
Peace Walk, Chelmsley Wood, Birmingham, B37

- PROPERTY TYPE
Apartment
- BEDROOMS
1
- BATHROOMS
1
- SIZE
Ask agent
Key features
- GREAT FOR FIRST TIME BUYERS AND INVESTORS
- ONE BEDROOM
- FIRST FLOOR APARTMENT
- SPACIOUS LOUNGE
- KITCHEN
- BATHROOM
- OUTSIDE COMMUNAL AREA
- CLOSE TO MAJOR TRANSPORT LINKS & BUSINESS PARKS
- NO CHAIN
- READY TO MOVE IN TO!
Description
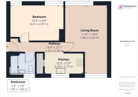
Approach & Overview
The property is approached via a communal hallway and satirs leading to where number 43 is loccated
Hallway
To include doors to:
Bedroom
Overlooking the rear of the property
Bathroom
Overlooking the front of the property. To include a panelled bath with shower over, low level wc and a vanity sink unit
Kitchen
Overlooking the front of the property. To inlciide an integrated cooker and hob, a rane ofwall and bse units and space for appliances
Lounge
Being a dual aspect room with windows overlooking the frotn and rear of the property
Communal Area
Including a storage shed
Additional Information
Whilst we make enquiries with the Seller to ensure the information provided is accurate, Ferndown Estates makes no representations or warranties of any kind with respect to the statements contained in the particulars which should not be relied upon as representations of fact. All representations contained in the particulars are based on details supplied by the Seller. Your Conveyancer is legally responsible for ensuring any purchase agreement fully protects your position. Please inform us if you become aware of any information being inaccurate. Money Laundering Regulations Should a purchaser(s) have an offer accepted on a property marketed by Ferndown Estates, they will need to undertake an identification check and asked to provide information on the source and proof of funds. This is done to meet our obligation under Anti Money Laundering Regulations (AML) and is a legal requirement. We use a specialist third party service together with an in-house compliance team to (truncated)
- COUNCIL TAXA payment made to your local authority in order to pay for local services like schools, libraries, and refuse collection. The amount you pay depends on the value of the property.Read more about council Tax in our glossary page.
- Ask agent
- PARKINGDetails of how and where vehicles can be parked, and any associated costs.Read more about parking in our glossary page.
- Ask agent
- GARDENA property has access to an outdoor space, which could be private or shared.
- Ask agent
- ACCESSIBILITYHow a property has been adapted to meet the needs of vulnerable or disabled individuals.Read more about accessibility in our glossary page.
- Ask agent
Peace Walk, Chelmsley Wood, Birmingham, B37
Add an important place to see how long it'd take to get there from our property listings.
__mins driving to your place
Get an instant, personalised result:
- Show sellers you’re serious
- Secure viewings faster with agents
- No impact on your credit score


Your mortgage
Notes
Staying secure when looking for property
Ensure you're up to date with our latest advice on how to avoid fraud or scams when looking for property online.
Visit our security centre to find out moreDisclaimer - Property reference FER250145. The information displayed about this property comprises a property advertisement. Rightmove.co.uk makes no warranty as to the accuracy or completeness of the advertisement or any linked or associated information, and Rightmove has no control over the content. This property advertisement does not constitute property particulars. The information is provided and maintained by Ferndown Estates, Marston Green. Please contact the selling agent or developer directly to obtain any information which may be available under the terms of The Energy Performance of Buildings (Certificates and Inspections) (England and Wales) Regulations 2007 or the Home Report if in relation to a residential property in Scotland.
*This is the average speed from the provider with the fastest broadband package available at this postcode. The average speed displayed is based on the download speeds of at least 50% of customers at peak time (8pm to 10pm). Fibre/cable services at the postcode are subject to availability and may differ between properties within a postcode. Speeds can be affected by a range of technical and environmental factors. The speed at the property may be lower than that listed above. You can check the estimated speed and confirm availability to a property prior to purchasing on the broadband provider's website. Providers may increase charges. The information is provided and maintained by Decision Technologies Limited. **This is indicative only and based on a 2-person household with multiple devices and simultaneous usage. Broadband performance is affected by multiple factors including number of occupants and devices, simultaneous usage, router range etc. For more information speak to your broadband provider.
Map data ©OpenStreetMap contributors.




