Plot for sale
Land with Planning; Pelham Gate House, Furneux Pelham SG9
- PROPERTY TYPE
Plot
- BEDROOMS
5
- BATHROOMS
4
- SIZE
4,617 sq ft
429 sq m
Key features
- Exciting opportunity to build your dream home
- 1.1 Acre Plot of Land
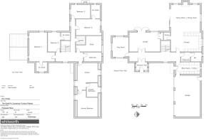
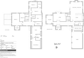
- Full Planning Permission for 4617 sq ft dwelling
- Edge of Furneux Pelham Village
- Fantastic countryside views
- 12 miles to Stansted
- 7 miles to Bishops Stortford
- 12 miles to Saffron Walden
- Small community with pub & school
Description
Pelham Gate presents an exceptional opportunity to acquire 1.1 acres of prime land with full planning consent in place for the construction of a bespoke home. Permission has been granted for a 4,617 sq ft home, subject to conditions. Strategically located and brimming with potential, this site is ideal for developers, investors, or self builders looking to create a bespoke home in a sought-after setting. The approved design serves as a compelling example of what is possible on the site, highlighting the scale and potential of the development. However, should your vision differ in style, layout or size, there is potential to adapt or resubmit a planning application for alternative designs to East Herts Council for approval.
At the early stages of application, the plot was known as The Chalk Pit and is now referred to as Pelham Gate.
For details of the planning permission please go to East Herts Planning Portal. Please be aware that the initial application was refused, however was then taken to appeal and is now approved with conditions. This is reflected in the information you will find using ref number 3/22/0719/FUL
Or use the following link;
The vendors are near completion of the remediation scheme report which forms part of the conditions of the planning consent and are happy to answer any questions relating to the history of the site and its previous uses, as well as the planning permission and environmental conditions.
The derelict barn at the bottom of the plot has permission to be used as an outbuilding for non-agricultural use, for example; a home gym, office, study or workshop (subject of change of use).
Location
Furneux Pelham is a popular and pretty East Hertfordshire village that is well placed midway between the neighbouring towns of Bishop's Stortford, Ware, and Buntingford. The village forms part of the popular Pelhams, being linked to the nearby Brent Pelham and Stocking Pelham. For the commuter, Bishops Stortford mainline station offers trains into London Liverpool Street in under 45 minutes. By car, the M11 & Stansted Airport are ten miles away, the A10 just 6 miles so access into London or Cambridge is straight forward. Furneux Pelham has a thriving community and boasts the well-known Brewery Tap pub which serves great food and, since lockdown, has introduced a small village shop. The highly rated village primary school feeds into secondary schools in Bishops Stortford. St Mary's Church hosts various community events and there are plenty of excellent footpaths and bridleways for walking and exercise, as well as a well-known riding school within easy reach for those with equestrian needs.
Land with Planning; Pelham Gate House, Furneux Pelham SG9
NEAREST STATIONS
Distances are straight line measurements from the centre of the postcode- Bishop's Stortford Station5.7 miles
Notes
Disclaimer - Property reference S1283859. The information displayed about this property comprises a property advertisement. Rightmove.co.uk makes no warranty as to the accuracy or completeness of the advertisement or any linked or associated information, and Rightmove has no control over the content. This property advertisement does not constitute property particulars. The information is provided and maintained by Fine & Country, Ware. Please contact the selling agent or developer directly to obtain any information which may be available under the terms of The Energy Performance of Buildings (Certificates and Inspections) (England and Wales) Regulations 2007 or the Home Report if in relation to a residential property in Scotland.
Map data ©OpenStreetMap contributors.





