Commercial property to lease
Kirkstall Road, Leeds
- SIZE AVAILABLE
3,895 sq ft
362 sq m
- SECTOR
Commercial property to lease
Lease details
- Lease available date:
- Now
Key features
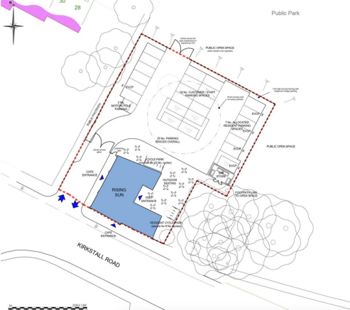
- Prime Kirkstall Road location – Opposite Cardigan Fields
- Approx. 1,948 sq ft ground floor plus 1,947 sq ft basement
- Potential for alternative uses (STP) – café, bar, deli, retail, creative workspace
- Rear courtyard area with potential customer seating
- Surrounded by major leisure, retail & residential schemes
- Character features including curved bar, large feature staircase & period detailing
Description
Situated on the busy A65 Kirkstall Road, directly opposite Cardigan Fields Retail Park, this attractive period property offers a rare opportunity to lease the ground floor commercial space with basement. Formerly part of the Rising Sun Public House, the premises benefit from existing planning consent for use as a coffee bar/lounge, with potential for a variety of other uses (STP).
Brochures
Kirkstall Road, Leeds
NEAREST STATIONS
Distances are straight line measurements from the centre of the postcode- Burley Park Station0.5 miles
- Headingley Station1.1 miles
- Leeds Station1.5 miles
Notes
Disclaimer - Property reference 34106893. The information displayed about this property comprises a property advertisement. Rightmove.co.uk makes no warranty as to the accuracy or completeness of the advertisement or any linked or associated information, and Rightmove has no control over the content. This property advertisement does not constitute property particulars. The information is provided and maintained by Hamond Estates Ltd, Heckmondwike. Please contact the selling agent or developer directly to obtain any information which may be available under the terms of The Energy Performance of Buildings (Certificates and Inspections) (England and Wales) Regulations 2007 or the Home Report if in relation to a residential property in Scotland.
Map data ©OpenStreetMap contributors.





