Penmeva View, Mevagissey, St. Austell, Cornwall

- PROPERTY TYPE
Semi-Detached
- BEDROOMS
4
- BATHROOMS
1
- SIZE
1,033 sq ft
96 sq m
- TENUREDescribes how you own a property. There are different types of tenure - freehold, leasehold, and commonhold.Read more about tenure in our glossary page.
Freehold
Key features
- 4 Bedroom
- Large garden
- Garage
- Parking
- Private location
- Large workshop
Description
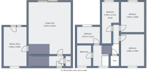
Upon entering the property, you are met by a hall with stairs leading up to the bedrooms and doors leading to the living room and hall cupboard. The spacious living room offers plenty of room for sofas and makes for a fantastic entertaining space. This room also benefits from sliding doors to the rear linking it seamlessly to the garden. From this room, stairs lead down to the kitchen diner. This generous room offers a range of fitted units and appliances, as well as plenty of space for a dining table and chairs. From here, there is also a pedestrian door to the rear garden and window to the side.
On the upper levels, the property offers four bedrooms and a family bathroom. On the first split level is bedroom four and the family bathroom. The family bathroom has been finished to a high standard and offers a shower unit, WC, hand basin and obscured window to the side. Bedroom four is a double room with window to the rear affording elevated views overlooking the village. On the upper level are three further bedrooms and a storage cupboard. Bedroom one is a spacious double bedroom with window to the front and large built-in wardrobes. Bedroom two is a further double with window to the rear and plenty of space for bedroom storage. Bedroom three is a generous single bedroom with window to the rear and additional storage space.
Outside, the property benefits from a large garden, mainly laid to lawn, that spans three sides of the property ensuring there is always a sunny spot to enjoy. The garden is bordered by a mixture of fences and hedges and the lawn is interspersed with mature plants and shrubs. To the rear, there is a large patio area with seating space and superb elevated views over the village. From the rear garden, a gate leads to the store area located below the single garage and steps lead up to the garage and parking areas. The single garage is generous in size and offers further storage above. The adjoining driveway offers space for up to two cars.
- COUNCIL TAXA payment made to your local authority in order to pay for local services like schools, libraries, and refuse collection. The amount you pay depends on the value of the property.Read more about council Tax in our glossary page.
- Band: C
- PARKINGDetails of how and where vehicles can be parked, and any associated costs.Read more about parking in our glossary page.
- Yes
- GARDENA property has access to an outdoor space, which could be private or shared.
- Yes
- ACCESSIBILITYHow a property has been adapted to meet the needs of vulnerable or disabled individuals.Read more about accessibility in our glossary page.
- Ask agent
Penmeva View, Mevagissey, St. Austell, Cornwall
Add an important place to see how long it'd take to get there from our property listings.
__mins driving to your place
Get an instant, personalised result:
- Show sellers you’re serious
- Secure viewings faster with agents
- No impact on your credit score

Your mortgage
Notes
Staying secure when looking for property
Ensure you're up to date with our latest advice on how to avoid fraud or scams when looking for property online.
Visit our security centre to find out moreDisclaimer - Property reference HSA-31059361. The information displayed about this property comprises a property advertisement. Rightmove.co.uk makes no warranty as to the accuracy or completeness of the advertisement or any linked or associated information, and Rightmove has no control over the content. This property advertisement does not constitute property particulars. The information is provided and maintained by Hunkin Homes, Mevagissey. Please contact the selling agent or developer directly to obtain any information which may be available under the terms of The Energy Performance of Buildings (Certificates and Inspections) (England and Wales) Regulations 2007 or the Home Report if in relation to a residential property in Scotland.
*This is the average speed from the provider with the fastest broadband package available at this postcode. The average speed displayed is based on the download speeds of at least 50% of customers at peak time (8pm to 10pm). Fibre/cable services at the postcode are subject to availability and may differ between properties within a postcode. Speeds can be affected by a range of technical and environmental factors. The speed at the property may be lower than that listed above. You can check the estimated speed and confirm availability to a property prior to purchasing on the broadband provider's website. Providers may increase charges. The information is provided and maintained by Decision Technologies Limited. **This is indicative only and based on a 2-person household with multiple devices and simultaneous usage. Broadband performance is affected by multiple factors including number of occupants and devices, simultaneous usage, router range etc. For more information speak to your broadband provider.
Map data ©OpenStreetMap contributors.




