
Lincoln Road, Peterborough, Cambridgeshire, PE6

- PROPERTY TYPE
Semi-Detached
- BEDROOMS
3
- BATHROOMS
1
- SIZE
Ask agent
- TENUREDescribes how you own a property. There are different types of tenure - freehold, leasehold, and commonhold.Read more about tenure in our glossary page.
Freehold
Description
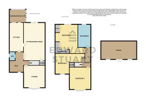
Inside, the home features three spacious reception rooms, each with inviting fireplaces and cozy log burners—ideal for relaxing evenings. The versatile lounge/dining area provides a welcoming space for family gatherings. The ground floor also benefits from a convenient downstairs WC, a well-appointed kitchen, and a functional utility room, all recently renovated to a high standard.
Upstairs, youll find three comfortable bedrooms along with a modern family bathroom, creating a practical and stylish living space. Outside, the property boasts a driveway with ample off-road parking, while the rear garden offers a fantastic outdoor office or gym—perfect for working from home or staying active.
Dont miss out on this wonderful opportunity—contact Edward Stuart Estate Agents today to arrange your viewing!
Welcome to this charming 3-BEDROOM, SEMI-DETACHED home located on Lincoln Road, PE6. Built in the 1940s and thoughtfully extended over the years, this lovely property offers a perfect blend of character and modern comfort. Ideally situated close to Peterborough City Centre and a range of local amenities, it is an excellent choice for families and first-time buyers alike.
Inside, the home features three spacious reception rooms, each with inviting fireplaces and cozy log burners—ideal for relaxing evenings. The versatile lounge/dining area provides a welcoming space for family gatherings. The ground floor also benefits from a convenient downstairs WC, a well-appointed kitchen, and a functional utility room, all recently renovated to a high standard.
Upstairs, youll find three comfortable bedrooms along with a modern family bathroom, creating a practical and stylish living space. Outside, the property boasts a driveway with ample off-road parking, while the rear garden offers a fantastic outdoor office or gym—perfect for working from home or staying active.
Dont miss out on this wonderful opportunity—contact Edward Stuart Estate Agents today to arrange your viewing!
- COUNCIL TAXA payment made to your local authority in order to pay for local services like schools, libraries, and refuse collection. The amount you pay depends on the value of the property.Read more about council Tax in our glossary page.
- Band: D
- PARKINGDetails of how and where vehicles can be parked, and any associated costs.Read more about parking in our glossary page.
- Yes
- GARDENA property has access to an outdoor space, which could be private or shared.
- Yes
- ACCESSIBILITYHow a property has been adapted to meet the needs of vulnerable or disabled individuals.Read more about accessibility in our glossary page.
- Ask agent
Lincoln Road, Peterborough, Cambridgeshire, PE6
Add an important place to see how long it'd take to get there from our property listings.
__mins driving to your place
Get an instant, personalised result:
- Show sellers you’re serious
- Secure viewings faster with agents
- No impact on your credit score

Your mortgage
Notes
Staying secure when looking for property
Ensure you're up to date with our latest advice on how to avoid fraud or scams when looking for property online.
Visit our security centre to find out moreDisclaimer - Property reference EDS250028. The information displayed about this property comprises a property advertisement. Rightmove.co.uk makes no warranty as to the accuracy or completeness of the advertisement or any linked or associated information, and Rightmove has no control over the content. This property advertisement does not constitute property particulars. The information is provided and maintained by Edward Stuart Estate Agents, Peterborough. Please contact the selling agent or developer directly to obtain any information which may be available under the terms of The Energy Performance of Buildings (Certificates and Inspections) (England and Wales) Regulations 2007 or the Home Report if in relation to a residential property in Scotland.
*This is the average speed from the provider with the fastest broadband package available at this postcode. The average speed displayed is based on the download speeds of at least 50% of customers at peak time (8pm to 10pm). Fibre/cable services at the postcode are subject to availability and may differ between properties within a postcode. Speeds can be affected by a range of technical and environmental factors. The speed at the property may be lower than that listed above. You can check the estimated speed and confirm availability to a property prior to purchasing on the broadband provider's website. Providers may increase charges. The information is provided and maintained by Decision Technologies Limited. **This is indicative only and based on a 2-person household with multiple devices and simultaneous usage. Broadband performance is affected by multiple factors including number of occupants and devices, simultaneous usage, router range etc. For more information speak to your broadband provider.
Map data ©OpenStreetMap contributors.





