
2 bedroom apartment for rent
Bellevue Road, Ventnor

Letting details
- Let available date:
- Now
- Deposit:
- £1,500A deposit provides security for a landlord against damage, or unpaid rent by a tenant.Read more about deposit in our glossary page.
- Min. Tenancy:
- Ask agent How long the landlord offers to let the property for.Read more about tenancy length in our glossary page.
- Let type:
- Long term
- Furnish type:
- Unfurnished
- Council Tax:
- Ask agent
- PROPERTY TYPE
Apartment
- BEDROOMS
2
- BATHROOMS
1
- SIZE
Ask agent
Key features
- SECOND FLOOR APARTMENT
- SEA VIEWS FROM THE PRIVATE BALCONY
- RECENTLY COMPLETED DEVELOPMENT
- TWO BEDROOMS
- OPEN PLAN LIVING/DINING ROOM
- FULLY FITTED KITCHEN WITH INTEGRATED APPLIANCES
- CONTEMPORARY FINISH THROUGHOUT
- UNFURNISHED
- LONG LET
- AVAILABLE MID OCTOBER
Description
Available for a Long Let and offered unfurnished.
The building has a fascinating history, constructed originally as a convalescent home and linked to the well-known Royal National Hospital in Ventnor, it was named Hygeia, after the Goddess of Health. Later, the building became a successful hotel and ran for many years under the name of The Burlington.
Following the extensive redevelopment of the site, viewing is highly recommended to fully appreciate the incredibly high standard throughout and the attention to detail at every turn. Care has been taken to preserve the buildings’ integrity and heritage, whilst weaving through contemporary highlights by way of high spec kitchens and bathrooms with an interesting and bold use of colour throughout.
The conversion has been undertaken sympathetically to retain many of the original features and has been divided in such a way that all apartments benefit from spacious accommodation and opportunities for direct sea views wherever possible.
With all the modern comforts you would expect from a “new build” property, residents will benefit from efficient gas central heating, double glazing and good sound insulation. The apartment has data points and WIFI access points throughout with high-speed internet included within the rent. The kitchen has granite worktops, an integrated hob, oven, fridge freezer and dishwasher. The living area has a feature period fireplace and remote-controlled gas stove to add cheer during the winter months.
All outside areas and gardens will be maintained by the Landlord and each apartment has an allocated parking space within the grounds. Tenants will have use of the communal bike store.
The apartment is accessed via the communal front door and has an intercom entry system.
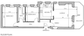
Number 8 is a second floor two bedroom apartment with a private terrace to the side with both southerly sea views and views of the Downs to the rear. Accessed via the secure communal front door and up the original staircase to the second floor;
Front Door opens into hallway with built-in coat rack, storage cupboard and doors off to;
Living Area – a spacious area with feature wall painted red and a fireplace with remote controlled gas stove, doors open out to a private terrace to the side with direct sea views. Opening through to;
Kitchen – with a good range of built-in units and all appliances integrated including double ovens and large hob.
Bedroom One – double bedroom with window to the rear
Bathroom – with suite comprising bath with shower over, basin and WC
Bedroom Two – with window to the rear
Outside
Tenants of Number 8 have one allocated parking space and use of the communal bike store
A Holding Deposit equal to one weeks' rent will be payable upon commencement of an application to rent this property
Council Tax Band B - £2,003.87 PA (2025 Charge)
TENANT PROTECTION
We are members of The Property Ombudsman Scheme, which is a government approved scheme to provide independent redress in relation to disputes between consumers and property agents.
Brochures
CMP MemberShip Certificate.pdfTenant Fee GuidanceTenancy Fee ScheduleBrochure- COUNCIL TAXA payment made to your local authority in order to pay for local services like schools, libraries, and refuse collection. The amount you pay depends on the value of the property.Read more about council Tax in our glossary page.
- Band: B
- PARKINGDetails of how and where vehicles can be parked, and any associated costs.Read more about parking in our glossary page.
- Yes
- GARDENA property has access to an outdoor space, which could be private or shared.
- Yes
- ACCESSIBILITYHow a property has been adapted to meet the needs of vulnerable or disabled individuals.Read more about accessibility in our glossary page.
- Ask agent
Bellevue Road, Ventnor
Add an important place to see how long it'd take to get there from our property listings.
__mins driving to your place
Notes
Staying secure when looking for property
Ensure you're up to date with our latest advice on how to avoid fraud or scams when looking for property online.
Visit our security centre to find out moreDisclaimer - Property reference 34112501. The information displayed about this property comprises a property advertisement. Rightmove.co.uk makes no warranty as to the accuracy or completeness of the advertisement or any linked or associated information, and Rightmove has no control over the content. This property advertisement does not constitute property particulars. The information is provided and maintained by Spence Willard, Yarmouth. Please contact the selling agent or developer directly to obtain any information which may be available under the terms of The Energy Performance of Buildings (Certificates and Inspections) (England and Wales) Regulations 2007 or the Home Report if in relation to a residential property in Scotland.
*This is the average speed from the provider with the fastest broadband package available at this postcode. The average speed displayed is based on the download speeds of at least 50% of customers at peak time (8pm to 10pm). Fibre/cable services at the postcode are subject to availability and may differ between properties within a postcode. Speeds can be affected by a range of technical and environmental factors. The speed at the property may be lower than that listed above. You can check the estimated speed and confirm availability to a property prior to purchasing on the broadband provider's website. Providers may increase charges. The information is provided and maintained by Decision Technologies Limited. **This is indicative only and based on a 2-person household with multiple devices and simultaneous usage. Broadband performance is affected by multiple factors including number of occupants and devices, simultaneous usage, router range etc. For more information speak to your broadband provider.
Map data ©OpenStreetMap contributors.








