
Mousebank Road, Lanark

- PROPERTY TYPE
Detached
- BEDROOMS
5
- BATHROOMS
2
- SIZE
Ask agent
- TENUREDescribes how you own a property. There are different types of tenure - freehold, leasehold, and commonhold.Read more about tenure in our glossary page.
Ask agent
Description
An exceptional country home in a private, elevated position, set in approximately 6 acres. Potential of extra land subject to sperate negotiation.
Woodend is a highly impressive home that has been beautifully upgraded and extended, offering a seamless blend of period charm and contemporary living. Set in a peaceful rural location on the periphery of Lanark, this stunning property enjoys complete privacy while remaining within easy reach of local amenities.
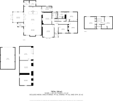
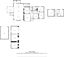
Accommodation:
From the private, tree-lined driveway, the property opens to landscaped grounds. Inside, the attention to detail is immediately evident exposed roof beams, quality flooring, and bespoke finishes create a warm yet sophisticated feel.
The heart of the home is the stunning open-plan kitchen, dining, and family room, flooded with natural light and designed for both everyday living and entertaining. The bay-windowed living room and additional sitting room offer cosy retreats, and there is a dedicated study/home office for home working, utility room and garden room.
Three well-proportioned bedrooms include a principal suite with en suite shower room, complemented by a contemporary family bathroom and a further two bedrooms and beauty room/dressing room upstairs.
Woodend will suit a variety of purchasers, in particular those looking for a lifestyle property with an abundance of possibilities including equestrian pursuits and potential further development subject to planning.
• Approx. 234 sq m of flexible living space over two levels.
• Circa 6 acres of landscaped gardens and grounds.
• Five bedrooms, including en suite principal bedroom.
• Elegant bay-windowed living room and additional sitting room.
• Spectacular open-plan kitchen, dining, and family area.
• Study/home office, garden room, utility room.
• Detached former cottage with development potential.
• Garage, terraces, decking areas, and ample parking.
• Scope for equestrian pursuits and further development (STP)
Woodend enjoys a tranquil rural setting, tucked away in a private position close to the historic market town of Lanark. This enviable location combines the best of both worlds - secluded countryside living with easy access to the vibrant cities of Glasgow and Edinburgh, both within a comfortable commuting distance.
Lanark, the most renowned town in the picturesque Clyde Valley, offers excellent transport links via the rail network, along with a broad range of shops, supermarkets, banks, and everyday amenities. The town boasts an array of restaurants and cafés, alongside first-class sporting and leisure facilities. Golf enthusiasts will appreciate Lanark Golf Club, home to a championship-standard 18-hole course.
Education provision in the area is strong, with a choice of highly regarded schools serving the community.
EPC : BAND E
COUNCIL TAX : BAND F
TENURE : FREEHOLD
EPC Rating: E
Council Tax Band: F
- COUNCIL TAXA payment made to your local authority in order to pay for local services like schools, libraries, and refuse collection. The amount you pay depends on the value of the property.Read more about council Tax in our glossary page.
- Band: F
- PARKINGDetails of how and where vehicles can be parked, and any associated costs.Read more about parking in our glossary page.
- Yes
- GARDENA property has access to an outdoor space, which could be private or shared.
- Yes
- ACCESSIBILITYHow a property has been adapted to meet the needs of vulnerable or disabled individuals.Read more about accessibility in our glossary page.
- Ask agent
Mousebank Road, Lanark
Add an important place to see how long it'd take to get there from our property listings.
__mins driving to your place
Get an instant, personalised result:
- Show sellers you’re serious
- Secure viewings faster with agents
- No impact on your credit score
Your mortgage
Notes
Staying secure when looking for property
Ensure you're up to date with our latest advice on how to avoid fraud or scams when looking for property online.
Visit our security centre to find out moreDisclaimer - Property reference TCW250023. The information displayed about this property comprises a property advertisement. Rightmove.co.uk makes no warranty as to the accuracy or completeness of the advertisement or any linked or associated information, and Rightmove has no control over the content. This property advertisement does not constitute property particulars. The information is provided and maintained by Rettie, Town & Country. Please contact the selling agent or developer directly to obtain any information which may be available under the terms of The Energy Performance of Buildings (Certificates and Inspections) (England and Wales) Regulations 2007 or the Home Report if in relation to a residential property in Scotland.
*This is the average speed from the provider with the fastest broadband package available at this postcode. The average speed displayed is based on the download speeds of at least 50% of customers at peak time (8pm to 10pm). Fibre/cable services at the postcode are subject to availability and may differ between properties within a postcode. Speeds can be affected by a range of technical and environmental factors. The speed at the property may be lower than that listed above. You can check the estimated speed and confirm availability to a property prior to purchasing on the broadband provider's website. Providers may increase charges. The information is provided and maintained by Decision Technologies Limited. **This is indicative only and based on a 2-person household with multiple devices and simultaneous usage. Broadband performance is affected by multiple factors including number of occupants and devices, simultaneous usage, router range etc. For more information speak to your broadband provider.
Map data ©OpenStreetMap contributors.






