The Old Postmaster's House, East Street, Faversham

- PROPERTY TYPE
Flat
- BEDROOMS
1
- BATHROOMS
1
- SIZE
Ask agent
Key features
- SHORT DISTANCE FROM THE RAILWAY STATION
- CONVERTED FROM FAVERSHAM'S VICTORIAN POST MASTERS HOUSE
- COMMUNAL COURTYARD GARDEN
- IDEAL FIRST TIME BUY
- CENTRAL LOCATION
Description
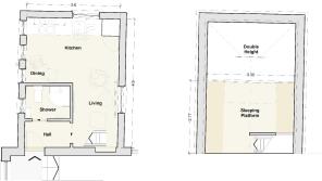
The flat features a mezzanine sleeping platform, with space for a double bed.
The shower room features a heated towel rail.
Title: New 118 Year Lease
Windows: Wooden Windows
Heating: New Electric Heating / Hot Water
Services: Mains Electric, Water and Waste
Ground Rent: £250 Ground Rent-Fixed until 2042/reviewed every 25 years
Maintenance: TBC (new lease)
Viewings strictly by appointment with Invicta Estate Agents
Additional Important information
The following information has been confirmed by our client and we have not verified this information-please ensure that you verify this information before proceeding with any purchase:
Our vendor has supplied the property construction information to the best of their knowledge, but they are not surveyors and we recommend that any purchaser carries out a survey to confirm this information.
Property Construction-Brick walls and tiled roof
Heating-Electric Radiators
Sewerage-Mains Waste
Electricity Supply-No other supply other than mains electric
Water Supply- No other supply other than mains water
Broadband Type-Not Known
We recommend that any prospective purchaser:
Check the installation types available at the address from Openreach:
Check the speed and supply or coverage at the address at Ofcom checker:
Mobile Signal/coverage
Our vendor is not aware of any known issues with mobile phone signal, such as areas of restricted coverage specific to
the property.
We recommend that any prospective purchaser:
Check the Ofcom checker to ascertain coverage availability at the property:
Check with your provider as to the availability of coverage and likely speeds
Take your mobile on a viewing and test at the property
Parking
Street parking- Permit required-Annual cost. Please check with the local authority as to the availability.
Building Safety
Our vendor is not aware of any known building safety issues or any planned or required works needed to rectify any identified
defect/hazard
Restrictions
The property is in a conservation area
Restrictions on permitted development as the property is in an area with Article 4 Direction
There are restrictions in the lease and any purchaser is asked to check the lease before proceeding with a purchase.
Rights and Easements
Our vendor is not aware of any rights of ways or easements over the property
Flood/Erosion risk
Our vendor confirms that the property has not flooded in the last 5 years
Our vendor has confirmed that they are not aware of any known risk of coastal erosion affecting the property and its boundary.
Planning Permission or Proposal for Development
Our vendor is not aware of the existence of any known planning permission or proposals for development, construction or change of use affecting the property and its immediate locality.
Coalfield or Mining Area
Our vendor is not aware of coalfield below the property and has confirmed they are not aware of any other mining activity that could affect the property.
Council Tax Band: A (Swale Borough Council)
Tenure: Leasehold (118 years)
Ground Rent: £250 per year (reviewed every 25 years)
Service Charge: £200 per year (reviewed every 1 years)
A new lease will be created on completion.
Brochures
Brochure- COUNCIL TAXA payment made to your local authority in order to pay for local services like schools, libraries, and refuse collection. The amount you pay depends on the value of the property.Read more about council Tax in our glossary page.
- Band: A
- PARKINGDetails of how and where vehicles can be parked, and any associated costs.Read more about parking in our glossary page.
- Yes
- GARDENA property has access to an outdoor space, which could be private or shared.
- Yes
- ACCESSIBILITYHow a property has been adapted to meet the needs of vulnerable or disabled individuals.Read more about accessibility in our glossary page.
- Ask agent
The Old Postmaster's House, East Street, Faversham
Add an important place to see how long it'd take to get there from our property listings.
__mins driving to your place
Get an instant, personalised result:
- Show sellers you’re serious
- Secure viewings faster with agents
- No impact on your credit score



Your mortgage
Notes
Staying secure when looking for property
Ensure you're up to date with our latest advice on how to avoid fraud or scams when looking for property online.
Visit our security centre to find out moreDisclaimer - Property reference RS0081. The information displayed about this property comprises a property advertisement. Rightmove.co.uk makes no warranty as to the accuracy or completeness of the advertisement or any linked or associated information, and Rightmove has no control over the content. This property advertisement does not constitute property particulars. The information is provided and maintained by Invicta Estate Agents, Faversham. Please contact the selling agent or developer directly to obtain any information which may be available under the terms of The Energy Performance of Buildings (Certificates and Inspections) (England and Wales) Regulations 2007 or the Home Report if in relation to a residential property in Scotland.
*This is the average speed from the provider with the fastest broadband package available at this postcode. The average speed displayed is based on the download speeds of at least 50% of customers at peak time (8pm to 10pm). Fibre/cable services at the postcode are subject to availability and may differ between properties within a postcode. Speeds can be affected by a range of technical and environmental factors. The speed at the property may be lower than that listed above. You can check the estimated speed and confirm availability to a property prior to purchasing on the broadband provider's website. Providers may increase charges. The information is provided and maintained by Decision Technologies Limited. **This is indicative only and based on a 2-person household with multiple devices and simultaneous usage. Broadband performance is affected by multiple factors including number of occupants and devices, simultaneous usage, router range etc. For more information speak to your broadband provider.
Map data ©OpenStreetMap contributors.




