Laundry Cottage, School Lane, Dunston

- PROPERTY TYPE
Detached
- BEDROOMS
3
- BATHROOMS
1
- SIZE
Ask agent
- TENUREDescribes how you own a property. There are different types of tenure - freehold, leasehold, and commonhold.Read more about tenure in our glossary page.
Freehold
Key features
- Beautifully presented and deceptively spacious detached cottage in a pleasant rural setting
- Three bedrooms plus a study area landing, ideal for home working or reading nook
- Cottage-style open-plan kitchen diner with adjoining sitting area, perfect for entertaining
- Fitted utility room and convenient ground floor guest WC
- Characterful lounge with feature beams, offering warmth and charm
- Large conservatory/orangery to the rear, filled with natural light
- 31ft DETACHED GARAGE ideal for annex conversion or home office (STPP)
- Luxurious family bathroom with freestanding bath and separate shower
- Generous gated off-road parking area to the side of the property
- Stunning landscaped rear garden with stone entertainment patio
Description
" KNOWN AS LAUNDRY COTTAGE " A WONDERFUL HOME IN A PLEASANT RURAL LOCATION PERFECT FOR MOTOWAY COMMUTORS QUOTE REF - LC1235
Lee Cooke Personal Estate agents " Luxury Collection " highly recommends an early viewing to fully appreciate this beautifully presented and deceptively spacious detached countryside cottage.
The ground floor showcases a stunning traditional-style open plan kitchen diner with adjoining sitting area, featuring an exposed brick wall and striking ceiling beams, perfect for both everyday living and entertaining. Additional ground floor accommodation includes a fitted utility room, guest WC, rear access, a spacious lounge, and a charming orangery/conservatory overlooking the garden.
On the first floor, a small study area landing leads to three bedrooms, a walk-in wardrobe, and a luxurious traditional family bathroom complete with a freestanding roll-top bath and separate shower cubicle.
Externally, the property enjoys a beautiful landscaped rear garden with an entertainment patio, along with a detached garage to the side. The garage offers exciting potential for conversion (subject to planning), with possibilities including a granny annex, hobby room, home office, or family entertainment area.
Lee Cooke Personal Estate Agents comment: “This is a must-view property, ideally located in a popular rural setting with excellent commuter links, boasting charm, character, and a wealth of original features.”
For further details, to arrange a viewing, or to book a free selling valuation, please contact Lee Cooke Personal Estate Agents.
Location & Area
This charming cottage is located on School Lane, Dunston, a sought-after rural village just outside Stafford. Dunston is renowned for its idyllic countryside setting, while still being highly convenient for commuters with excellent access to the M6 motorway (Junction 13) and nearby road networks connecting to Stafford, Wolverhampton, and Birmingham.
The county town of Stafford lies only a short drive away, offering a wide range of shopping, dining, and leisure facilities, along with a mainline railway station providing regular direct services to London Euston, Birmingham, and Manchester.
For families, the area is well-served by a selection of highly regarded local schools and sixth form colleges within the Stafford district. Surrounding countryside provides a wealth of scenic walks, bridleways, and outdoor activities, perfect for those seeking a balance between rural living and modern convenience.
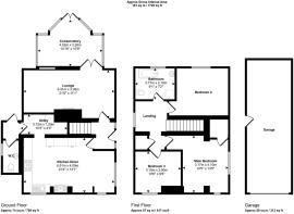
Entrance Hall
Welcoming entrance hall with side access via a wooden door beneath an open canopy, featuring a charming stained glass window, wooden flooring, stairs to the first floor, central heating radiator, and doors leading to the principal rooms.
Entertainment Kitchen Diner and Sitting Area 21’ x 13’ (max)
A truly stunning cottage-style kitchen with adjoining sitting area, showcasing a traditional exposed brick feature wall with arched mantles and a freestanding range cooker. Quarry-style tiled flooring, leaded double-glazed windows to front and side, fitted wall and base units with oak worktops, feature under unit lighting brick-effect tiled splashbacks, integrated sink, dishwasher, and hob. Central heating radiator and opening through to the utility area.
Utility Area
With stable-style door to side access, oak worktops, tiled flooring, and base units. Opens into the kitchen and guest WC.
Guest WC / Rear Entrance
Fitted suite comprising low flush WC and wall-mounted wash basin, with part-panelled walls, wall storage cupboard, plumbing for washing machine, spotlights, and double-glazed window to side. Stable-style door leads into the utility area.
Family Lounge – 21’3” x 11’
Beautiful cottage-style lounge with exposed ceiling beams, brick fireplace with log burner and quarry tiled hearth and feature upper shelving, wooden window overlooking the conservatory, and French doors opening into the orangery, wooden door leading to entrance hall.
Conservatory/Orangery – 15’ x 12’ (into bay)
Flooded with natural light, featuring traditional oak flooring, French glazed doors into the lounge, windows overlooking the garden, and French doors leading to the rear patio.
Study Landing
Pleasant study area landing with a selection of wooden doors to various rooms, double glazed window to side, stairs to ground floor, large loft access, feature ceiling beams and airing cupboard.
Bedroom One 13' 1'' x 10' 5''
Having double glazed windows to front and side offering countryside views, feature radiator and door to landing, walk in wardrobe (ideal for wet room/shower area subject to builders advise).
Bedroom Two 11' 5'' x 11' 1'' into recess
Leaded double glazed window to rear, central heated radiator, door to landing and garden views.
Bedroom Three 10' 5'' x 9' 6'' into recess
Leaded double glazed window to front, feature vaulted ceiling with oak beams and upper storage area, loft access, central heated radiator and door to landing.
Family Bathroom
Leaded double glazed window to rear with garden views, wooden door to first floor landing, feature oak ceiling beams, part wooden panelled walls, wooden flooring traditional fitted bathroom suite with free standing roll top bath, with complementary mixer tap and matching high flush toilet, pedestal column wash basin and separate walk in shower cubicle, feature radiator and corner storage cupboard.
Front Garden & Driveway
Gravelled front garden with mature shrubs and plants. Double-opening gates with central wooden gate lead to a large concrete driveway providing extensive off-road parking, open canopy with lighting.
Detached Garage – 31’2” x 10’7”
Substantial garage with upper storage area, double opening front gates, side access door and window. This space offers excellent potential for conversion into a home office, annex, or entertainment space (subject to planning permission).
Rear Garden
A beautifully landscaped and mature garden with multiple entertainment areas. The main stone patio is complemented by a dwarf brick wall, lawned sections with planted borders, paved seating areas, and an open log store. The garden enjoys uninterrupted views over farmland, with a further “secret garden” area, complete with its own patio and ornamental planting, creating a pleasant retreat.
_________________________________________________________________________________________________________________
Services
Please confirm with your solicitor regarding the connected services to the property.
Fixtures and Fittings
Any fixtures and fittings not specifically mentioned within these sales particulars are excluded from the sale, although they may be available through separate negotiation. Please confirm details with either the vendor or Lee Cooke Personal Estate Agents eXp.
Consumer Protection
The property details are meant to give a general overview of the property, they don’t form any part of a contract. We have not carried out a survey or tested any services or fittings. Measurements, photos, and floorplans greyscales and ariel views are for guidance only and do not represent the properties legal boundaries and should be checked with your solicitor before incurring any costs. All images and information are the copyright of Lee Cooke Personal Estate Agents eXp. We may update these details at any time without notice.
Free Market Appraisal & Our Partners
We offer a FREE SELLING VALUATION APPRAISAL within West Midlands, Staffordshire and Shropshire. This can be booked through our website or call one of our helpful team members. We work closely with a number of business partners which include property lawyers and mortgage advisors - we may receive referral fees. We offer a number of different marketing packages and provide free accompanies viewing services for vacant properties.
Disclaimer
The information contained within this advertisement is provided as a guide only. Lee Cooke Personal Estate Agents eXp, Rightmove, Zoopla & OnTheMarket accept no responsibility for the accuracy or completeness of the details provided. This advertisement does not constitute property particulars and should not be relied upon as such.
Brochures
Brochure 1- COUNCIL TAXA payment made to your local authority in order to pay for local services like schools, libraries, and refuse collection. The amount you pay depends on the value of the property.Read more about council Tax in our glossary page.
- Ask agent
- PARKINGDetails of how and where vehicles can be parked, and any associated costs.Read more about parking in our glossary page.
- Yes
- GARDENA property has access to an outdoor space, which could be private or shared.
- Yes
- ACCESSIBILITYHow a property has been adapted to meet the needs of vulnerable or disabled individuals.Read more about accessibility in our glossary page.
- Ask agent
Energy performance certificate - ask agent
Laundry Cottage, School Lane, Dunston
Add an important place to see how long it'd take to get there from our property listings.
__mins driving to your place
Get an instant, personalised result:
- Show sellers you’re serious
- Secure viewings faster with agents
- No impact on your credit score
Your mortgage
Notes
Staying secure when looking for property
Ensure you're up to date with our latest advice on how to avoid fraud or scams when looking for property online.
Visit our security centre to find out moreDisclaimer - Property reference S1420309. The information displayed about this property comprises a property advertisement. Rightmove.co.uk makes no warranty as to the accuracy or completeness of the advertisement or any linked or associated information, and Rightmove has no control over the content. This property advertisement does not constitute property particulars. The information is provided and maintained by eXp UK, West Midlands. Please contact the selling agent or developer directly to obtain any information which may be available under the terms of The Energy Performance of Buildings (Certificates and Inspections) (England and Wales) Regulations 2007 or the Home Report if in relation to a residential property in Scotland.
*This is the average speed from the provider with the fastest broadband package available at this postcode. The average speed displayed is based on the download speeds of at least 50% of customers at peak time (8pm to 10pm). Fibre/cable services at the postcode are subject to availability and may differ between properties within a postcode. Speeds can be affected by a range of technical and environmental factors. The speed at the property may be lower than that listed above. You can check the estimated speed and confirm availability to a property prior to purchasing on the broadband provider's website. Providers may increase charges. The information is provided and maintained by Decision Technologies Limited. **This is indicative only and based on a 2-person household with multiple devices and simultaneous usage. Broadband performance is affected by multiple factors including number of occupants and devices, simultaneous usage, router range etc. For more information speak to your broadband provider.
Map data ©OpenStreetMap contributors.





