Grasmere Avenue, Little Lever, Bolton

- PROPERTY TYPE
Semi-Detached Bungalow
- BEDROOMS
3
- BATHROOMS
2
- SIZE
Ask agent
Key features
- 3 Bedroom Semi Detached Dormer Bungalow For Sale
- Fantastic Family Home
- Low Maintenance Gardens
- Off Road Parking
- Fully Landscaped Rear Garden
- Beautifully Presented
- Double Glazed Throughout
- Leasehold Property
- Council Tax C
- EPC Rating D
Description
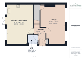
Entering the property via a side composite door, you step into a welcoming L-shaped hallway. From here, you can access the downstairs WC, electric meter cupboard, lounge, kitchen/diner and staircase leading to the first-floor accommodation.
The downstairs cloakroom comprises a WC, wash basin with enclosed vanity unit and laminate flooring. A frosted double-glazed window allows for natural light, while there is also useful space for storing coats and shoes.
The spacious lounge, located at the front aspect, is beautifully presented with a modern décor. It features a grey fitted carpet, two double-glazed windows flooding the room with natural light, two radiators with stylish covers, ceiling lights, wall lights and ample space for living room furnishings. Additionally, there is convenient under-stair storage, perfect for household items.
At the rear of the property lies the impressive kitchen diner, with the current owners using the dining area as a second reception space. The kitchen itself boasts a range of sleek white high-gloss wall and base units with complementary work surfaces, laminate flooring, a built-in electric oven and a gas hob with extractor fan. Partly tiled walls and spotlights add a modern touch, while a breakfast island provides the perfect spot for casual dining. An integrated dishwasher, plumbing for a washing machine and space for a tall fridge/freezer. The room is completed with two double-glazed windows, TV aerial, and French doors opening out to the rear garden.
Ascending to the first floor, you will find a spacious landing area with fitted carpet, spotlights, and a radiator. This landing provides access to three well-proportioned bedrooms and a stylish shower room.
Bedroom One, positioned at the front of the property, offers a grey fitted carpet, double-glazed window, radiator, ceiling light and space for a range of bedroom furnishings. This room also benefits from a convenient walk-in wardrobe.
Bedrooms Two and Three are situated to the rear aspect. Both rooms are similar in size, each with fitted carpet, a double-glazed window, radiator, ceiling light and space for a bed along with additional furnishings.
The stunning shower room is finished to a high standard, featuring fully tiled walls, a walk-in shower with glass door, waterfall shower and handheld attachment, WC and wash basin with enclosed vanity unit. The room is complemented by tiled flooring, spotlights, and a large chrome wall-mounted radiator.
Externally, the rear garden has been fully landscaped to create a fantastic outdoor living space. A large Indian stone patio provides the perfect area for entertaining, while low-maintenance artificial grass is framed by mature shrubs and trees. A purpose-built garage offers additional storage or the potential to be used as a home office. There is also a private area for a hot tub (negotiable within the sale price), as well as side access for bin storage. This garden is an ideal retreat for all the family to enjoy.
LOCATION Located on Grasmere Avenue in Little Lever, this property enjoys close proximity to a variety of facilities Nearby, Moses Gate Country Park (also known as Crompton Lodges) provides an ideal setting for leisurely strolls around the lodge or fun outings at the children's adventure park. For dining options, The Jolly Carter is just a short walk away, offering delicious food and live sports entertainment. Families will appreciate the convenience of Bowness Primary School being close by, making it perfect for parents with busy schedules. Additionally, a petrol station and convenience store located off Fearney Side add to the practicality of the location. From here, you can easily access the local bus route connecting to Bolton, Radcliffe and Farnworth.
ADDITIONAL INFORMATION To conform with government Anti Money Laundering Regulations 2019, we are required to confirm the identity of all prospective buyers. We use the services of a third party, Thirdfort. There is a nominal charge of £30 + VAT £6.00 Total £36.00 for this** (per person), payable direct to Hannon Holmes Ltd. These fees are non- refundable. **An increased charge may be payable for overseas checks.
Please note, we are unable to issue a memorandum of sale until checks are complete. Please note it is a legal requirement that we obtain verified ID from purchasers before instructing a sale. Please also note we shall require proof of funds before we instruct the sale, together with your instructed solicitors.
Hannon Holmes may refer you to ancillary services including Conveyancing, Surveying and Financial Services, should you require any of these services. Hannon Holmes may receive a referral fee for recommending their services if you do instruct them. You are free to select any provider of legal services, surveying or financial services that you choose and you are under no obligation to use any of the suggested providers.
EPC Rating D Valid until 2027
Council Tax C £2,008.42
Leasehold Property
999 years from 28 May 1971
Remaining Years 945
Ground Rent £12 per annum
REFERRAL FEES Hannon Holmes may refer you to ancillary services including Conveyancing, Surveying and Financial Services, should you require any of these services. Hannon Holmes may receive a referral fee for recommending their services if you do instruct them. You are free to select any provider of legal services, surveying or financial services that you choose and you are under no obligation to use any of the suggested providers.
PROPERTY PARTICULARS DISCLAIMER Property particulars as supplied by Hannon Holmes Estate Agents are set out as a general outline in accordance with the Property Misdescriptions Act (1991) only for the guidance of intending purchasers or lessees, and do not constitute any part of an offer or contract. Details are given without any responsibility, and any intending purchasers, lessees or third parties should not rely on them as statements or representations of fact, but must satisfy themselves by inspection or otherwise as to the correctness of each of them. We have not carried out a structural survey and the services, appliances and specific fittings have not been tested. All photographs, measurements, floor plans and distances referred to are given as a guide only and should not be relied upon for the purchase of carpets or any other fixtures or fittings. Gardens, roof terraces, balconies and communal gardens as well as tenure and lease details cannot have their accuracy guaranteed for intending purchasers. Lease details, service ground rent (where applicable) are given as a guide only and should be checked and confirmed by your solicitor prior to exchange of contracts. No person in the employment of Hannon Holmes Ltd has any authority to make any representation or warranty whatever in relation to this property. Purchase prices, rents or other prices quoted are correct at the date of publication and, unless otherwise stated, exclusive of VAT. TENURE : The type of tenure has been given to us by the seller. This has not been verified. The Agent has not checked the legal documents to verify the tenure status of the property. The buyer is advised to obtain verification from their Solicitor or Surveyor. For full Property Particulars Disclaimer please visit
- COUNCIL TAXA payment made to your local authority in order to pay for local services like schools, libraries, and refuse collection. The amount you pay depends on the value of the property.Read more about council Tax in our glossary page.
- Band: C
- PARKINGDetails of how and where vehicles can be parked, and any associated costs.Read more about parking in our glossary page.
- Off street
- GARDENA property has access to an outdoor space, which could be private or shared.
- Yes
- ACCESSIBILITYHow a property has been adapted to meet the needs of vulnerable or disabled individuals.Read more about accessibility in our glossary page.
- Ask agent
Grasmere Avenue, Little Lever, Bolton
Add an important place to see how long it'd take to get there from our property listings.
__mins driving to your place
Get an instant, personalised result:
- Show sellers you’re serious
- Secure viewings faster with agents
- No impact on your credit score


Your mortgage
Notes
Staying secure when looking for property
Ensure you're up to date with our latest advice on how to avoid fraud or scams when looking for property online.
Visit our security centre to find out moreDisclaimer - Property reference 103135006024. The information displayed about this property comprises a property advertisement. Rightmove.co.uk makes no warranty as to the accuracy or completeness of the advertisement or any linked or associated information, and Rightmove has no control over the content. This property advertisement does not constitute property particulars. The information is provided and maintained by Hannon Holmes Limited, Bolton. Please contact the selling agent or developer directly to obtain any information which may be available under the terms of The Energy Performance of Buildings (Certificates and Inspections) (England and Wales) Regulations 2007 or the Home Report if in relation to a residential property in Scotland.
*This is the average speed from the provider with the fastest broadband package available at this postcode. The average speed displayed is based on the download speeds of at least 50% of customers at peak time (8pm to 10pm). Fibre/cable services at the postcode are subject to availability and may differ between properties within a postcode. Speeds can be affected by a range of technical and environmental factors. The speed at the property may be lower than that listed above. You can check the estimated speed and confirm availability to a property prior to purchasing on the broadband provider's website. Providers may increase charges. The information is provided and maintained by Decision Technologies Limited. **This is indicative only and based on a 2-person household with multiple devices and simultaneous usage. Broadband performance is affected by multiple factors including number of occupants and devices, simultaneous usage, router range etc. For more information speak to your broadband provider.
Map data ©OpenStreetMap contributors.





