
Land for sale
Church Lane, Alvingham LN11 0QD
- PROPERTY TYPE
Land
- SIZE
Ask agent
Key features
- Full Planning Permission
- Over 0.25 acre (subject to survey)
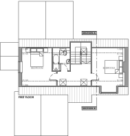
- Attractive cottage style design approved
- 2/ 3 bedrooms, living room with fireplace
- Feature living/dining-kitchen with vaulted ceiling and glazed gable
- Excellent detached timber outbuilding included in the sale
- Attractive, mature and peaceful rural village setting
Description
IMPORTANT - please see the PDF brochure for full details
Brochures
Online PDF Brochu...Church Lane, Alvingham LN11 0QD
NEAREST STATIONS
Distances are straight line measurements from the centre of the postcode- Cleethorpes Station11.6 miles
Notes
Disclaimer - Property reference 101134009170. The information displayed about this property comprises a property advertisement. Rightmove.co.uk makes no warranty as to the accuracy or completeness of the advertisement or any linked or associated information, and Rightmove has no control over the content. This property advertisement does not constitute property particulars. The information is provided and maintained by Masons Sales, Louth. Please contact the selling agent or developer directly to obtain any information which may be available under the terms of The Energy Performance of Buildings (Certificates and Inspections) (England and Wales) Regulations 2007 or the Home Report if in relation to a residential property in Scotland.
Map data ©OpenStreetMap contributors.










