
Tickhill Road, Balby, Doncaster

- PROPERTY TYPE
Detached
- BEDROOMS
7
- BATHROOMS
2
- SIZE
Ask agent
- TENUREDescribes how you own a property. There are different types of tenure - freehold, leasehold, and commonhold.Read more about tenure in our glossary page.
Freehold
Description
BEAUTIFUL PERIOD STYLE DETACHED HOUSE / SUBSTANTIAL ACCOMMODATION OVER 4 FLOORS / VERY LARGE REAR GARDEN OVER 180'0 FEET / 7 BEDROOMS & 3 RECEPTION ROOMS / OFF ROAD PARKING FOR 4 CARS PLUS / SOME COSMETIC UPDATING REQUIRED / HUGE POTENTIAL / VIEWING RECOMMENDED //
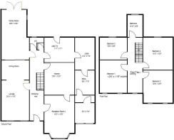
A surprisingly spacious beautiful period detached detached house laid out over 4 floors, offering 7 bedrooms 3 reception rooms in a large mature garden. The property offers huge potential yet does require some cosmetic refurbishment. It has a gas central heating system and briefly comprises: Period style entrance hall, 3 reception rooms, kitchen, utility, lean-to, plus additional stores and cellars. On the first floor there are 4 bedrooms and a bathroom and on the top floor there are 3 further double bedrooms. The property stands within mature gardens, the rear is over 180'0" long, off road parking for several cars, with potential to create more parking. Popular central roadway. VIEWING HIGHLY RECOMMENDED.
Accommodation - An original brick portico gives shelter to a timber entrance door with a period surround including leaded glass, and opens into the entrance hall.
Entrance Hall - This retains its period style, it has a mosaic tiled floor, staircase to the first floor accommodation and doors leading to;
Reception Room 1 - 4.65m x 3.66m (15'3" x 12'0") - A large front facing reception room with high ceilings including decorative coving and a ceiling rose. A period feature fireplace, picture rail, dado rail, boarded floor with two central ceiling lights and a sashed window to the front.
Reception Room 2 - A second large reception room having a feature bay window to the front, high ceilings, ornate cornicing, ceiling light and central heating radiator.
Reception Room 3 - 5.99m x 3.28m (19'8" x 10'9") - A large rear facing reception room, with two pvc double glazed double opening doors which lead out into the property's rear garden. A timber casement window to the side, central heating radiator, laminate flooring, a feature fireplace, ornate cornicing to the ceiling and three ceiling lights.
Kitchen - 3.81m x 3.66m (12'6" x 12'0") - This has a range of base and wall units with single drainer 1½ bowl stainless steel sink unit, space for Range style cooker, a further double oven, a tiled floor and timber casement window which gives an outlook towards the rear courtesy of the lean-to.
Lean-To - 3.53m x 2.31m (11'7" x 7'7") - This has double doors which lead out into the property's rear garden, 3 stainless steel sinks and a door to the utility room.
Utility Room - 4.01m x 2.13m (13'2" x 7'0") - This has a range of base and wall units, plumbing for 2 washing machines in a stack system, a single drainer stainless steel sink, space for 2 dryers.
Pantry Style Store - 2.90m x 2.36m (9'6" x 7'9") - This has a ceiling light, tiled floor, a door way from here continues into a further store.
Store - This has shelving, light and a further door into the front of the garage which provides useful storage.
From the entrance hall, stairs lead to a stage landing.
Stage Landing - A door from here leads into the bathroom, and stairs continue to the first floor.
Bathroom - 2.69m x 2.59m (8'10" x 8'6") - This is fitted with a four piece suite comprising of panelled bath, pedestal wash basin, low flush wc and a shower enclosure. A timber casement sash window, central heating radiator and a tiled floor.
First Floor Landing - There is a sash window to the front, ceiling light, doors to bedrooms and the stairs continue to the upper floor.
Bedroom 1 - 3.81m x 3.28m (12'6 x 10'9") - This is a good size double room, it has two windows to the front, ceiling light and a central heating radiator.
Bedroom 2 - 3.81m x 3.66m (12'6" x 12'0") - This is good size second double bedroom, it has two sash windows to the front, a central heating radiator, laminate floor and a ceiling light.
Bedroom 3 - 3.28m x 2.59m (10'9" x 8'6") - This has a timber casement window to the rear, cupboard set into a recess, central heating radiator and a central ceiling light.
Bedroom 4 - 3.96m x 3.66m (13'0" x 12'0") - A large double bedroom, it has a timber casement window to the rear and a central heating radiator.
Half Landing - This continues up to the top floor landing which has a built-in cupboard and doors leading to bedrooms.
Bedroom 5 - 3.96m x 3.66m (13'0" x 12'0") - A double bedroom, it has a sash window to the front, central heating radiator, boarded floor and a ceiling light.
Bedroom 6 - 3.66m x 3.56m (12'0" x 11'8") - A double bedroom, it has a sash window to the rear, built-in wardrobe, laminate floor, fireplace and a ceiling light.
Bedroom 7 - 4.65m x 3.35m (15'3 x 11'0") - A slightly larger double bedroom, it has a double glazed velux window to the rear, central heating radiator and a ceiling light.
Outside - The property stands in large mature gardens, the rear extending some 100 feet or so. To the front there is a side driveway providing off road parking for 2 cars, lawned garden with hedging, maturing bushes, shrubs and trees etc.
Rear Garden - This is a particularly good size and extends here some 100 feet or so. It is sub-divided into sub-sections with ornamental trees, shrubs, plants and seating areas etc.
Agents Notes: - TENURE - FREEHOLD.
SERVICES - All mains services are connected.
GLAZING - Timber casement windows. Age of units various TBC.
HEATING - Gas radiator central heating. Age of boiler 2019
COUNCIL TAX - Band E
BROADBAND - Ultrafast broadband is available with download speeds of up to xxxx mbps and upload speeds of up to xxxx mbps.
MOBILE COVERAGE - Coverage is available with EE, Three, 02 and Vodafone.
VIEWING - By prior telephone appointment with horton knights estate agents.
MEASUREMENTS - Please note all measurements are approximate and for guidance purposes only, with a six inch tolerance. Therefore please do NOT rely upon them for carpet measurements, furniture and the like. Similarly, the floor plan is designed as a visual reference and is NOT a scale drawing.
PROPERTY PARTICULARS - We endeavour to make our property particulars accurate and reliable, however if there is a point that is especially important to you, please contact ourselves prior to exchange of contracts, so that we may further clarify that point. We DO NOT give any warranty to the suitability of any part, including fixtures and fittings of this property, prospective buyers are kindly asked to take specific advice from their professional advisors.
OPENING HOURS - Monday - Friday 9:00 - 5:30 Saturday 9:00 - 3:00 Sunday
INDEPENDENT MORTGAGE ADVICE - With so many mortgage options to choose from, how do you know your getting the best deal? Quite simply...YOU DON'T. Talk to an expert. We offer uncomplicated impartial advice. Call us today: .
FREE VALUATIONS - If you need to sell a house then please take advantage of our FREE VALUATION service, contact our Doncaster Office for a prompt and efficient service.
Brochures
Tickhill Road, Balby, DoncasterBrochure- COUNCIL TAXA payment made to your local authority in order to pay for local services like schools, libraries, and refuse collection. The amount you pay depends on the value of the property.Read more about council Tax in our glossary page.
- Band: E
- PARKINGDetails of how and where vehicles can be parked, and any associated costs.Read more about parking in our glossary page.
- Driveway
- GARDENA property has access to an outdoor space, which could be private or shared.
- Yes
- ACCESSIBILITYHow a property has been adapted to meet the needs of vulnerable or disabled individuals.Read more about accessibility in our glossary page.
- Ask agent
Tickhill Road, Balby, Doncaster
Add an important place to see how long it'd take to get there from our property listings.
__mins driving to your place
Get an instant, personalised result:
- Show sellers you’re serious
- Secure viewings faster with agents
- No impact on your credit score



Your mortgage
Notes
Staying secure when looking for property
Ensure you're up to date with our latest advice on how to avoid fraud or scams when looking for property online.
Visit our security centre to find out moreDisclaimer - Property reference 34118830. The information displayed about this property comprises a property advertisement. Rightmove.co.uk makes no warranty as to the accuracy or completeness of the advertisement or any linked or associated information, and Rightmove has no control over the content. This property advertisement does not constitute property particulars. The information is provided and maintained by Horton Knights, Doncaster. Please contact the selling agent or developer directly to obtain any information which may be available under the terms of The Energy Performance of Buildings (Certificates and Inspections) (England and Wales) Regulations 2007 or the Home Report if in relation to a residential property in Scotland.
*This is the average speed from the provider with the fastest broadband package available at this postcode. The average speed displayed is based on the download speeds of at least 50% of customers at peak time (8pm to 10pm). Fibre/cable services at the postcode are subject to availability and may differ between properties within a postcode. Speeds can be affected by a range of technical and environmental factors. The speed at the property may be lower than that listed above. You can check the estimated speed and confirm availability to a property prior to purchasing on the broadband provider's website. Providers may increase charges. The information is provided and maintained by Decision Technologies Limited. **This is indicative only and based on a 2-person household with multiple devices and simultaneous usage. Broadband performance is affected by multiple factors including number of occupants and devices, simultaneous usage, router range etc. For more information speak to your broadband provider.
Map data ©OpenStreetMap contributors.






