Ortzen Street, NOTTINGHAM
- PROPERTY TYPE
 Land
- BEDROOMS
 35
- BATHROOMS
 35
- SIZE
 Ask agent
Key features
- UNSOLD AT AUCTION
 - 09 September 2025
 - EPC Rating - Exempt
 
Description
SUMMARY
GUIDE PRICE £750,000 - • Opportunity to acquire a freehold development site in Radford
• Full planning permission granted for demolition of the existing unit and construction of a three- storey, 35-bed student accommodation building
• Great student location
DESCRIPTION
AVAILABLE POST AUCTION
GUIDE PRICE: £750,000
AUCTION DATE: TUESDAY 9th SEPTEMBER 2025
LEGAL PACK: Download from Barnard Marcus Auctions
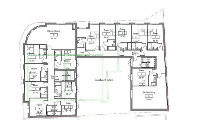
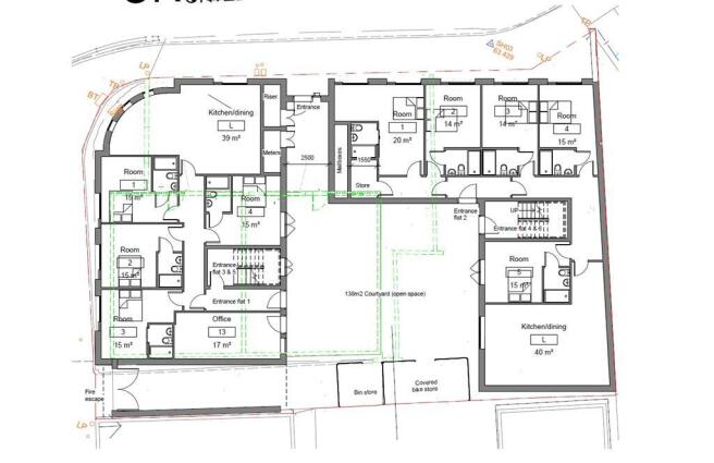
A freehold development opportunity, with full planning permission (23/00711/PFUL3) granted for the demolition of the existing unit and construction of a three-storey, 35-bed student accommodation building. Each unit will have en-suite shower room, and two communal kitchens per storey, six in total. Located in Radford, Nottingham, less than a mile from Nottingham City Centre and Nottingham Trent University, and less than 2 miles from the University of Nottingham. There is high demand for student accommodation in Nottingham with Nottingham University and Nottingham Trent University both attracting students internationally and from the UK. There are amenities close by, including eateries, bars, supermarkets, convenience stores, as well as bus routes servicing the city centre and surrounding areas. Nottingham also has a train station.
Planning Permission
Full planning permission was granted under 23/00711/PFUL3 by Nottingham City Council on 10th October 2024 for demolition of existing building and construction of a three-storey, 35-bed purpose-built student accommodation building.
Agent Note: The business currently operating on-site has licence to operate until 1st January 2026, so no development can commence prior to that date.
Broadband: buyers to rely on their own enquiries
Mobile Coverage: buyers to rely on their own enquiries
EPC:
N/A
Council Tax Band:
N/A
Tenure:
Freehold
Viewings:
William H Brown, 20 Upper Parliament Street, Nottingham, NG1 2AG. Tel: .
Email: By arrangement with the auctioneers - please see important advice for viewers on page 19 of this catalogue
FOR SALE VIA THE MIDLANDS AUCTION CENTRE IN ASSOCIATION WITH BARNARD MARCUS AUCTIONS TUESDAY 9th SEPTEMBER 2025 AT 9.30AM AT THE DE VERE GRAND CONNAUGHT ROOMS, 61-65 GREAT QUEEN STREET, COVENT GARDENS, LONDON WC2B 5DA. YOU CAN ALSO REGISTER FOR ONLINE BIDDING.
CONDITIONS OF SALE
The Conditions of Sale will be deposited at the offices of the auctioneers and vendor’s solicitors seven days prior to sale and the purchaser shall be deemed to have knowledge of the same whether inspected or not. Any questions relating to them must be raised prior to the auction. Prospective purchasers are advised to check with the auctioneers before the sale that the property is neither sold nor withdrawn. The purchaser will also be deemed to have read and understood the auction conduct notes printed within the sale catalogue.
Health & Safety Advice for Property Viewers.
Whilst the auctioneers make every effort to ensure the safety and security of viewers at lots, we have not carried out a detailed Health & Safety inspection of the lots in our auction and cannot therefore guarantee the safety and security of viewers. All persons attend properties entirely at their own risk. Particular care should be taken when accessing cellars, attics, exterior grounds, outbuildings and boundaries. All unaccompanied inspections of vacant sites should be made in daylight hours only and entry into such sites is entirely at the viewers’ risk.
*Guide and Reserve Prices
Guide Price: An indication of the seller's current minimum acceptable price at auction. The guide price or range of guide prices is given to assist consumers in deciding whether or not to pursue a purchase. It is usual, but not always the case that a provisional reserve range is agreed between the seller and the auctioneer at the start of marketing. As the reserve is not fixed at this stage and can be adjusted by the seller at any time up to the day of the auction in the light of interest shown during the marketing period, a guide price is issued. This guide price can be shown in the form of a minimum and maximum price range within which an acceptable sale price (reserve) would fall, or as a single price figure within 10% of which the minimum acceptable price (reserve) would fall. A guide price is different to a reserve price (see separate definition). Both the guide price and the reserve price can be subject to change up to and including the day of the auction.
NOTE
The auctioneers offer four ways to bid including internet, telephone, proxy, and live room bidding. Prospective purchasers will need to register to bid and pay a holding deposit before the sale commences by registering at Barnard Marcus Auctions website. We do not take credit card or cash deposits. The sale of each lot is subject to a documentation charge of £1,500 (including vat) payable on the fall of the hammer.
Guidance notes are set out in the catalogue in relation to auction lots, particularly from a purchasing perspective.
1. MONEY LAUNDERING REGULATIONS: Intending purchasers will be asked to produce identification documentation at a later stage and we would ask for your co-operation in order that there will be no delay in agreeing the sale.
2. General: While we endeavour to make our sales particulars fair, accurate and reliable, they are only a general guide to the property and, accordingly, if there is any point which is of particular importance to you, please contact the office and we will be pleased to check the position for you, especially if you are contemplating travelling some distance to view the property.
3. Photographs and Measurements: Some images may have been taken by a wide angled lens camera. These approximate room sizes are only intended as general guidance. You must verify the dimensions carefully before ordering carpets or any built-in furniture.
4. Services: Please note we have not tested the services or any of the equipment or appliances in this property, accordingly we strongly advise prospective buyers to commission their own survey or service reports before finalising their offer to purchase.
5. THESE PARTICULARS ARE ISSUED IN GOOD FAITH BUT DO NOT CONSTITUTE REPRESENTATIONS OF FACT OR FORM PART OF ANY OFFER OR CONTRACT. THE MATTERS REFERRED TO IN THESE PARTICULARS SHOULD BE INDEPENDENTLY VERIFIED BY PROSPECTIVE BUYERS OR TENANTS. NEITHER SEQUENCE (UK) LIMITED NOR ANY OF ITS EMPLOYEES OR AGENTS HAS ANY AUTHORITY TO MAKE OR GIVE ANY REPRESENTATION OR WARRANTY WHATEVER IN RELATION TO THIS PROPERTY.
Brochures
Full DetailsOrtzen Street, NOTTINGHAM
NEAREST STATIONS
Distances are straight line measurements from the centre of the postcode- High School Tram Stop0.3 miles
 - The Forest Tram Stop0.3 miles
 - Hyson Green Market Tram Stop0.4 miles
 
Notes
Disclaimer - Property reference AUC0048428. The information displayed about this property comprises a property advertisement. Rightmove.co.uk makes no warranty as to the accuracy or completeness of the advertisement or any linked or associated information, and Rightmove has no control over the content. This property advertisement does not constitute property particulars. The information is provided and maintained by Bagshaws Residential, Derby Auctions. Please contact the selling agent or developer directly to obtain any information which may be available under the terms of The Energy Performance of Buildings (Certificates and Inspections) (England and Wales) Regulations 2007 or the Home Report if in relation to a residential property in Scotland.
Auction Fees: The purchase of this property may include associated fees not listed here, as it is to be sold via auction. To find out more about the fees associated with this property please call Bagshaws Residential, Derby Auctions on 01332 215613.
*Guide Price: An indication of a seller's minimum expectation at auction and given as a Guide Price or a range of Guide Prices. This is not necessarily the figure a property will sell for and is subject to change prior to the auction.
Reserve Price: Each auction property will be subject to a Reserve Price below which the property cannot be sold at auction. Normally the Reserve Price will be set within the range of Guide Prices or no more than 10% above a single Guide Price.
Map data ©OpenStreetMap contributors.







