
4 bedroom detached house for sale
Boyles Court, Dark Lane, Great Warley, CM14

- PROPERTY TYPE
Detached
- BEDROOMS
4
- BATHROOMS
2
- SIZE
1,860 sq ft
173 sq m
- TENUREDescribes how you own a property. There are different types of tenure - freehold, leasehold, and commonhold.Read more about tenure in our glossary page.
Freehold
Key features
- 16 acres of private parkland
- Garage
- Pirvate gated luxury development
- All appliances included
- Underfloor heating
- Electric vehicle charging point
- Not all photos are plot specific
Description
Measuring 1,860.2sq. ft, this four bedroom house makes the very best use of its distinctive design maximising the natural light from the many windows and space at every turn.
Boasting unique design it is finished to an extremely high specification including underfloor heating throughout the ground floor, en-suite to the master bedroom, integrated appliances, allocated parking and access to 16 acres of gated communal gardens.
The spacious open plan living dining room is flooded with natural light from the many windows. The beautifully designed kitchen features named integrated appliances and a Quartz work surface which further complements modern day family living.
The master bedroom is an oasis of calm with its en-suite bathroom and ample space for relaxation. There are additional three spacious bedrooms and a luxury four piece modern family bathroom with British made imperial sanitaryware and towel rail.
Warley is a suburb of Brentwood in Essex, situated to the south of the town. With the countryside on your doorstep and situated on the outskirts of Brentwood, Boyles Court is ideally located with easy access to both the A12, M25 and the mainline railway station of Brentwood.
Boyles Court the original 1776 Grade II-listed house is back to its former glory. The full luxury refurbishment has been seamlessly combined with a mews of luxury new build houses, providing a total of 30 properties situated behind the gates. The flooring comes as standard with underfloor heating where possible. Each property has either allocated parking, car ports or garages together with an electric vehicle charging point.
*Owners own a share of the management company*
*Images are from the Show unit for marketing and indicative purpose only*
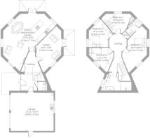
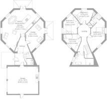
Entrance Hall
Kitchen/Family/ Dining Room
26' 11" x 25' 3"
Lounge
18' 1" x 13' 5"
WC
Landing
Principal Bedroom
18' 4" x 10' 4"
Ensuite Bathroom
Bedroom Two
15' 1" x 10' 2"
Bedroom Three
14' 2" x 10' 4"
Bathroom
Bedroom Four
13' 2" x 9' 8"
Garage
22' 11" x 20' 0"
Brochures
Particulars- COUNCIL TAXA payment made to your local authority in order to pay for local services like schools, libraries, and refuse collection. The amount you pay depends on the value of the property.Read more about council Tax in our glossary page.
- Band: TBC
- PARKINGDetails of how and where vehicles can be parked, and any associated costs.Read more about parking in our glossary page.
- Yes
- GARDENA property has access to an outdoor space, which could be private or shared.
- Ask agent
- ACCESSIBILITYHow a property has been adapted to meet the needs of vulnerable or disabled individuals.Read more about accessibility in our glossary page.
- Ask agent
Boyles Court, Dark Lane, Great Warley, CM14
Add an important place to see how long it'd take to get there from our property listings.
__mins driving to your place
Get an instant, personalised result:
- Show sellers you’re serious
- Secure viewings faster with agents
- No impact on your credit score
Your mortgage
Notes
Staying secure when looking for property
Ensure you're up to date with our latest advice on how to avoid fraud or scams when looking for property online.
Visit our security centre to find out moreDisclaimer - Property reference LNH230016. The information displayed about this property comprises a property advertisement. Rightmove.co.uk makes no warranty as to the accuracy or completeness of the advertisement or any linked or associated information, and Rightmove has no control over the content. This property advertisement does not constitute property particulars. The information is provided and maintained by Beresfords, at Brentwood. Please contact the selling agent or developer directly to obtain any information which may be available under the terms of The Energy Performance of Buildings (Certificates and Inspections) (England and Wales) Regulations 2007 or the Home Report if in relation to a residential property in Scotland.
*This is the average speed from the provider with the fastest broadband package available at this postcode. The average speed displayed is based on the download speeds of at least 50% of customers at peak time (8pm to 10pm). Fibre/cable services at the postcode are subject to availability and may differ between properties within a postcode. Speeds can be affected by a range of technical and environmental factors. The speed at the property may be lower than that listed above. You can check the estimated speed and confirm availability to a property prior to purchasing on the broadband provider's website. Providers may increase charges. The information is provided and maintained by Decision Technologies Limited. **This is indicative only and based on a 2-person household with multiple devices and simultaneous usage. Broadband performance is affected by multiple factors including number of occupants and devices, simultaneous usage, router range etc. For more information speak to your broadband provider.
Map data ©OpenStreetMap contributors.








