Thoresby Avenue, Belle Vue, Doncaster

Letting details
- Let available date:
- Now
- Deposit:
- £725A deposit provides security for a landlord against damage, or unpaid rent by a tenant.Read more about deposit in our glossary page.
- Min. Tenancy:
- Ask agent How long the landlord offers to let the property for.Read more about tenancy length in our glossary page.
- Let type:
- Long term
- Furnish type:
- Unfurnished
- Council Tax:
- Ask agent
- PROPERTY TYPE
Detached
- BEDROOMS
3
- BATHROOMS
1
- SIZE
Ask agent
Description
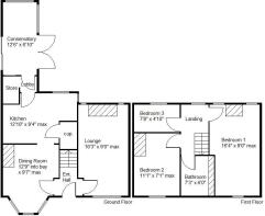
The property has a gas fired central heating system, PVC double glazing and comprises; Entrance hall, two separate reception rooms, fitted kitchen, rear lobby with store, conservatory, first floor landing, three bedrooms and house bathroom. Outside are courtyard style front and rear gardens. Good access to local amenities including shops and schools plus access to all of the city centre's varied amenities. Internal viewing recommended.
Entrance Hall - This has a laminate floor covering, a staircase leading to the first floor accommodation, coving, a central ceiling light and doors to;
Lounge - 4.95m x 2.74m max (16'3" x 9'0" max) - A good sized room with three PVC double glazed windows, a large window to the front and two smaller windows to the rear, a central fireplace with living flame gas fire inset, a central heating radiator and laminate floor covering.
Dining Room - 3.89m x 2.92m max (12'9" x 9'7" max) - This has a deep PVC double glazed bay window to the front, a central heating radiator, laminate floor covering, a central ceiling light and a doorway which leads into the kitchen.
Kitchen - 3.91m x 2.84m max (12'10" x 9'4" max ) - Fitted with a range of high and low level units finished with a rolled edge work surface which has a recess for a cooker and a 1 1/2 bowl sink unit with mixer tap inset. Finished with a slate effect floor, an under stairs storage cupboard, a central heating radiator, a deep PVC double glazed bay window which gives an outlook to the rear and a door which leads to the rear lobby.
Rear Lobby - With a PVC double glazed door into the conservatory and a storage area which houses the gas fired boiler which supplies the domestic hot water and central heating systems.
Conservatory - 3.81m x 2.08m (12'6" x 6'10" ) - This is PVC double glazed with a lean to style polycarbonate roof, double glazed double opening French doors which lead out onto a paved patio style garden, vinyl floor covering and plumbing for an automatic washing machine.
First Floor Landing - There is a PVC double glazed window to the rear, a central heating radiator, coving, a central ceiling light and doors to the bedrooms and bathroom.
Bedroom 1 - 4.98m x 2.74m max (16'4" x 9'0" max ) - A good sized double bedroom, it has a PVC double glazed window to the front and two further smaller windows to the rear, a central heating radiator and a central ceiling light.
Bedroom 2 - 3.38m x 2.16m max (11'1" x 7'1" max) - This has a PVC double glazed window to the front, a central heating radiator and a central ceiling light.
Bedroom 3 - 2.34m x 1.47m (7'8" x 4'10" ) - This has a PVC double glazed window to the front, a central heating radiator and a central ceiling light.
Bathroom - 2.21m x 1.83m (7'3" x 6'0") - Fitted with a suite that comprises of a corner bath with shower over, a wash basin and low flush w/c. It is finished with tiling to the walls, a PVC double glazed window and a vinyl floor covering.
Outside - To the front there is a courtyard style garden with ornamental brick walling to the perimeters, a pedestrian gate which gives access to the front door and a side pathway which leads into the rear garden.
Rear Garden - This is a real sun-trap, it has been paved to create an attractive sitting area with a flower border and external lighting.
Lettings Agents Notes - Available Immediately subject to satisfactory referencing.
All mains services are connected to the property.
Tenants will be responsible for the payment of utility bills including council tax.
Council Tax Band - Band B.
VIEWING By prior telephone appointment with horton knights estate agents on Doncaster .
OPENING HOURS Monday - Friday 9:00 - 5:30 Saturday 9:00 - 3:00 Sunday
Brochures
Thoresby Avenue, Belle Vue, DoncasterBrochure- COUNCIL TAXA payment made to your local authority in order to pay for local services like schools, libraries, and refuse collection. The amount you pay depends on the value of the property.Read more about council Tax in our glossary page.
- Band: B
- PARKINGDetails of how and where vehicles can be parked, and any associated costs.Read more about parking in our glossary page.
- Ask agent
- GARDENA property has access to an outdoor space, which could be private or shared.
- Yes
- ACCESSIBILITYHow a property has been adapted to meet the needs of vulnerable or disabled individuals.Read more about accessibility in our glossary page.
- Ask agent
Thoresby Avenue, Belle Vue, Doncaster
Add an important place to see how long it'd take to get there from our property listings.
__mins driving to your place
Notes
Staying secure when looking for property
Ensure you're up to date with our latest advice on how to avoid fraud or scams when looking for property online.
Visit our security centre to find out moreDisclaimer - Property reference 34120387. The information displayed about this property comprises a property advertisement. Rightmove.co.uk makes no warranty as to the accuracy or completeness of the advertisement or any linked or associated information, and Rightmove has no control over the content. This property advertisement does not constitute property particulars. The information is provided and maintained by Horton Knights, Doncaster. Please contact the selling agent or developer directly to obtain any information which may be available under the terms of The Energy Performance of Buildings (Certificates and Inspections) (England and Wales) Regulations 2007 or the Home Report if in relation to a residential property in Scotland.
*This is the average speed from the provider with the fastest broadband package available at this postcode. The average speed displayed is based on the download speeds of at least 50% of customers at peak time (8pm to 10pm). Fibre/cable services at the postcode are subject to availability and may differ between properties within a postcode. Speeds can be affected by a range of technical and environmental factors. The speed at the property may be lower than that listed above. You can check the estimated speed and confirm availability to a property prior to purchasing on the broadband provider's website. Providers may increase charges. The information is provided and maintained by Decision Technologies Limited. **This is indicative only and based on a 2-person household with multiple devices and simultaneous usage. Broadband performance is affected by multiple factors including number of occupants and devices, simultaneous usage, router range etc. For more information speak to your broadband provider.
Map data ©OpenStreetMap contributors.




