High street retail property for sale
First Floor, 21 High Street, Uttoxeter, Staffordshire, ST14 7HN
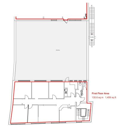
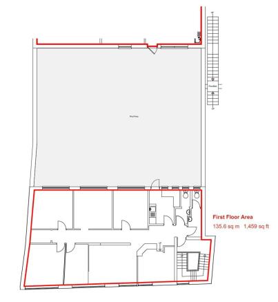
- SIZE AVAILABLE
1,578 sq ft
147 sq m
- SECTOR
High street retail property for sale
Key features
- RESIDENTIAL CONVERSION OPPORTUNITY
- Town Centre Location
- Dedicated rear residential lobby
Description
The subject property occupies a prime location on High Street, Uttoxeter near to Bear Coffee, Fueled, Barclays Bank, ASDA, Home Bargains and Barnardo's.
Description
The property is connected to Carters Square retail scheme which serves as the town's prime retailing location and offers an opportunity to convert the space into 3 x 2-bed apartments, subject to planning.
Tenure Comments
The property is available by way of a new long-lease (250 years) at a peppercorn rent. All necessary rights to redevelop / refurbish the space will be granted and associated rear access.
EPC
EPC: C (66). Valid until April 2034.
Insurance
The freeholder insures the whole of the premises and will recharge an appropriate and reasonable proportion to the long-leaseholder on an annual basis.
Planning
The buyer will be responsible for obtaining the necessary planning permission for the conversion.
VAT
The property is elected for VAT.
Legal Costs
Each party will be responsible for covering their own legal costs incurred in the transaction.
Brochures
First Floor, 21 High Street, Uttoxeter, Staffordshire, ST14 7HN
NEAREST STATIONS
Distances are straight line measurements from the centre of the postcode- Uttoxeter Station0.4 miles
Notes
Disclaimer - Property reference 383FH. The information displayed about this property comprises a property advertisement. Rightmove.co.uk makes no warranty as to the accuracy or completeness of the advertisement or any linked or associated information, and Rightmove has no control over the content. This property advertisement does not constitute property particulars. The information is provided and maintained by Creative Retail, Birmingham. Please contact the selling agent or developer directly to obtain any information which may be available under the terms of The Energy Performance of Buildings (Certificates and Inspections) (England and Wales) Regulations 2007 or the Home Report if in relation to a residential property in Scotland.
Map data ©OpenStreetMap contributors.




