Prospect Street, Tipton
Letting details
- Let available date:
- Ask agent
- Let type:
- Long term
- Furnish type:
- Unfurnished
- PROPERTY TYPE
Storage
- SIZE
Ask agent
Key features
- NEWLY BUILT STORAGE UNITS
- AVAILABLE IMMEDIATELY
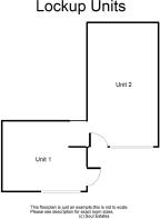
- UNIT 1 – 513 SQ FT
- UNIT 2 – 760 SQ FT
- NEW LEASE
- FLEXIBLE TERMS
Description
Soul Estates is pleased to present these 2 individual self-contained storage units located in the Tipton area within a residential area. The commercial units are situated near Dudley Port Train Station with good schools, local amenities and transport links, motorway network and easy access to Wolverhampton, Birmingham and Dudley and close to Great Bridge Asda and Burnt Tree Island Tesco.
ACCOMMODATION
Total Area approx.
UNIT 1 – 513 SQ FT - £750 PCM
UNIT 2 – 760 SQ FT - £1,000 PCM
TERMS
The property is available to let on a new Full Repairing and Insuring Lease with a 1-5 year rent review.
LEGAL COSTS
Each party are to be responsible for their own legal costs incurred during this transaction.
ENERGY PERFORMANCE CERTIFICATE
Available upon request from the agent.
SERVICES
We understand that all mains services are available to the property.
Prospective tenants should make their own enquiries as to the suitability and adequacy of the supplies for their own purposes.
AVAILABILITY
The property is immediately available following completion of legal formalities.
VIEWINGS
Strictly via prior appointment through the sole selling agent Soul Estates on
Unit 1
26' 5'' x 19' 2'' (8.05m x 5.84m)
Unit 2
40' 1'' x 18' 8'' (12.21m x 5.69m)
Brochures
Full DetailsProspect Street, Tipton
NEAREST STATIONS
Distances are straight line measurements from the centre of the postcode- Wednesbury Parkway Tram Stop0.6 miles
- Wednesbury Great Western Street Tram Stop0.8 miles
- Bradley Lane Tram Stop1.0 miles
Notes
Disclaimer - Property reference 12731218. The information displayed about this property comprises a property advertisement. Rightmove.co.uk makes no warranty as to the accuracy or completeness of the advertisement or any linked or associated information, and Rightmove has no control over the content. This property advertisement does not constitute property particulars. The information is provided and maintained by Soul Estates, Tipton. Please contact the selling agent or developer directly to obtain any information which may be available under the terms of The Energy Performance of Buildings (Certificates and Inspections) (England and Wales) Regulations 2007 or the Home Report if in relation to a residential property in Scotland.
Map data ©OpenStreetMap contributors.





