
Elgin House, Cameron Close, Warley, Brentwood

- PROPERTY TYPE
Apartment
- BEDROOMS
2
- BATHROOMS
1
- SIZE
767 sq ft
71 sq m
Description
Arranged across the ground and first floor, the property is well presented throughout and benefits from large windows that fill the rooms with natural light. The ground floor comprises two generously sized bedrooms and a modern shower room. Upstairs, a bright and spacious lounge/diner offers the perfect space to relax or entertain, complemented by a well-appointed kitchen.
Set in a prime location within a mile of Brentwood High Street and close to local parks, this home offers the perfect blend of comfort, convenience, and connectivity.
Guide Price; £250,000 - £260,000
Notes from the owner:
Having moved out from East London five years ago, we've loved getting to know the local area. The two local country parks offer open countryside within walking distance and we've discovered so many great pubs, restaurants and independent coffee shops, as well as the amenities of the high street. Malina Patisserie, The Peasants Revolt micropub and Taro, for delicious Japanese food, are our personal favourites! All of this comes with easy access to London on the Lizzy Line, so we really feel like we get the best of both worlds. We chose our flat for the sense of light and space you get for the price - especially in the large living / dining area, which is ideal for entertaining.
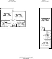
Entrance Hall -
Bedroom One - 3.46 x 3.43 (11'4" x 11'3") -
Bedroom Two - 3.43 x 2.63 (11'3" x 8'7") -
Shower Room - 2.40 x 1.72 (7'10" x 5'7") -
Landing -
Lounge/Diner - 6.27 x 3.43 (20'6" x 11'3") -
Kitchen - 3.43 x 2.63 (11'3" x 8'7") -
Agents Note - As part of the service we offer we may recommend ancillary services to you which we believe may help you with your property transaction. We wish to make you aware, that should you decide to use these services we will receive a referral fee. For full and detailed information please visit 'terms and conditions' on our website
Brochures
Elgin House, Cameron Close, Warley, Brentwood- COUNCIL TAXA payment made to your local authority in order to pay for local services like schools, libraries, and refuse collection. The amount you pay depends on the value of the property.Read more about council Tax in our glossary page.
- Band: C
- PARKINGDetails of how and where vehicles can be parked, and any associated costs.Read more about parking in our glossary page.
- Ask agent
- GARDENA property has access to an outdoor space, which could be private or shared.
- Ask agent
- ACCESSIBILITYHow a property has been adapted to meet the needs of vulnerable or disabled individuals.Read more about accessibility in our glossary page.
- Ask agent
Elgin House, Cameron Close, Warley, Brentwood
Add an important place to see how long it'd take to get there from our property listings.
__mins driving to your place
Get an instant, personalised result:
- Show sellers you’re serious
- Secure viewings faster with agents
- No impact on your credit score
Your mortgage
Notes
Staying secure when looking for property
Ensure you're up to date with our latest advice on how to avoid fraud or scams when looking for property online.
Visit our security centre to find out moreDisclaimer - Property reference 34121569. The information displayed about this property comprises a property advertisement. Rightmove.co.uk makes no warranty as to the accuracy or completeness of the advertisement or any linked or associated information, and Rightmove has no control over the content. This property advertisement does not constitute property particulars. The information is provided and maintained by Keith Ashton, Brentwood. Please contact the selling agent or developer directly to obtain any information which may be available under the terms of The Energy Performance of Buildings (Certificates and Inspections) (England and Wales) Regulations 2007 or the Home Report if in relation to a residential property in Scotland.
*This is the average speed from the provider with the fastest broadband package available at this postcode. The average speed displayed is based on the download speeds of at least 50% of customers at peak time (8pm to 10pm). Fibre/cable services at the postcode are subject to availability and may differ between properties within a postcode. Speeds can be affected by a range of technical and environmental factors. The speed at the property may be lower than that listed above. You can check the estimated speed and confirm availability to a property prior to purchasing on the broadband provider's website. Providers may increase charges. The information is provided and maintained by Decision Technologies Limited. **This is indicative only and based on a 2-person household with multiple devices and simultaneous usage. Broadband performance is affected by multiple factors including number of occupants and devices, simultaneous usage, router range etc. For more information speak to your broadband provider.
Map data ©OpenStreetMap contributors.







