
Hospital Lane, Bedworth, CV12 0LA

- PROPERTY TYPE
Detached
- BEDROOMS
3
- SIZE
Ask developer
- TENUREDescribes how you own a property. There are different types of tenure - freehold, leasehold, and commonhold.Read more about tenure in our glossary page.
Freehold
Key features
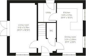
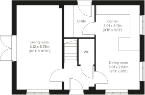
- Open plan kitchen/dining room
- Utility room
- Spacious living room with French doors to garden
- Downstairs WC
- En suite to bedroom one
- Family bathroom
- Storage space
- Energy efficient
Description
A thoughtfully-designed three-bedroom family home with much to offer, the Barndale has a bright and modern open plan kitchen/dining room leading to a handy utility room. The spacious living room has French doors leading into the garden. The inner hallway, downstairs WC and cupboards take care of everyday storage. Plus there’s an en suite to bedroom one and a family bathroom.
Additional Information
- Tenure: Freehold
- Council tax band: Not made available by local authority until post-occupation
- Predicted energy assessment rating: B
Parking - Allocated Parking
Room Dimensions
- Kitchen - 3.01 x 3.11 metre
- Dining room - 3.01 x 2.64 metre
- Living room - 3.12 x 5.75 metre
- Bedroom 1 - 2.88 x 3.75 metre
- Bedroom 2 - 4.19 x 2.96 metre
- Bedroom 3 - 3.14 x 2.7 metre
- COUNCIL TAXA payment made to your local authority in order to pay for local services like schools, libraries, and refuse collection. The amount you pay depends on the value of the property.Read more about council Tax in our glossary page.
- Ask developer
- PARKINGDetails of how and where vehicles can be parked, and any associated costs.Read more about parking in our glossary page.
- Yes
- GARDENA property has access to an outdoor space, which could be private or shared.
- Yes
- ACCESSIBILITYHow a property has been adapted to meet the needs of vulnerable or disabled individuals.Read more about accessibility in our glossary page.
- Ask developer
Energy performance certificate - ask developer
Hospital Lane, Bedworth, CV12 0LA
Add an important place to see how long it'd take to get there from our property listings.
__mins driving to your place
Get an instant, personalised result:
- Show sellers you’re serious
- Secure viewings faster with agents
- No impact on your credit score
About Persimmon Homes Central
Welcome to Newlands Meadows – modern new houses for sale, Bedworth
Discover Newlands Meadows, a welcoming collection of two, three and four-bedroom new homes in Bedworth, Warwickshire. Set in a beautiful countryside location yet close to Coventry, this special development ticks all the boxes for modern living with open green surroundings, creating a place where families can feel settled, connected and at home.
Stylish new build homes in Bedworth
Newlands Meadows has been designed to help you make the most of everyday life, right on your doorstep. There’s plenty for families to do, with on-site playing fields, a wildlife area and a dedicated play area, perfect for burning off after-school energy or summer picnics.
New build homes with excellent transport links to Coventry and Nuneaton
Newlands Meadows offers straightforward access to Coventry and Nuneaton via nearby road links, including the A444 and M6. Regular bus services also connect Bedworth with surrounding towns, making work, school runs and days out easy.
Everything you need on your doorstep
Bedworth is a friendly, established town with a great range of everyday amenities. Supermarkets, local shops, cafés and schools are all close by, along with healthcare facilities and leisure options. Coventry city centre is also within easy reach, offering a wider choice of shopping, dining and entertainment.
Explore the outdoors in and around Bedworth
Outdoor space is a real highlight at Newlands Meadows. Enjoy walks through nearby green areas such as Newton Road Park, Sidings Pool and countryside routes around Devil’s Drop and The Nook. Whether it’s a quick evening stroll or a longer weekend walk, nature is always close by.
Ready to make your move?
To explore our new houses for sale in Bedworth and start your Persimmon journey, speak to one of our friendly sales advisors today.
This development offers the following schemes:
- New Build Boost
- Part Exchange your home
- Own New Rate Reducer Scheme
- Home Change
- Bank of Mum and Dad
- Rezide Equity Loan
Schemes are available on selected plots only, subject to status, terms and conditions apply. Contact the development for latest information.
Affordability
Notes
Staying secure when looking for property
Ensure you're up to date with our latest advice on how to avoid fraud or scams when looking for property online.
Visit our security centre to find out moreDisclaimer - Property reference 3_415. The information displayed about this property comprises a property advertisement. Rightmove.co.uk makes no warranty as to the accuracy or completeness of the advertisement or any linked or associated information, and Rightmove has no control over the content. This property advertisement does not constitute property particulars. The information is provided and maintained by Persimmon Homes Central. Please contact the selling agent or developer directly to obtain any information which may be available under the terms of The Energy Performance of Buildings (Certificates and Inspections) (England and Wales) Regulations 2007 or the Home Report if in relation to a residential property in Scotland.
*This is the average speed from the provider with the fastest broadband package available at this postcode. The average speed displayed is based on the download speeds of at least 50% of customers at peak time (8pm to 10pm). Fibre/cable services at the postcode are subject to availability and may differ between properties within a postcode. Speeds can be affected by a range of technical and environmental factors. The speed at the property may be lower than that listed above. You can check the estimated speed and confirm availability to a property prior to purchasing on the broadband provider's website. Providers may increase charges. The information is provided and maintained by Decision Technologies Limited. **This is indicative only and based on a 2-person household with multiple devices and simultaneous usage. Broadband performance is affected by multiple factors including number of occupants and devices, simultaneous usage, router range etc. For more information speak to your broadband provider.
Map data ©OpenStreetMap contributors.






