
3 bedroom semi-detached house for sale
Millstream Close, Whitstable

- PROPERTY TYPE
Semi-Detached
- BEDROOMS
3
- BATHROOMS
1
- SIZE
994 sq ft
92 sq m
- TENUREDescribes how you own a property. There are different types of tenure - freehold, leasehold, and commonhold.Read more about tenure in our glossary page.
Freehold
Key features
- Spacious Semi-Detached Family Home
- Moments from Whitstable Station
- Short Stroll to Town Centre
- Beach & Famous Working Harbour 0.6 miles
- Beautifully Presented
- Sitting Room
- Contemporary Kitchen/Dining Room
- 3 Bedrooms
- Garden Studio
- Single Garage Providing Off-Street Parking
Description
The beautifully presented accommodation is arranged on the ground floor to provide an entrance porch, entrance hall, a spacious sitting room opening to a contemporary kitchen/dining room, and a cloakroom. The first floor comprises three bedrooms, and a stylish bathroom.
The low maintenance rear garden extends to 31 ft (9 m) and incorporates a decked seating area, and a garden studio which would suit a variety of uses. A garage provides off-street parking.
Location - Millstream Close is a desirable location in central Whitstable accessible to shops, bus routes and station. Whitstable is an increasingly fashionable seaside town offering a good range of amenities including highly regarded restaurants, individual shops, watersports facilities and a working harbour. The mainline railway station is just moments away, providing fast and frequent links to London (Victoria) in approximately 80 minutes. The high speed Javelin service provides access to London (St Pancras) with a journey time of approximately 73 minutes. The A299 is accessible providing a dual carriageway link to the M2/A2 giving access to the channel ports and connecting motorway network.
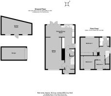
Accommodation - The accommodation and approximate measurements (taken at maximum points) are:
Ground Floor -
• Entrance Porch -
• Entrance Hall -
• Sitting Room - 6.42m x 3.24m (21'0" x 10'7") -
• Kitchen/Dining Room - 5.90m x 2.37m (19'4" x 7'9") -
• Cloakroom - 1.40m x 0.95m (4'7" x 3'1") -
First Floor -
• Bedroom 1 - 3.76m x 3.00m (12'4" x 9'10") -
• Bedroom 2 - 3.75m x 2.66m (12'3" x 8'8") -
• Bedroom 3 - 2.00m x 1.86m (6'6" x 6'1") -
• Bathroom - 2.04m x 1.73m (6'8" x 5'8") -
Outside -
• Garden Studio - 6.10m x 2.10m (20'0" x 6'10") -
• Garden - 9.68m x 7.37m (31'9" x 24'2") -
• Garage - 5.00m x 2.50m (16'4" x 8'2") -
Brochures
Millstream Close, Whitstable- COUNCIL TAXA payment made to your local authority in order to pay for local services like schools, libraries, and refuse collection. The amount you pay depends on the value of the property.Read more about council Tax in our glossary page.
- Band: C
- PARKINGDetails of how and where vehicles can be parked, and any associated costs.Read more about parking in our glossary page.
- Garage,Off street
- GARDENA property has access to an outdoor space, which could be private or shared.
- Yes
- ACCESSIBILITYHow a property has been adapted to meet the needs of vulnerable or disabled individuals.Read more about accessibility in our glossary page.
- Ask agent
Millstream Close, Whitstable
Add an important place to see how long it'd take to get there from our property listings.
__mins driving to your place
Get an instant, personalised result:
- Show sellers you’re serious
- Secure viewings faster with agents
- No impact on your credit score



Your mortgage
Notes
Staying secure when looking for property
Ensure you're up to date with our latest advice on how to avoid fraud or scams when looking for property online.
Visit our security centre to find out moreDisclaimer - Property reference 34121025. The information displayed about this property comprises a property advertisement. Rightmove.co.uk makes no warranty as to the accuracy or completeness of the advertisement or any linked or associated information, and Rightmove has no control over the content. This property advertisement does not constitute property particulars. The information is provided and maintained by Christopher Hodgson, Whitstable. Please contact the selling agent or developer directly to obtain any information which may be available under the terms of The Energy Performance of Buildings (Certificates and Inspections) (England and Wales) Regulations 2007 or the Home Report if in relation to a residential property in Scotland.
*This is the average speed from the provider with the fastest broadband package available at this postcode. The average speed displayed is based on the download speeds of at least 50% of customers at peak time (8pm to 10pm). Fibre/cable services at the postcode are subject to availability and may differ between properties within a postcode. Speeds can be affected by a range of technical and environmental factors. The speed at the property may be lower than that listed above. You can check the estimated speed and confirm availability to a property prior to purchasing on the broadband provider's website. Providers may increase charges. The information is provided and maintained by Decision Technologies Limited. **This is indicative only and based on a 2-person household with multiple devices and simultaneous usage. Broadband performance is affected by multiple factors including number of occupants and devices, simultaneous usage, router range etc. For more information speak to your broadband provider.
Map data ©OpenStreetMap contributors.





