
Flat 10, Highmoor Mansion, Highmoor Park, Wigton, Cumbria

- PROPERTY TYPE
Apartment
- BEDROOMS
2
- BATHROOMS
1
- SIZE
Ask agent
Key features
- Second floor flat in historic building.
- Two double bedrooms.
- Kitchen breakfast room and living dining room.
- Bathroom and allocated parking space.
- Spacious living accommodation
- Fantastic views towards the Solway
- Communal gardens
- Ideal property for a first-time buyer, holiday home or those looking to downsize.
Description
A fantastic opportunity to own this second-floor flat in a historic building with stunning views towards the Solway. The property comprises two double bedrooms, a kitchen breakfast room, and a spacious living dining room, offering ample living space. Complete with a bathroom and an allocated parking space, this flat is ideal for a first-time buyer, those looking for a holiday home, or individuals seeking to downsize. Residents can also enjoy access to well-maintained communal gardens, perfect for relaxation outdoors. Nestled in a sought-after neighbourhood, this property provides a peaceful retreat while remaining conveniently located near local amenities and transport links. Contact us today to arrange a viewing and discover all the character and charm this flat has to offer.
Directions
from Carlisle head west on the A595 towards Wigton. Take the right signposted Wigton A5305. Continue towards the town, take the right on to Highmoor Park, following the road to Highmoor Mansion.
Services
Mains electric, water and drains are connected, but neither these services nor any boilers or radiators have been tested.
Key Information:
• Standard construction.
• We understand that broadband and mobile telephone reception are available. For an indication of speeds and supply please see the OFCOM website:
• Vehicle parking is in a private communal car park with allocated spaces.
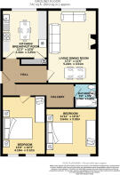
Living Dining Room
5.23m x 3.5m
Kitchen/Breakfast Room
3.43m x 3.25m
Bedroom
4.17m x 3.28m
Bedroom
3.63m x 3.33m
Bathroom
1.75m x 1.6m
Brochures
Particulars- COUNCIL TAXA payment made to your local authority in order to pay for local services like schools, libraries, and refuse collection. The amount you pay depends on the value of the property.Read more about council Tax in our glossary page.
- Band: A
- PARKINGDetails of how and where vehicles can be parked, and any associated costs.Read more about parking in our glossary page.
- Residents,Allocated,Private
- GARDENA property has access to an outdoor space, which could be private or shared.
- Ask agent
- ACCESSIBILITYHow a property has been adapted to meet the needs of vulnerable or disabled individuals.Read more about accessibility in our glossary page.
- No wheelchair access
Flat 10, Highmoor Mansion, Highmoor Park, Wigton, Cumbria
Add an important place to see how long it'd take to get there from our property listings.
__mins driving to your place
Get an instant, personalised result:
- Show sellers you’re serious
- Secure viewings faster with agents
- No impact on your credit score


Your mortgage
Notes
Staying secure when looking for property
Ensure you're up to date with our latest advice on how to avoid fraud or scams when looking for property online.
Visit our security centre to find out moreDisclaimer - Property reference CAR250208. The information displayed about this property comprises a property advertisement. Rightmove.co.uk makes no warranty as to the accuracy or completeness of the advertisement or any linked or associated information, and Rightmove has no control over the content. This property advertisement does not constitute property particulars. The information is provided and maintained by H&H Land & Estates, Carlisle. Please contact the selling agent or developer directly to obtain any information which may be available under the terms of The Energy Performance of Buildings (Certificates and Inspections) (England and Wales) Regulations 2007 or the Home Report if in relation to a residential property in Scotland.
*This is the average speed from the provider with the fastest broadband package available at this postcode. The average speed displayed is based on the download speeds of at least 50% of customers at peak time (8pm to 10pm). Fibre/cable services at the postcode are subject to availability and may differ between properties within a postcode. Speeds can be affected by a range of technical and environmental factors. The speed at the property may be lower than that listed above. You can check the estimated speed and confirm availability to a property prior to purchasing on the broadband provider's website. Providers may increase charges. The information is provided and maintained by Decision Technologies Limited. **This is indicative only and based on a 2-person household with multiple devices and simultaneous usage. Broadband performance is affected by multiple factors including number of occupants and devices, simultaneous usage, router range etc. For more information speak to your broadband provider.
Map data ©OpenStreetMap contributors.





