
Guest House, Walton On The Naze,
- PROPERTY TYPE
Hotel
- SIZE
2,000 sq ft
186 sq m
Description
A fantastic opportunity to acquire a pair of self-contained holiday apartments/ block of flats, located in the charming seaside town of Walton-on-the-Naze. Just a short stroll from the beach, pier, and local amenities, this property is perfectly positioned to capitalise on the thriving holiday rental market.
Property Overview:
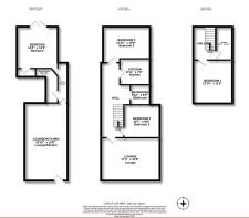
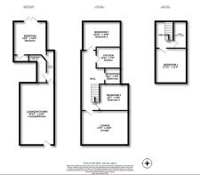
Ground Floor Apartment with parking space
Recently refurbished to a high standard, this stylish one-bedroom apartment is a turn-key holiday let, ready for immediate use. The layout includes:
Lounge with open-plan kitchen
Modern shower room
Double bedroom
Private rear courtyard
Finished with contemporary fittings and tasteful décor, it offers guests a high-quality, comfortable stay.
First & Second Floor Duplex Apartment (Maisonette)
This spacious maisonette is fitted to a good standard and provides versatile accommodation across two floors, ideal for families or group bookings. The layout comprises:
First Floor: Two bedrooms, fitted kitchen, and bathroom
Second Floor: One further bedroom and an office/study space
Well-appointed throughout, this unit has excellent rental potential with scope for further enhancement if desired.
Key Features:
Two fully self-contained apartments
Excellent 9.6* rating on Booking.com – a testament to quality and guest satisfaction
Strong Airbnb/holiday let income potential
Walking distance to the beach and town centre
Popular tourist location with year-round appeal
Potential for owner-occupier with income from one unit
Rear courtyard with ground floor apartment
This is a rare chance to secure a highly-rated, ready-made investment in one of Essex’s most loved coastal destinations. Whether you're an experienced investor or new to the holiday rental market, this property is an ideal addition to any portfolio.
Offers invited. Viewings strictly by appointment. RX571715
Business Rates
The premises is subject to a rateable value of £4,300 resulting in zero business rates payable, should small business rate relief apply to a purchaser.
Legal Costs
Each party to be responsible for their own legal cost incurred in the transaction.
Guest House, Walton On The Naze,
NEAREST STATIONS
Distances are straight line measurements from the centre of the postcode- Walton-on-Naze Station0.2 miles
- Frinton Station1.4 miles
- Kirby Cross Station2.4 miles
Notes
Disclaimer - Property reference RX571715. The information displayed about this property comprises a property advertisement. Rightmove.co.uk makes no warranty as to the accuracy or completeness of the advertisement or any linked or associated information, and Rightmove has no control over the content. This property advertisement does not constitute property particulars. The information is provided and maintained by Gilbert & Rose, Leigh-on-sea. Please contact the selling agent or developer directly to obtain any information which may be available under the terms of The Energy Performance of Buildings (Certificates and Inspections) (England and Wales) Regulations 2007 or the Home Report if in relation to a residential property in Scotland.
Map data ©OpenStreetMap contributors.







