22 Chester Street, Edinburgh, EH3

- PROPERTY TYPE
Ground Maisonette
- BEDROOMS
6
- BATHROOMS
5
- SIZE
3,990 sq ft
371 sq m
- TENUREDescribes how you own a property. There are different types of tenure - freehold, leasehold, and commonhold.Read more about tenure in our glossary page.
Freehold
Key features
- 6 Bedrooms
- 3 Reception Rooms
- 5 Bathrooms
- Ground & Lower Ground
- Wraparound Patio
- Garage Available Separately (Lot 2)
Description
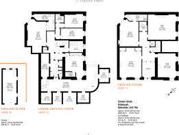
22 Chester Street is a substantial six-bedroom, main-door ground and lower ground flat, situated on the corner of Manor Place and Chester Street in Edinburgh's West End.
You enter through an impressive entrance vestibule, which leads into a wide entrance hall, from which all reception rooms on the ground floor are accessed.
The home is filled with Victorian period features throughout, including approximately 4-metre-high ceilings with ornate cornicing, solid wood floors, wood panelling, and original sash and case windows with working shutters.
The living room (currently used as a bedroom) is located at the front of the property, with an outlook over Chester Street and built-in storage.
The grand drawing room is to the rear of the property, offering a peaceful view over Manor Place.
The principal bedroom is located at the rear of the ground floor and benefits from an en suite shower room.
A WC / bathroom, accessed from the hallway, is also situated at the rear of the ground floor.
The lower ground floor comprises four further bedrooms (two of which are ensuite), an open-plan reception room with kitchen and dining area, and another bathroom and WC.
The lower hallway itself has a built-in bar area with seating for four. The 3rd reception room is behind this to the rear with kitchen and dining. Integrated appliances include a Flavel double oven and hob, a Bosch dishwasher, and a fridge/freezer.
Double bedroom 3 is a spacious room with dual-aspect views onto the private front patio courtyard and benefits from built-in storage and an ensuite.
Double bedroom 4 is located at the rear of the lower ground floor, also with an ensuite, while double bedroom 5 is positioned adjacent. Finally bedroom 6 is at the front of the lower ground floor with WC opposite.
A well-maintained patio garden surrounds the property, featuring a slate-tiled floor.
The property also includes five cellars, three of which are dry-lined and fitted with power.
A large garage fitted with power to the rear on Chester Street Lane is available separately - see Lot 2. This garage had a new roof installed in 2018 and is very secure with an electronic roller door.
______
EPC Band D
______
Chester Street is located in the heart of Edinburgh's West End.
It is a well-preserved and largely unaltered example of a Victorian terrace, designed by John Lessels between 1862 and 1870. John Lessels gained control of the Walker Estate (which now forms the West End, with Walker Street named after him) in 1850, just four years after establishing his own practice in 1846.
22 Chester Street is a Category B listed property.
Transport connections are excellent, with Haymarket Train Station a short walk away and the Edinburgh Tram even closer, providing direct access to Edinburgh Airport.
22 Chester Street falls within the catchment area for Flora Stevenson Primary School or St Mary's RC Primary School, and Broughton High School or St Thomas of Aquin's RC High School.
There are also several excellent independent schools nearby, including Fettes College, Edinburgh Academy, ESMS, and St George's School for Girls.
Brochures
Brochure- COUNCIL TAXA payment made to your local authority in order to pay for local services like schools, libraries, and refuse collection. The amount you pay depends on the value of the property.Read more about council Tax in our glossary page.
- Ask agent
- PARKINGDetails of how and where vehicles can be parked, and any associated costs.Read more about parking in our glossary page.
- Secure,Garage,On street,Permit,Off street,Private
- GARDENA property has access to an outdoor space, which could be private or shared.
- Patio
- ACCESSIBILITYHow a property has been adapted to meet the needs of vulnerable or disabled individuals.Read more about accessibility in our glossary page.
- Ask agent
22 Chester Street, Edinburgh, EH3
Add an important place to see how long it'd take to get there from our property listings.
__mins driving to your place
Get an instant, personalised result:
- Show sellers you’re serious
- Secure viewings faster with agents
- No impact on your credit score
Your mortgage
Notes
Staying secure when looking for property
Ensure you're up to date with our latest advice on how to avoid fraud or scams when looking for property online.
Visit our security centre to find out moreDisclaimer - Property reference 22-chester-st. The information displayed about this property comprises a property advertisement. Rightmove.co.uk makes no warranty as to the accuracy or completeness of the advertisement or any linked or associated information, and Rightmove has no control over the content. This property advertisement does not constitute property particulars. The information is provided and maintained by Macgregor, Edinburgh. Please contact the selling agent or developer directly to obtain any information which may be available under the terms of The Energy Performance of Buildings (Certificates and Inspections) (England and Wales) Regulations 2007 or the Home Report if in relation to a residential property in Scotland.
*This is the average speed from the provider with the fastest broadband package available at this postcode. The average speed displayed is based on the download speeds of at least 50% of customers at peak time (8pm to 10pm). Fibre/cable services at the postcode are subject to availability and may differ between properties within a postcode. Speeds can be affected by a range of technical and environmental factors. The speed at the property may be lower than that listed above. You can check the estimated speed and confirm availability to a property prior to purchasing on the broadband provider's website. Providers may increase charges. The information is provided and maintained by Decision Technologies Limited. **This is indicative only and based on a 2-person household with multiple devices and simultaneous usage. Broadband performance is affected by multiple factors including number of occupants and devices, simultaneous usage, router range etc. For more information speak to your broadband provider.
Map data ©OpenStreetMap contributors.





