Caledon Close, Hull, HU9

- PROPERTY TYPE
Semi-Detached
- BEDROOMS
3
- BATHROOMS
2
- SIZE
Ask agent
- TENUREDescribes how you own a property. There are different types of tenure - freehold, leasehold, and commonhold.Read more about tenure in our glossary page.
Freehold
Key features
- Tenanted for Immediate Investment
- No Forward Chain
- 3 Bedrooms
- Semi-Detached
- Garage
Description
Bettermove are proud to present this 3 bedroom semi-detached house in Hull, available chain free.
This is currently a tenanted property and will be sold with tenants in situ for immediate investment. Rental yields can be obtained through Bettermove.
The property benefits from double glazing and gas central heating throughout, with off road parking available via the driveway and garage.
The council tax band is A.
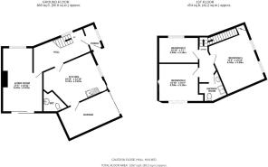
The interior of this beautifully presented property comprises a spacious living room, WC and fitted kitchen on the ground floor, with access into the garage. The first floor consists of three bedrooms, two of the bedrooms have walk in wardrobes, and a shower room. The exterior boasts a private rear garden, perfect for enjoying the summer months.
Located in the popular city of Hull, the property is close to a range of amenities, including shops, supermarkets, restaurants and pubs. Excellent transport links can be found from Hull Railway Station, a range of local bus routes, and close access to the A165.
This exciting opportunity should not be missed! All enquiries can be made through Bettermove on .
-------------------------------------------------------------------------------------
You can secure the purchase immediately by paying an exclusivity deposit of £1,000.
This is not an additional fee and is returned to you on completion.
Paying this deposit ensures that the seller takes the property off the market and reserves it exclusively for you. Therefore, eliminating the risk of being gazumped by another buyer, and incurring aborted costs.
This allows you rights to purchase within a given timeframe (typically 8-12 weeks) which gives you time to prepare funding, surveys, and searches.
Speak to one of our sales team about our Exclusivity Deposits today to find out more…
Building Safety
No
Mobile Signal
4G excellent data and voice, 5G excellent
Construction Type
Floor: Solid, no insulation (assumed)
Roof: Pitched, 300 mm loft insulation
Walls: Cavity wall, filled cavity
Windows: Fully double glazed
Lighting: Low energy lighting in 82% of fixed outlets
Existing Planning Permission
No
Coalfield or Mining
Na
Brochures
Brochure 1- COUNCIL TAXA payment made to your local authority in order to pay for local services like schools, libraries, and refuse collection. The amount you pay depends on the value of the property.Read more about council Tax in our glossary page.
- Band: A
- PARKINGDetails of how and where vehicles can be parked, and any associated costs.Read more about parking in our glossary page.
- Garage,Driveway
- GARDENA property has access to an outdoor space, which could be private or shared.
- Yes
- ACCESSIBILITYHow a property has been adapted to meet the needs of vulnerable or disabled individuals.Read more about accessibility in our glossary page.
- Ask agent
Caledon Close, Hull, HU9
Add an important place to see how long it'd take to get there from our property listings.
__mins driving to your place
Get an instant, personalised result:
- Show sellers you’re serious
- Secure viewings faster with agents
- No impact on your credit score
Your mortgage
Notes
Staying secure when looking for property
Ensure you're up to date with our latest advice on how to avoid fraud or scams when looking for property online.
Visit our security centre to find out moreDisclaimer - Property reference 29431367. The information displayed about this property comprises a property advertisement. Rightmove.co.uk makes no warranty as to the accuracy or completeness of the advertisement or any linked or associated information, and Rightmove has no control over the content. This property advertisement does not constitute property particulars. The information is provided and maintained by Bettermove, Nationwide. Please contact the selling agent or developer directly to obtain any information which may be available under the terms of The Energy Performance of Buildings (Certificates and Inspections) (England and Wales) Regulations 2007 or the Home Report if in relation to a residential property in Scotland.
*This is the average speed from the provider with the fastest broadband package available at this postcode. The average speed displayed is based on the download speeds of at least 50% of customers at peak time (8pm to 10pm). Fibre/cable services at the postcode are subject to availability and may differ between properties within a postcode. Speeds can be affected by a range of technical and environmental factors. The speed at the property may be lower than that listed above. You can check the estimated speed and confirm availability to a property prior to purchasing on the broadband provider's website. Providers may increase charges. The information is provided and maintained by Decision Technologies Limited. **This is indicative only and based on a 2-person household with multiple devices and simultaneous usage. Broadband performance is affected by multiple factors including number of occupants and devices, simultaneous usage, router range etc. For more information speak to your broadband provider.
Map data ©OpenStreetMap contributors.