Houghton, Arundel, West Sussex, BN18

- PROPERTY TYPE
House
- BEDROOMS
3
- BATHROOMS
2
- SIZE
Ask agent
- TENUREDescribes how you own a property. There are different types of tenure - freehold, leasehold, and commonhold.Read more about tenure in our glossary page.
Freehold
Key features
- 3 Bedrooms
- Kitchen
- Sitting/ Dining Room
- Laundrey Room/ Utility
- Shed
Description
Characterful Grade II Listed Barn Conversion in a Tranquil South Downs Setting
Tucked away in the picturesque village of Houghton, within the stunning South Downs National Park, this beautifully converted Grade II listed barn offers a rare opportunity to own a slice of English countryside heritage with all the comfort and charm of a thoughtfully designed modern home.
One of a small and exclusive collection of period conversions, this impressive three-bedroom, two-bathroom property forms part of a former farmstead, sympathetically restored to preserve its historical character while offering high-quality contemporary living. Surrounded by rolling countryside, The Cart Shed enjoys a peaceful and private setting, just a short drive from Arundel and the south coast.
Inside, the home showcases an inviting blend of traditional features and modern finishes. The sitting/dining room is a warm, atmospheric space with exposed timber beams, vaulted ceilings, and large windows that frame views of the garden and flood the room with natural light. A log burner adds further character and comfort. This open-plan space is perfect for entertaining, with ample room for both relaxed living and formal dining.
The kitchen is a bespoke DeVol design, thoughtfully laid out with built-in pantry storage, a central island unit, integrated Miele dishwasher, Smeg range cooker with induction hob, large Smeg fridge/freezer, and a Quooker tap providing hot, boiling, chilled, and carbonated water. Its quality cabinetry and seamless style offer both practicality and elegance, ideal for everyday use or hosting.
Off the entrance hall, there is a cloak/utility room fitted with bespoke DeVol cabinetry, a sink unit, and a Miele washer/dryer.
There are three generously sized bedrooms, each with their own charm. The principal bedroom benefits from an en-suite shower room and garden views, while the guest suite (bedroom 2) includes a large airing cupboard with tank storage. Bedroom 3 offers built-in eaves storage cupboards. The remaining rooms are served by a stylish family bathroom featuring a high standard of finish and period-appropriate detailing.
Outside, the property continues to impress with a private garden and patio area—a peaceful haven for outdoor dining, gardening, or simply soaking in the tranquillity of the surroundings. Additional features include a garden shed/log store, a separate garden storage cupboard, a garden room, and a bin store unit. The home also includes a private driveway with ample parking.
Set within the desirable rural village of Houghton, this property offers direct access to some of the region’s most scenic walking and cycling routes. Despite its rural feel, it's well connected to nearby towns including Arundel, Chichester, and Pulborough, with rail links to London and the South Coast within easy reach.
Viewing is highly recommended to fully appreciate the size and potential of this property.
Buyer Process: Our customers use British Homebuyers to either purchase or assist in selling properties quickly and reliably. Therefore any new applicants to purchase are subject to vetting to ensure they meet strict criteria.
Exclusivity Fee:
You can secure the purchase today by paying an exclusivity fee of £2,000 which gives you the rights to purchase within a given timeframe. The exclusivity fee is returned to you upon successful completion of the property.
A processing fee of £200 is required in order to draw up an exclusive legally binding contract between the buyer and seller. This gives the buyer exclusive rights to purchase within a pre-agreed timeframe.
Paying this fee ensures that the seller takes their property off the market and reserves it exclusively for you, therefore eliminating the risk of gazumping and aborted costs.
Disclaimer
The particulars are set out as a general outline only for the guidance of intended purchasers and do not constitute, any part of a contract. Nothing in these particulars shall be deemed to be a statement that the property is in good structural condition or otherwise nor that any of the services, appliances, equipment or facilities are in good working order. Purchasers should satisfy themselves of this prior to purchasing. The photograph(s) depict only certain parts of the property. It should not be assumed that any contents/furniture etc. photographed are included in the sale. It should not be assumed that the property remains as displayed in the photograph(s). No assumption should be made with regard to parts of the property that have not been photographed. Any areas, measurements, aspects or distances referred to are given as a GUIDE ONLY and are NOT precise. If such details are fundamental to a purchase, purchasers must rely on their own enquiries. Descriptions of the property are subjective and are used in good faith as an opinion and NOT as a statement of fact. Please make further inquiries to ensure that our descriptions are likely to match any expectations you may have.
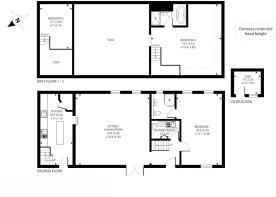
Bedroom 3
3.84m x 2.74m
Bedroom 2
5.92m x 5.89m
Kitchen
6.2m x 2.74m
Sitting/ Dining Room
6.2m x 6.2m
Laundrey Room/ Utility
Bedroom 1
6.3m x 3.99m
Shed
2.29m x 1.93m
- COUNCIL TAXA payment made to your local authority in order to pay for local services like schools, libraries, and refuse collection. The amount you pay depends on the value of the property.Read more about council Tax in our glossary page.
- Band: TBC
- PARKINGDetails of how and where vehicles can be parked, and any associated costs.Read more about parking in our glossary page.
- Yes
- GARDENA property has access to an outdoor space, which could be private or shared.
- Yes
- ACCESSIBILITYHow a property has been adapted to meet the needs of vulnerable or disabled individuals.Read more about accessibility in our glossary page.
- Ask agent
Houghton, Arundel, West Sussex, BN18
Add an important place to see how long it'd take to get there from our property listings.
__mins driving to your place
Get an instant, personalised result:
- Show sellers you’re serious
- Secure viewings faster with agents
- No impact on your credit score
Your mortgage
Notes
Staying secure when looking for property
Ensure you're up to date with our latest advice on how to avoid fraud or scams when looking for property online.
Visit our security centre to find out moreDisclaimer - Property reference BHO251754. The information displayed about this property comprises a property advertisement. Rightmove.co.uk makes no warranty as to the accuracy or completeness of the advertisement or any linked or associated information, and Rightmove has no control over the content. This property advertisement does not constitute property particulars. The information is provided and maintained by British Homesellers, National. Please contact the selling agent or developer directly to obtain any information which may be available under the terms of The Energy Performance of Buildings (Certificates and Inspections) (England and Wales) Regulations 2007 or the Home Report if in relation to a residential property in Scotland.
*This is the average speed from the provider with the fastest broadband package available at this postcode. The average speed displayed is based on the download speeds of at least 50% of customers at peak time (8pm to 10pm). Fibre/cable services at the postcode are subject to availability and may differ between properties within a postcode. Speeds can be affected by a range of technical and environmental factors. The speed at the property may be lower than that listed above. You can check the estimated speed and confirm availability to a property prior to purchasing on the broadband provider's website. Providers may increase charges. The information is provided and maintained by Decision Technologies Limited. **This is indicative only and based on a 2-person household with multiple devices and simultaneous usage. Broadband performance is affected by multiple factors including number of occupants and devices, simultaneous usage, router range etc. For more information speak to your broadband provider.
Map data ©OpenStreetMap contributors.




