Commercial property for sale
Market Place, Mansfield, Nottinghamshire, NG18 1HZ
- SIZE
Ask agent
- SECTOR
Commercial property for sale
Key features
- Prime Town Centre Location
- Freehold Mixed Use Investment
- Retail Unit Let to Greggs plc at £28,000
- Vacant Retail Unit with ERV of £40,000
- 12 New Converted Apartments
- Total ERV of £165,000 - £177,500 pa
- Attractive Gross Yield of 7.85% - 8.45%
- 10 Year Structural Warranty
Description
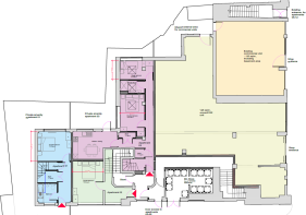
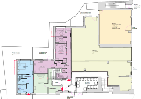
The property comprises a former office block, constructed of reinforced concrete frame with local stone cladding, occupying a site area of approximately 0.06 acres.
The building is mixed-use with 2 x ground floor retail units and upper floors converted to 12 new apartments.
Ground Floor (Retail)
Greggs Unit - Let on a 10 year Lease to March 2027 at a passing rent of £28,000 pa reflecting £20.01 psf (inclusive of the basement). The unit extends to 786 sq. ft at ground floor and 613 sq. ft basement.
Initial discussions with Greggs indicate their intention to stay and re-gear the Lease.
Vacant Unit - Formerly occupied by Barclays Bank and currently marketed To Let by Lester & Bingley, the unit extends to 1,593 sq. ft at ground floor with a large basement available subject to negotiations. The unit is currently being marketed at £40,000 pa reflecting 25.10 psf.
Residential Development (Upper Floors)
The property benefits from the conversion of the upper floors to provide 12 residential apartments with practical completion by December 2025 and benefitting from 10 year structural warranty. All apartments will benefit from EPC C futureproofing the residential element from any impending changes:
- Ground Floor (rear) - 3 flats (1 x two-bed, 2 x one-bed)
- First Floor - 5 flats (4 x one-bed, 1 x two-bed duplex)
- Second Floor - 4 flats (all one-bed)
The residential element spans to an impressive total net internal area of 579 sq m (6,232 sq ft). With an expected gross rental income for the residential of between £102,000 and £109,500 per annum and the benefit of freehold tenure, this is a compelling offer for those seeking strong, long-term returns.
Tenancy & Income
Greggs - £28,000 per annum (lease expiry 2027)
Vacant Unit (ERV) - £35,000 - £40,000 per annum
Residential ERV - £102,000 - £109,500 per annum
Total Projected Income: £165,000 - £177,500 per annum
Investment Considerations
- Prominent position in Mansfield"s prime retail pitch
- Secure income from Greggs, a strong national covenant
- Vacant retail unit with strong re-letting potential
- 12 high-yielding residential flats with 10 year new build warranties
- Attractive projected gross yield of 7.85% - 8.45% on the asking price
Mansfield is an established market town located in north Nottinghamshire, approximately 15 miles north of Nottingham and 25 miles south of Sheffield. The property occupies a prominent position on the Marketplace, the prime pedestrianised retail area within Mansfield town centre.
Nearby national occupiers include Superdrug, New Look, M&S, McDonald"s, Holland & Barrett, River Island, and Lounges, amongst others, ensuring strong footfall and a vibrant retail environment.
Brochures
Market Place, Mansfield, Nottinghamshire, NG18 1HZ
NEAREST STATIONS
Distances are straight line measurements from the centre of the postcode- Mansfield Station0.2 miles
- Mansfield Woodhouse Station1.3 miles
- Sutton Parkway Station2.9 miles
Notes
Disclaimer - Property reference 710891. The information displayed about this property comprises a property advertisement. Rightmove.co.uk makes no warranty as to the accuracy or completeness of the advertisement or any linked or associated information, and Rightmove has no control over the content. This property advertisement does not constitute property particulars. The information is provided and maintained by Lester & Bingley Ltd, Mansfield. Please contact the selling agent or developer directly to obtain any information which may be available under the terms of The Energy Performance of Buildings (Certificates and Inspections) (England and Wales) Regulations 2007 or the Home Report if in relation to a residential property in Scotland.
Map data ©OpenStreetMap contributors.






