
Warrant Road, Shropshire
- PROPERTY TYPE
Land
- SIZE
546,678 sq ft
50,788 sq m
Key features
- Estimated GDV £36,000,000
- Residential Development Site
- 12.55 acre(s)
- BJB Land & Development
- Expired consent for 38 Executive Units - Consent Pending for 67 Units
- Offered for Sale by Informal Tender
Description
Residential Development Site - Estimated GDV £36,000,000
Expired consent for 38 Executive Units - Consent Pending for 67 Units
Offered for Sale by Informal Tender
Full Info Pack Available on Request
Description
The site is a former MOD Training Camp which has been disused for many years with many of the original structures still in place.
Location
The site is surrounded by open countryside with access to Warrant Road, approx 1 mile from the A41 trunk road between Whitchurch & Newport.
Travelling Times are as follows:
Market Drayton: 5.5 miles (12 mins drive)
Whitchurch: 12 miles (19 mins drive)
Newport: 12 miles (19 mins drive)
Shrewsbury: 17 miles (32 mins drive)
Planning & Supporting Information
The site benefits from the following planning history:
24/00563/OUT - Outline planning application (layout, appearance, scale and access) for the demolition and clearance of existing buildings, the erection of 65 dwellings and associated infrastructure and engineering works APPROVAL IMMINENT -subject to a Draft s106 which is Agreed.
19/02385/FUL - Erection of 38no dwellings to include means of access; demolition of existing buildings and structures; remediation of site with associated highways and drainage infrastructure and other accommodation works./ APPROVED BUT NOW EXPIRED.
A full property info pack is available on request which includes the following:
- Layout Plans, Unit Plans & Elevation Drawings
- BNG Assessment
- CIL Calculation
- Draft s106 Agreement
- Phase 1 Ground Report
- Flood Risk Assessment & Drainage Strategy
NB: Whilst BJB will try and supply as much information as we can about the planning status of the land / property, please be mindful that we are not planning consultants and accordingly it is important that prospective purchasers ensure they have inspected the land / property and rely upon their own enquiries, assessments and due diligence with regards to the planning status and current or potential uses. All information is supplied in good faith and BJB cannot be held liable for any errors or omissions.
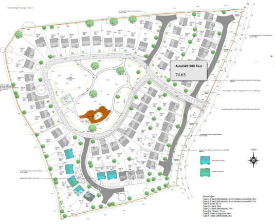
Schedule of Accommodation
67 x Total Units
54 x Market Sale
6 x 2 Bed Bungalows
20 x 3 Bed Two Storey Detached
18 x 4 Bed Two Storey Detached
10 x 5 Bed Three Storey Detached
13 x Affordable
2 x 1 Bed Semi
10 x 3 Bed Semi
1 x 4 Bed Detached
GDV
Our estimate of the GDV for the site is £36,000,000 see Property Info Pack for further details.
s106
A Draft s106 has been agreed with Shropshire District Council, a copy of which is included in the Property Info Pack, but in summary includes the following provisions:
- Affordable Housing (13 Units)
- Provision and maintenance of Public Open Space
- Cost in draft the s106 Agreement (£973)
- The draft s106 contains no further financial obligations
NB- the draft s106 refers to 65 units as this was the number on the original application, however, the numbers have increased to 67 but the s106 has yet to be updated.
Bioversity Net Gain
All interested parties should satisfy themselves regarding BNG. The latest metric undertaken by the ecologists are contained in the Property Info Pack, which we understand demonstrates that BNG can be achieved on site, delivering a 17.6% uplift in habitat units and 10.31% uplift in hedgerow units.
Community Infrastructure Levy
All interested parties should satisfy themselves regarding any Community Infrastructure Levy obligation, however our calculations based upon the proposed scheme is as follows: Market Housing: 9,184 m² x £139.64 per sqm = £1,282,453.76
Local Council
The site is located in the Council district of Shropshire Council
Tenure
Freehold with vacant possession upon completion.
VAT
All prices quoted by Butters John Bee are exclusive of VAT unless otherwise stated. All interested parties should make their own enquiries to satisfy themselves with the VAT position.
Informal Tender
The site is offered for sale on an unconditional basis and should include the following information:
1) Name & Address of Purchaser
2) Solicitor details
3) Level of Offer
4) Any conditions attached to the offer
5) Proof of funding.
6) Confirmation of a 10% deposit
7) Proposed timescales for exchange & completion upon exchange of contracts
9) Any further information material to the offer
Viewings
Strictly By Appointment with the BJB Land & New Homes Team
All Enquiries
Paul G. Beardmore BSc MRICS
Director - Residential Land
Land & New Homes Team
residential-
Looking for Land & Development Opportunities ?
Please note that not all land & development opportunities will appear on our website. To ensure that you do not miss out on these opportunities please e-mail: residential- or call the Land & New Homes team to discuss your requirements.
Disclaimer
Butters John Bee Estate Agents also offer a professional, ARLA accredited Lettings and Management Service. If you are considering purchasing your property in order to rent, are looking at buy to let or would like a free review of your current portfolio then please call the Lettings Branch Manager on the number shown above.
Butters John Bee Estate Agents is the seller's agent for this property. Your conveyancer is legally responsible for ensuring any purchase agreement fully protects your position. We make detailed enquiries of the seller to ensure the information provided is as accurate as possible. Please inform us if you become aware of any information being inaccurate.
Brochures
BrochureWarrant Road, Shropshire
NEAREST STATIONS
Distances are straight line measurements from the centre of the postcode- Prees Station7.2 miles
Notes
Disclaimer - Property reference 9902_XXX990200283. The information displayed about this property comprises a property advertisement. Rightmove.co.uk makes no warranty as to the accuracy or completeness of the advertisement or any linked or associated information, and Rightmove has no control over the content. This property advertisement does not constitute property particulars. The information is provided and maintained by Butters John Bee Land, Stoke-on-Trent. Please contact the selling agent or developer directly to obtain any information which may be available under the terms of The Energy Performance of Buildings (Certificates and Inspections) (England and Wales) Regulations 2007 or the Home Report if in relation to a residential property in Scotland.
Map data ©OpenStreetMap contributors.






