
Fairoak Avenue, Newport, NP19

- PROPERTY TYPE
Terraced
- BEDROOMS
4
- BATHROOMS
1
- SIZE
Ask agent
- TENUREDescribes how you own a property. There are different types of tenure - freehold, leasehold, and commonhold.Read more about tenure in our glossary page.
Freehold
Description
GUIDE PRICE £200,000 - £225,000
Number One Agent, Adam Darlow is delighted to offer this four bedroom, terraced property for sale in Newport, with no onward chain.
Fairoak Avenue benefits from excellent transport links, with Newport city centre, Newport railway station, and access to the M4 motorway all within easy reach, offering direct connections to Cardiff, Bristol, and beyond. The area is well-served by a variety of local shops, cafés, and supermarkets, as well as a good selection of primary and secondary schools. Green spaces such as Belle Vue Park and the scenic River Usk walkways are also close by, providing excellent options for leisure and recreation.
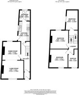
The ground floor of the property offers bright and spacious living accommodation, beginning with a generous open-plan lounge/diner. This welcoming space boasts high ceilings, creating an airy and elegant feel, and provides ample room for both seating and dining areas—perfect for everyday living and entertaining. To the rear of the property is a modern fitted galley kitchen, offering a practical layout with good storage and workspace. Beyond the kitchen is the family bathroom, and from here, there is access out to the rear garden.
The first floor comprises four well-proportioned bedrooms, offering excellent flexibility for a growing family or for those needing additional space for guests or working from home. There are three double bedrooms and a single bedroom, all of which are served by the ground floor bathroom and benefit from good levels of natural light.
The rear garden is fully enclosed, providing a private and secure outdoor area for relaxing or entertaining. A standout feature of the garden is the detached outbuilding, currently set up as a home gym with a conservatory-style frontage. This versatile space offers excellent potential to be used as a home office, entertainment area, hobby room, or additional living space to suit individual needs. The garden itself offers a low-maintenance layout, making it practical for busy households.
This characterful and spacious home combines flexible accommodation with a convenient location and is a fantastic opportunity for those looking to settle in a well-connected area of Newport.
Agents note: The property has been altered (Rear extension) and the owner does not hold building regulation/approval documents for any works carried out, therefore we would inform interested parties to rely on their own inspections, searches and surveys.
Council Tax Band D
All services and mains water are connected to the property.
The broadband internet is provided to the property by FTTP (fibre to the premises), the sellers are subscribed to Sky. Please visit the Ofcom website to check broadband availability and speeds.
The owner has advised that the level of the mobile signal/coverage at the property is good, they are subscribed to EE. Please visit the Ofcom website to check mobile coverage.
Please contact Number One Real Estate for more information or to arrange a viewing.
EPC Rating: C
Parking - On street
- COUNCIL TAXA payment made to your local authority in order to pay for local services like schools, libraries, and refuse collection. The amount you pay depends on the value of the property.Read more about council Tax in our glossary page.
- Band: C
- PARKINGDetails of how and where vehicles can be parked, and any associated costs.Read more about parking in our glossary page.
- On street
- GARDENA property has access to an outdoor space, which could be private or shared.
- Private garden
- ACCESSIBILITYHow a property has been adapted to meet the needs of vulnerable or disabled individuals.Read more about accessibility in our glossary page.
- Ask agent
Energy performance certificate - ask agent
Fairoak Avenue, Newport, NP19
Add an important place to see how long it'd take to get there from our property listings.
__mins driving to your place
Explore area BETA
Newport
Get to know this area with AI-generated guides about local green spaces, transport links, restaurants and more.
Get an instant, personalised result:
- Show sellers you’re serious
- Secure viewings faster with agents
- No impact on your credit score
Your mortgage
Notes
Staying secure when looking for property
Ensure you're up to date with our latest advice on how to avoid fraud or scams when looking for property online.
Visit our security centre to find out moreDisclaimer - Property reference 9dfc1915-8869-40de-920d-16004c903eb9. The information displayed about this property comprises a property advertisement. Rightmove.co.uk makes no warranty as to the accuracy or completeness of the advertisement or any linked or associated information, and Rightmove has no control over the content. This property advertisement does not constitute property particulars. The information is provided and maintained by Number One Real Estate, Newport. Please contact the selling agent or developer directly to obtain any information which may be available under the terms of The Energy Performance of Buildings (Certificates and Inspections) (England and Wales) Regulations 2007 or the Home Report if in relation to a residential property in Scotland.
*This is the average speed from the provider with the fastest broadband package available at this postcode. The average speed displayed is based on the download speeds of at least 50% of customers at peak time (8pm to 10pm). Fibre/cable services at the postcode are subject to availability and may differ between properties within a postcode. Speeds can be affected by a range of technical and environmental factors. The speed at the property may be lower than that listed above. You can check the estimated speed and confirm availability to a property prior to purchasing on the broadband provider's website. Providers may increase charges. The information is provided and maintained by Decision Technologies Limited. **This is indicative only and based on a 2-person household with multiple devices and simultaneous usage. Broadband performance is affected by multiple factors including number of occupants and devices, simultaneous usage, router range etc. For more information speak to your broadband provider.
Map data ©OpenStreetMap contributors.






