Skip to content

Lamsey Lane, Heacham

Guide Price
£125,000
The Norfolk Agents, Dersingham
PROPERTY TYPE

Plot

BEDROOMS

3

BATHROOMS

2

SIZE

Ask agent

Key features

  • BUILDING PLOT WITH PLANNING PERMISSION
  • CONSENT FOR A CONTEMPORARY 3-BEDROOM SINGLE STOREY PROPERTY
  • INDIVIDUAL DESIGN BY AWARD-WINNING LOCAL ARCHITECTS
  • POPULAR COASTAL VILLAGE LOCATION
  • IMMEDIATE 'EXCHANGE OF CONTRACTS' AVAILABLE
  • BEING SOLD VIA SECURE SALE ONLINE BIDDING

Description

Being Sold via Secure Sale online bidding. Terms & Conditions apply. Starting Bid £125,000.

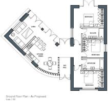
The Norfolk Agents are pleased to offer this individual building plot, with planning consent to construct a modern and highly individual single-storey property, in the popular coastal village of Heacham. Designed by award-winning local architects, the new property offers cutting edge design, incorporating a range of different materials to create a unique external appearance. The interior layout is due to comprise three double bedrooms, with a master en-suite and a separate family bathroom. The reception space is of an open-plan design, which will be filled with natural light throughout the day, with expanses of glazing on the east and west facing elevations. For more information relating to the planning permission, please visit the King's Lynn & West Norfolk Council planning website, quoting reference 24/00373/F.

LOCATION
Heacham is a thriving village in north-west Norfolk, approximately 2 miles from the popular seaside town of Hunstanton and around 12-miles from Kings Lynn, where there is a direct trainline into London Kings Cross, via Cambridge. The renowned North Norfolk coastline is only a short drive along the A149; whilst Burnham Market is around a 20-minute car journey away. Heacham enjoys a wide range of amenities including schools, pubs, restaurants, a golf club and various shops, as well as a lively village hall and social club. The village is also a popular holiday destination, with several miles of beaches and other tourist attractions.

AGENTS NOTE:
Planning permission was granted in March 2025.
The new owner of the property will be liable for a one-off Community Infrastructure Levy (CIL) payment. For more information relating to the CIL payment, please revert to the King's Lynn & West Norfolk Council planning website, quoting reference 24/00373/F.

TENURE: Freehold

COUNCIL TAX BAND: n/a

EPC RATING: n/a

ADDITIONAL AUCTIONEER COMMENTS:
Pattinson Auction are working in Partnership with the marketing agent on this online auction sale and are referred to below as 'The Auctioneer'.

This auction lot is being sold either under conditional (Modern) or unconditional (Traditional) auction terms and overseen by the auctioneer in partnership with the marketing agent.

The property is available to be viewed strictly by appointment only via the Marketing Agent or The Auctioneer. Bids can be made via the Marketing Agents or via The Auctioneers website.

Please be aware that any enquiry, bid or viewing of the subject property will require your details being shared between both any marketing agent and The Auctioneer in order that all matters can be dealt with effectively.

The property is being sold via a transparent online auction.
In order to submit a bid upon any property being marketed by The Auctioneer, all bidders/buyers will be required to adhere to a verification of identity process in accordance with Anti Money Laundering procedures. Bids can be submitted at any time and from anywhere.
Our verification process is in place to ensure that AML procedure are carried out in accordance with the law.

The advertised price is commonly referred to as a ‘Starting Bid’ or ‘Guide Price’ and is accompanied by a ‘Reserve Price’. The ‘Reserve Price’ is confidential to the seller and the auctioneer and will typically be within a range above or below 10% of the ‘Guide Price’ / ‘Starting Bid’.
These prices are subject to change.

An auction can be closed at any time with the auctioneer permitting for the property (the lot) to be sold prior to the end of the auction.

A Legal Pack associated with this particular property is available to view upon request and contains details relevant to the legal documentation enabling all interested parties to make an informed decision prior to bidding. The Legal Pack will also outline the buyers’ obligations and sellers’ commitments. It is strongly advised that you seek the counsel of a solicitor prior to proceeding with any property and/or Land Title purchase.

In order to secure the property and ensure commitment from the seller, upon exchange of contracts the successful bidder will be expected to pay a non-refundable deposit equivalent to 5% of the purchase price of the property. The deposit will be a contribution to the purchase price. A non-refundable reservation fee of up to 6% inc VAT (subject to a minimum of 6,000 inc VAT) is also required to be paid upon agreement of sale. The Reservation Fee is in addition to the agreed purchase price and consideration should be made by the purchaser in relation to any Stamp Duty Land Tax liability associated with overall purchase costs.

Both the Marketing Agent and The Auctioneer may believe necessary or beneficial to the customer to pass their details to third party service suppliers, from which a referral fee may be obtained. There is no requirement or indeed obligation to use these recommended suppliers or services.

1. Purchasers will be asked to produce ID to satisfy money laundering regulations and we would ask for your co-operation in providing the relevant documentation.
2. While we endeavour to make our sales details fair, accurate and reliable, they are only a general guide to the property. If there is any point which is of particular importance to you, please contact the office and we will be pleased to make further investigations.
3. The measurements indicated are supplied for guidance only.
4. Please note we have not tested the services or any of the equipment or appliances in this property. We strongly advise prospective buyers to commission their own survey or service reports before finalising their offer to purchase.
5. THESE PARTICULARS ARE ISSUED IN GOOD FAITH BUT DO NOT FORM PART OF ANY OFFER OR CONTRACT. THE MATTERS REFERRED TO IN THESE PARTICULARS SHOULD BE INDEPENDENTLY VERIFIED BY PROSPECTIVE BUYERS OR TENANTS. THE NORFOLK AGENTS LIMITED NOR ANY OF ITS EMPLOYEES HAS ANY AUTHORITY TO MAKE OR GIVE ANY REPRESENTATION OR WARRANTY WHATSOEVER IN RELATION TO THIS PROPERTY.

Lamsey Lane, Heacham

Approximate location

NEAREST STATIONS

Distances are straight line measurements from the centre of the postcode
  • Kings Lynn Station10.7 miles

About The Norfolk Agents, Dersingham

7b Hunstanton Road, Dersingham, PE31 6HH

The Norfolk Agents are proud to be called a local estate agents for North, South, East, West and Mid Norfolk.

We know Norfolk intimately and can provide first class local knowledge with market leading fees. Your property will be marketed on our new website, the Rightmove portal and across our vast social media pages. We are very friendly and experienced estate agents whose main aim is to make your house sale / move in Norfolk as stress free and cost effective as possible.

We do this by combining the best attributes of pure online estate agents with those we learnt from working in high street agents for many years.

At The Norfolk Agents we believe vendors shouldn't be expected to pay the inflated fees most High Street agencies charge, but that both vendors and buyers alike also deserve to receive a better service than national online agencies currently offer.

The Norfolk Agents combine the best of both worlds, to provide a cost effective fees package that you can control, backed up by high quality marketing and first class customer service, all provided by our truly local friendly and experienced team.

You can trust The Norfolk Agents as we know Norfolk and the true value of your property

Notes

These notes are private, only you can see them.

Disclaimer - Property reference THN_THN_LFSYCL_1042_1203406991. The information displayed about this property comprises a property advertisement. Rightmove.co.uk makes no warranty as to the accuracy or completeness of the advertisement or any linked or associated information, and Rightmove has no control over the content. This property advertisement does not constitute property particulars. The information is provided and maintained by The Norfolk Agents, Dersingham. Please contact the selling agent or developer directly to obtain any information which may be available under the terms of The Energy Performance of Buildings (Certificates and Inspections) (England and Wales) Regulations 2007 or the Home Report if in relation to a residential property in Scotland.

Auction Fees: The purchase of this property may include associated fees not listed here, as it is to be sold via auction. To find out more about the fees associated with this property please call The Norfolk Agents, Dersingham on 01485 506961.

*Guide Price: An indication of a seller's minimum expectation at auction and given as a “Guide Price” or a range of “Guide Prices”. This is not necessarily the figure a property will sell for and is subject to change prior to the auction.

Reserve Price: Each auction property will be subject to a “Reserve Price” below which the property cannot be sold at auction. Normally the “Reserve Price” will be set within the range of “Guide Prices” or no more than 10% above a single “Guide Price.”

Map data ©OpenStreetMap contributors.