Torridon Close, Leicester, LE4 0RH

- PROPERTY TYPE
End of Terrace
- BEDROOMS
3
- BATHROOMS
1
- SIZE
Ask agent
- TENUREDescribes how you own a property. There are different types of tenure - freehold, leasehold, and commonhold.Read more about tenure in our glossary page.
Freehold
Key features
- REF - DA1155
- NO CHAIN
- Corner Plot
- Cul De Sac Location
- Garage
- Blank Canvass
Description
REF - DA1155
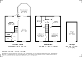
Entrance Hall
Step through the sleek double-glazed front door and boom — you’re in! The entrance hall sets the tone straight away: light, welcoming and with space that actually works. Kick off your shoes, hang up your coat, and know that the big storage cupboard is ready to swallow up all the bags, boots and “where-do-I-put-this” bits of life. Stairs sweep you up to the first floor, while doors tempt you towards the kitchen (snacks) or the cloakroom (convenience).
Cloakroom
Downstairs convenience at its finest! Brightened by a front-facing window, this handy little room packs a punch with a sleek wash hand basin, toilet, and a radiator to keep it cosy. Perfect for guests, quick pit-stops, or simply avoiding the trek upstairs — stylish, practical, and always appreciated.
Kitchen/Breakfast Room - 4.11m x 3.25m (13'6"Max x 10'8"Max)
The heart of the home, and this one’s ready for action. Brightened by a big rear window, it’s fitted with a range of wall and base units to keep everything neat and tidy. A breakfast bar is the perfect spot for morning coffee or a cheeky glass of wine while dinner’s bubbling away. There’s space for all your trusty appliances, a practical 1½ sink and drainer for the washing up (if the dishwasher hasn’t got there first), and easy-to-clean tiled flooring that’s as stylish as it is sensible. With a rear door leading straight outside, summer BBQs just got a whole lot easier
Lounge - 6.5m x 3.05m (21'4" x 10'0")
This is where cosy nights in and big family gatherings come to life. A large front window floods the space with natural light, while the feature electric fire is just begging for you to curl up in front of with a blanket (and maybe a cheeky box set binge). Two radiators keep things toasty, and when the sun’s shining? Throw open the rear patio doors and step straight into the conservatory — it’s indoor-outdoor living at the flick of a handl
Conservatory - 2.82m x 2.97m (9'3"Max x 9'9")
Sunshine, peace and a touch of extra space — this conservatory has it all. Wrapped in double-glazed windows, it’s the perfect spot to soak up the light year-round, whether you’re turning it into a leafy plant haven, a playroom for the kids, or just a calm corner for your morning coffee. With its own radiator and lighting, it’s not just for summer — this is a room you’ll actually use all year long.
Landing
Upstairs, the landing isn’t just a pass-through — it’s a super practical hub. Loft access (with its own ladder) gives you bonus storage for the Christmas tree, suitcases, or those “we’ll use it one day” boxes. Sleek sliding-door cupboards keep clutter out of sight, while an extra cupboard neatly hides away the boiler. From here, doors open to three bedrooms and the bathroom — everything right where you need it.
Bedroom - 3.73m x 3.28m (12'3" x 10'9"Max into wardrobes)
A proper grown-up retreat. The front-facing window brings in loads of natural light, while the radiator keeps things snug when the evenings draw in. Storage lovers rejoice — not one but two double wardrobes plus overhead cupboards mean there’s a place for everything (and no excuse for that “chair-drobe” of clothes!). Spacious, bright, and ready to be styled as your personal sanctuary.
Bedroom - 3.76m x 3.23m (12'4" x 10'7")
The biggest of the bunch when it comes to floor space — this room is a blank canvas waiting for your touch. With a front-facing window keeping it bright and airy, and a radiator to keep it cosy, you’ve got the freedom to create whatever you want. Dream master suite? Generous kids’ room with space to play? Stylish guest retreat? The choice is yours — the only limit is your imagination.
Bedroom - 2.64m x 2.34m (8'8" x 7'8")
Smaller than the other two bedrooms, but full of potential! A rear-facing double-glazed window keeps it light and airy, while the radiator ensures it stays cosy. Perfect as a kids’ room, a home office, or a peaceful reading nook — this space is ready to adapt to your lifestyle.
Bathroom
All the essentials — plus a little style! Natural light streams in through the rear window, keeping things bright, while the radiator keeps it warm and inviting. A sleek bath with an over-head shower, toilet, and wash hand basin make morning routines a breeze, and wet walling keeps cleaning easy. Add the extractor fan, and you’ve got a bathroom that’s practical, polished, and ready for action.
Outside
Sitting proudly on a corner plot, this home enjoys a bigger-than-average garden — plenty of space for play, BBQs, or a weekend gardening project. The front is low-maintenance, bordered by walls and a gated entrance leading straight to the garage, keeping things neat and secure.
Step around the side gate and you’ll find the rear garden, thoughtfully designed for both fun and function. A sunny patio area is perfect for outdoor dining or morning coffee, while the lawn offers space for kids, pets, or just stretching out in the sun. An outside tap adds convenience, and a handy outbuilding provides extra storage for garden tools, bikes, or summer toys. Practical, versatile, and ready for all your outdoor plans
Garage
A proper practical bonus! This single garage comes with an up-and-over door, power, and lighting — perfect for parking, a workshop, or extra storage. Whether it’s keeping your car safe, your bikes dry, or all those “where-do-I-put-this?” items, it’s as useful as it is convenient.
- COUNCIL TAXA payment made to your local authority in order to pay for local services like schools, libraries, and refuse collection. The amount you pay depends on the value of the property.Read more about council Tax in our glossary page.
- Band: A
- PARKINGDetails of how and where vehicles can be parked, and any associated costs.Read more about parking in our glossary page.
- Garage
- GARDENA property has access to an outdoor space, which could be private or shared.
- Yes
- ACCESSIBILITYHow a property has been adapted to meet the needs of vulnerable or disabled individuals.Read more about accessibility in our glossary page.
- Ask agent
Torridon Close, Leicester, LE4 0RH
Add an important place to see how long it'd take to get there from our property listings.
__mins driving to your place
Get an instant, personalised result:
- Show sellers you’re serious
- Secure viewings faster with agents
- No impact on your credit score
Your mortgage
Notes
Staying secure when looking for property
Ensure you're up to date with our latest advice on how to avoid fraud or scams when looking for property online.
Visit our security centre to find out moreDisclaimer - Property reference S1424981. The information displayed about this property comprises a property advertisement. Rightmove.co.uk makes no warranty as to the accuracy or completeness of the advertisement or any linked or associated information, and Rightmove has no control over the content. This property advertisement does not constitute property particulars. The information is provided and maintained by eXp UK, East Midlands. Please contact the selling agent or developer directly to obtain any information which may be available under the terms of The Energy Performance of Buildings (Certificates and Inspections) (England and Wales) Regulations 2007 or the Home Report if in relation to a residential property in Scotland.
*This is the average speed from the provider with the fastest broadband package available at this postcode. The average speed displayed is based on the download speeds of at least 50% of customers at peak time (8pm to 10pm). Fibre/cable services at the postcode are subject to availability and may differ between properties within a postcode. Speeds can be affected by a range of technical and environmental factors. The speed at the property may be lower than that listed above. You can check the estimated speed and confirm availability to a property prior to purchasing on the broadband provider's website. Providers may increase charges. The information is provided and maintained by Decision Technologies Limited. **This is indicative only and based on a 2-person household with multiple devices and simultaneous usage. Broadband performance is affected by multiple factors including number of occupants and devices, simultaneous usage, router range etc. For more information speak to your broadband provider.
Map data ©OpenStreetMap contributors.




