Oporto, Ferreira, Portugal
- PROPERTY TYPE
Apartment
- BEDROOMS
3
- BATHROOMS
3
- SIZE
1,367 sq ft
127 sq m
Description
Last Units Available – Secure Your New Home Today!
Are you looking for a modern, spacious, and well-located apartment? This 3-bedroom apartment currently under construction, located in a quiet and safe area of Paços de Ferreira, offers everything you need to live with comfort, quality, and style. Whether for personal residence or investment, this property is a unique opportunity to customize the interior to your taste during the construction phase.
Main Features:
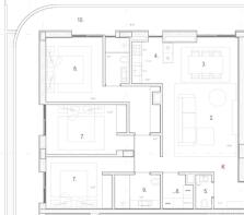
126.13 m² of living area, with spacious and well-distributed rooms
3 generous bedrooms, including a suite with built-in wardrobe, designed for your comfort and privacy
Open-plan living room and kitchen, creating a functional and integrated space, perfect for family moments
34 m² balcony, ideal for outdoor meals, leisure area, or a vertical garden
Fully equipped kitchen with modern, energy-efficient appliances
Private garage, with direct and easy access to the building
3 m² storage room, ideal for additional storage
Pre-installed air conditioning, ensuring thermal comfort all year round
High-quality finishes and contemporary materials that combine aesthetics and durability
Building with elevator and modern architecture, designed with everyday comfort and functionality in mind
As the property is still under construction, buyers will have the opportunity to personalize some interior finishes, adapting the space to their own style and preferences.
Strategic Location:
Located in a peaceful residential area with excellent access to main roads, this property is close to schools, gyms, supermarkets, pharmacies, local shops, and essential services. Here, you’ll find the perfect balance between tranquility and urban proximity.
Ideal for families, young couples, or investors who value spacious properties, high-quality construction, and a privileged location.
Expected completion soon – don’t miss your chance to reserve before construction is finalized!
For more information, detailed floor plans, or to schedule a visit to the construction site, contact us today. We provide full support throughout the process with professionalism and transparency.
Detailed Areas:
Living area: 126.13 m²
Balcony: 34 m²
Storage room: 3 m²
Garage: Included
#ref: 145118
Oporto, Ferreira, Portugal
NEAREST AIRPORTS
Distances are straight line measurements- Porto(International)16.7 miles
Advice on buying Portuguese property
Learn everything you need to know to successfully find and buy a property in Portugal.
Notes
This is a property advertisement provided and maintained by IAD, Porto (reference 145118) and does not constitute property particulars. Whilst we require advertisers to act with best practice and provide accurate information, we can only publish advertisements in good faith and have not verified any claims or statements or inspected any of the properties, locations or opportunities promoted. Rightmove does not own or control and is not responsible for the properties, opportunities, website content, products or services provided or promoted by third parties and makes no warranties or representations as to the accuracy, completeness, legality, performance or suitability of any of the foregoing. We therefore accept no liability arising from any reliance made by any reader or person to whom this information is made available to. You must perform your own research and seek independent professional advice before making any decision to purchase or invest in overseas property.





