2 bedroom semi-detached house for sale
Waverley Road, KT22

- PROPERTY TYPE
Semi-Detached
- BEDROOMS
2
- BATHROOMS
1
- SIZE
789 sq ft
73 sq m
- TENUREDescribes how you own a property. There are different types of tenure - freehold, leasehold, and commonhold.Read more about tenure in our glossary page.
Freehold
Key features
- TWO BEDROOM COTTAGE WITH SIGNIFICANT POTENTIAL
- PLANNING PERMISSION GRANTED 2022/3142
- SOUTH FACING CORNER PLOT
- OFF STREET PARKING FOR TWO CARS
- OFFERED WITH NO ONWARD CHAIN
Description
With plans approved (2022/3142), this is a fantastic opportunity for anyone looking to develop their own home in the heart of Oxshott. Currently with two bedrooms and one bathroom, the plans allow for a two storey side extension to create a spacious kitchen/breakfast room with utility plus a third bedroom with en suite. The property is situated in an ever popular residential area with a south facing rear garden and off-street parking for two cars.
HOW TO GET THERE
From our office in Oxshott, head down Oakshade Road and turn left at the junction onto Steels Lane. After 400 meters, turn left onto Kenilworth Avenue then left on to Waverley Road.
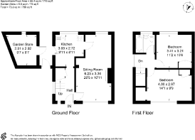
ENTRANCE HALL
Front door into hallway with ample natural light, with stairs up and door to:
LIVING ROOM
6.23m x 3.34m (20'5" x 10'11")
Through lounge with tiled fireplace housing gas fire. Door to:
KITCHEN
3.03m x 2.72m (9'11" x 8'11")
Range of wall and base units with worktop over, surface mounted stainless steel sink with drainer, freestanding electric cooker and washing machine. Door to side access path.
STAIRS TO FIRST FLOOR LANDING
BEDROOM ONE
4.30m x 2.97m (14'1" x 9'8")
With built-in storage cupboard.
BEDROOM TWO
3.41m x 3.21m (11'2" x 10'6")
Rear aspect with built-in storage cupboard.
BATHROOM
Rear aspect, panel enclosed bath with shower over, pedestal wash hand basin and low level W.C.
REAR GARDEN
Mainly laid to lawn with mature hedges and flower borders, partially wall-enclosed to create a quiet, private haven. Brick built shed.
FRONT GARDEN
Mature borders, off-street parking and access gate to rear garden.
COUNCIL TAX
BAND E 2025/2026 £2984.73
- COUNCIL TAXA payment made to your local authority in order to pay for local services like schools, libraries, and refuse collection. The amount you pay depends on the value of the property.Read more about council Tax in our glossary page.
- Ask agent
- PARKINGDetails of how and where vehicles can be parked, and any associated costs.Read more about parking in our glossary page.
- Driveway
- GARDENA property has access to an outdoor space, which could be private or shared.
- Front garden,Private garden,Rear garden,Back garden
- ACCESSIBILITYHow a property has been adapted to meet the needs of vulnerable or disabled individuals.Read more about accessibility in our glossary page.
- Ask agent
Waverley Road, KT22
Add an important place to see how long it'd take to get there from our property listings.
__mins driving to your place
Get an instant, personalised result:
- Show sellers you’re serious
- Secure viewings faster with agents
- No impact on your credit score
Your mortgage
Notes
Staying secure when looking for property
Ensure you're up to date with our latest advice on how to avoid fraud or scams when looking for property online.
Visit our security centre to find out moreDisclaimer - Property reference 20wav. The information displayed about this property comprises a property advertisement. Rightmove.co.uk makes no warranty as to the accuracy or completeness of the advertisement or any linked or associated information, and Rightmove has no control over the content. This property advertisement does not constitute property particulars. The information is provided and maintained by Boyce Thornton, Oxshott. Please contact the selling agent or developer directly to obtain any information which may be available under the terms of The Energy Performance of Buildings (Certificates and Inspections) (England and Wales) Regulations 2007 or the Home Report if in relation to a residential property in Scotland.
*This is the average speed from the provider with the fastest broadband package available at this postcode. The average speed displayed is based on the download speeds of at least 50% of customers at peak time (8pm to 10pm). Fibre/cable services at the postcode are subject to availability and may differ between properties within a postcode. Speeds can be affected by a range of technical and environmental factors. The speed at the property may be lower than that listed above. You can check the estimated speed and confirm availability to a property prior to purchasing on the broadband provider's website. Providers may increase charges. The information is provided and maintained by Decision Technologies Limited. **This is indicative only and based on a 2-person household with multiple devices and simultaneous usage. Broadband performance is affected by multiple factors including number of occupants and devices, simultaneous usage, router range etc. For more information speak to your broadband provider.
Map data ©OpenStreetMap contributors.







