Bute Gardens, Wallington

- PROPERTY TYPE
Semi-Detached
- BEDROOMS
5
- BATHROOMS
2
- SIZE
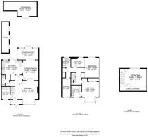
1,992 sq ft
185 sq m
- TENUREDescribes how you own a property. There are different types of tenure - freehold, leasehold, and commonhold.Read more about tenure in our glossary page.
Freehold
Description
This lovely property offers spacious accommodation for all the family, with a spacious and inviting living room, and a modern and open plan kitchen diner providing a great social space to entertain family and friends. In addition to this, there is also a conservatory, a utility room that could have flexible use as a home office or play room, and a downstairs WC for added convenience. Upstairs there are five well proportioned bedrooms plus two bathrooms over two floors, with the primary bedroom benefiting from an en-suite bathroom. Another great feature is ample storage space, with two large airing cupboards on the 1st floor and eaves storage space on the top floor. Outside there is a large driveway providing off street parking at the front, and a well maintained south facing rear garden which has a detached workshop at the rear of the garden. A viewing is recommended to appreciate the size and space this splendid property has to offer!
Accommodation - Double glazed entrance porch, wooden front door with stained glass feature window.
Entrance Hall
Radiator, wood flooring.
Utility Room
Radiator, tiled flooring, laminate worktop with space for tumble dryer and washing machine, double glazed window to front aspect.
Living Room
Cast iron fireplace, radiator, varnished floorboards, double glazed bay window to front aspect, double doors opening out to....
Dining Room
Wood flooring, folding doors opening out to
Conservatory
Tiled flooring, radiator, double glazed French doors opening out to garden.
Kitchen Breakfast Room
Range of modern fitted kitchen units and drawers, wood worktop, inset butler sink with chrome mixer tap, space for cooker with chrome extractor hood above, integrated dishwasher, integrated under counter freezer, breakfast bar, tiled splashback, double glazed window to rear aspect, space for tall fridge freezer, pantry cupboard, understairs cupboard.
Downstairs WC
WC, vanity wash hand basin with chrome mixer tap and storage below, radiator, part tiled walls, tiled flooring, extractor fan.
Stairs to 1st floor landing
Airing cupboard, large boiler cupboard with ample storage space.
Bedroom One
Range of fitted wardrobes, radiator, fitted carpet, double glazed bay window to front aspect
En-suite Bathroom
Three-piece suite comprising of panel enclosed bath with shower screen and chrome taps, thermostatic shower with rain showerhead and hand shower attachment, WC, pedestal wash hand basin with Victorian style chrome taps, heated chrome towel rail, part tiled walls, tiled flooring, extractor fan, double glazed obscure window to front aspect.
Bedroom Two
Radiator, painted floorboards, double glazed window to rear aspect
Bedroom Three
Radiator, fitted carpet, double glazed window to rear aspect
Bathroom
Three-piece suite comprising of bath with shower screen and chrome mixer tap, 'Mira' electric shower, WC, pedestal wash hand basin with chrome mixer tap, heated towel rail, tiled walls and flooring, double glazed obscure window to rear aspect.
Bedroom Four
(Currently used as a dressing room)
Radiator, fitted carpet, double glazed window to front aspect
Stairs to 2nd floor landing
Bedroom Five
Radiator, fitted carpet, double glazed window to rear aspect, storage cupboard
Outside
Paved driveway providing off street parking for 2 to 3 cars
Rear Garden
Large south aspect garden with paved patio area, lawn section, shed, detached garage, decking area.
BUYER’S INFORMATION
Under UK law, estate agents are legally required to conduct Anti-Money Laundering (AML) checks on buyers and sellers to comply with regulations. These checks are mandatory, and estate agents can face penalties if they fail to perform them. We use the services of a third party to help conduct these checks thoroughly. As such there is a charge of £36 including vat, per person. Please note, we are unable to issue a memorandum of sale until these checks are complete
Brochures
Bute Gardens, WallingtonBrochure- COUNCIL TAXA payment made to your local authority in order to pay for local services like schools, libraries, and refuse collection. The amount you pay depends on the value of the property.Read more about council Tax in our glossary page.
- Band: E
- PARKINGDetails of how and where vehicles can be parked, and any associated costs.Read more about parking in our glossary page.
- Driveway
- GARDENA property has access to an outdoor space, which could be private or shared.
- Yes
- ACCESSIBILITYHow a property has been adapted to meet the needs of vulnerable or disabled individuals.Read more about accessibility in our glossary page.
- Ask agent
Bute Gardens, Wallington
Add an important place to see how long it'd take to get there from our property listings.
__mins driving to your place
Get an instant, personalised result:
- Show sellers you’re serious
- Secure viewings faster with agents
- No impact on your credit score
Your mortgage
Notes
Staying secure when looking for property
Ensure you're up to date with our latest advice on how to avoid fraud or scams when looking for property online.
Visit our security centre to find out moreDisclaimer - Property reference 34128686. The information displayed about this property comprises a property advertisement. Rightmove.co.uk makes no warranty as to the accuracy or completeness of the advertisement or any linked or associated information, and Rightmove has no control over the content. This property advertisement does not constitute property particulars. The information is provided and maintained by Cromwells Estate Agents, Wallington. Please contact the selling agent or developer directly to obtain any information which may be available under the terms of The Energy Performance of Buildings (Certificates and Inspections) (England and Wales) Regulations 2007 or the Home Report if in relation to a residential property in Scotland.
*This is the average speed from the provider with the fastest broadband package available at this postcode. The average speed displayed is based on the download speeds of at least 50% of customers at peak time (8pm to 10pm). Fibre/cable services at the postcode are subject to availability and may differ between properties within a postcode. Speeds can be affected by a range of technical and environmental factors. The speed at the property may be lower than that listed above. You can check the estimated speed and confirm availability to a property prior to purchasing on the broadband provider's website. Providers may increase charges. The information is provided and maintained by Decision Technologies Limited. **This is indicative only and based on a 2-person household with multiple devices and simultaneous usage. Broadband performance is affected by multiple factors including number of occupants and devices, simultaneous usage, router range etc. For more information speak to your broadband provider.
Map data ©OpenStreetMap contributors.






