Skip to content

244, High Street, Laurencekirk, AB301BP

Guide Price
£102,000
Future Property Auctions, Glasgow
PROPERTY TYPE

Land

SIZE

Ask agent

Key features

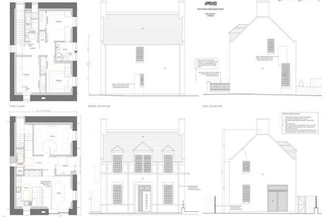
  • FANTASTIC DEVELOPMENT OPPORTUNITY*** FULL BUILDING*** Former Cadet Hall located in the town of Laurencekirk with planning permission for 2 residential homes. Aberdeenshire Council ref:APP/2024/1551
  • ***RARE AUCTION ENTRY - PRICED TO SELL*** Former Army Cadet Drill Hall and ancillary accommodation, arranged across ground and first floors. Was sold £225,000 previously***
  • ***HUGE DEVELOPMENT POTENTIAL*** Planning permission was recently granted for the conversion of the drill hall and new build to create 2 three bedroom dwellings***
  • The town offers a range of essential amenities such as food shops, restaurants and schools such as Laurencekirk Primary School and the local secondary school Mearns Academy.
  • Laurencekirk is a small town in the historic county of Kincardineshire, Scotland. Laurencekirk train station is short distance from the property. Aberdeen city centre is a 35 minute car journey away.

Description


** SALE BY AUCTION - 10 October 2025 - Deadline for Offers **

EXCELLENT DEVELOPMENT OPPORTUNITY*** DETACHED FULL BUILDING WITH PLANNING PERMISSION*** Former Cadet Hall located in the town of Laurencekirk, Kincardineshire. Planning permission granted for conversion of the drill hall into a 3 bed dwelling. Also the creation of a new 3 bed separate dwelling. May be suitable for multiple other uses - subject to consents. Former Army Cadet Drill Hall and ancillary accommodation, arranged across ground and first floors. Accessed from both the High Street, and via a lane to the rear, the property comprises a former townhouse that has been converted and extended for its previous use. At the front, the property provides former meeting rooms and offices across ground and first floors totaling 1,404 sq ft (130.39 sq m). The first floor is currently inaccessible due to the removal of the staircase, this is due to the deterioration of the property. This front element is therefore effectively in shell condition with stone elevations and original sash windows. The rear of the property comprises a ground floor extension totalling 4,966 sq ft (461.38 sq m). This includes a kitchen, former drill hall, an armoury and a full 25m indoor firing range. HUGE DEVELOPMENT POTENTIAL*** ***IDEAL DEVLOPMENT SITE*** SOLD WITH PLANNING PERMISSION APP/2024/1551

Laurencekirk is a small town in the historic county of Kincardineshire, Scotland. Laurencekirk is in easy reach of the A90 Aberdeen/Dundee. The town offers a range of essential amenities such as food shops, restaurants and schools such as Laurencekirk Primary School and the local secondary school Mearns Academy. Laurencekirk train station is short distance from the property. Aberdeen city centre is a 35 minute car journey away.

Auction Details
10 October 2025, 12pm
Deadline for Offers

How to Bid Now
Submit an enquiry now or visit our website for full details on how to BID ON THIS PROPERTY.

Future Property Auctions - Scotland's Largest Land and Property Auction House. Over 400 lots auctioned every 2 weeks including flats, houses, land & commercial.

Get a Fast Sale and a Fair Price with Future Property Auctions. Contact Us now for a FREE Auction Valuation.

244, High Street, Laurencekirk, AB301BP

Approximate location

NEAREST STATIONS

Distances are straight line measurements from the centre of the postcode
  • Laurencekirk Station0.6 miles

About Future Property Auctions, Glasgow

241 Kilmarnock Road Glasgow G41 3JF
Industry affiliations:Industry affiliation logo 0Industry affiliation logo 1

We are one of Scotland's LARGEST dedicated residential and commercial Property Auctioneer with a growing UK wide presence. Our regular programme of large scale property auctions feature lots from throughout Scotland and the wider UK as well as regular properties available for purchase by Private Treaty and Tender.

Our website receives over 300,000 views and 50,000+ users, on average, every month and with an extensive national database of over 100,000 buyers we can help you acheive a fast sale at a fair price. We utilise comprehensive advertising backed up by superb service and an effective 24 hour on-line bidding facility.

Our Glasgow Property Sales Offices are located in the heart of Glasgow's South Side only 5 minutes from the city centre. We have additional sales offices in Edinburgh, Aberdeen & Manchester.

Each on of our auctions feature a mix of Commercial and Residential property as well as land and other development opportunities. Properties are accepted from both Private and Corporate Vendors alike and we welcome enquires from all potential clients. Auctions are a great tool for property owners who are looking a faster sale in this slow market.

Our experienced team of Valuers and Auctioneers can offer vendors a complete auction service. Upon request we will provide FREE no obligation Auction Appraisals for vendors who may consider auctioning property. An Auction Appraisal will detail the current market demand and likely auction selling price for which a property may achieve at one of our live auction events. Vendors can then decide whether or not they wish to enter their property into a forthcoming auction. For more information please do not hesitate to contact a member of our sales team.

Notes

These notes are private, only you can see them.

Disclaimer - Property reference 14100718. The information displayed about this property comprises a property advertisement. Rightmove.co.uk makes no warranty as to the accuracy or completeness of the advertisement or any linked or associated information, and Rightmove has no control over the content. This property advertisement does not constitute property particulars. The information is provided and maintained by Future Property Auctions, Glasgow. Please contact the selling agent or developer directly to obtain any information which may be available under the terms of The Energy Performance of Buildings (Certificates and Inspections) (England and Wales) Regulations 2007 or the Home Report if in relation to a residential property in Scotland.

Auction Fees: The purchase of this property may include associated fees not listed here, as it is to be sold via auction. To find out more about the fees associated with this property please call Future Property Auctions, Glasgow on 0141 632 6599.

*Guide Price: An indication of a seller's minimum expectation at auction and given as a “Guide Price” or a range of “Guide Prices”. This is not necessarily the figure a property will sell for and is subject to change prior to the auction.

Reserve Price: Each auction property will be subject to a “Reserve Price” below which the property cannot be sold at auction. Normally the “Reserve Price” will be set within the range of “Guide Prices” or no more than 10% above a single “Guide Price.”

Map data ©OpenStreetMap contributors.