
149 Old Castle Road, Cathcart, Glasgow, G44 5TJ

- PROPERTY TYPE
Terraced
- BEDROOMS
2
- BATHROOMS
1
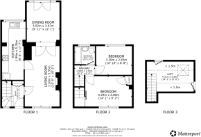
- SIZE
775 sq ft
72 sq m
- TENUREDescribes how you own a property. There are different types of tenure - freehold, leasehold, and commonhold.Read more about tenure in our glossary page.
Freehold
Description
Benefitting from a generous plot within in a sought after Southside address, perfectly-placed for gaining almost immediate access to local amenities is this well-appointed two bedroom terraced home offering comfortable family accommodation.
Old Castle Road is a highly desirable address and offers lovely levels of peacefulness despite an extremely central location near many local amenities. From primary and secondary schools to shops, supermarkets and leisure facilities, Cathcart is an extremely handy locale which is popular with couples, growing families and downsizers. This area is also great for gaining quick, easy access to major road networks for those who require to commute throughout the central belt for business.
Internally, the home offers spacious and versatile accommodation formed over two principal levels and benefits from enclosed garden grounds both front and rear. The attached photographs, floorplan & HD video tour will give a good indication to the size and layout of the home, however, in brief the accommodation extends to; Entrance hall with under stairs storage, lounge with adjoining dining room and a modern kitchen. Stairs lead to the upper level of the home where you will find a family bathroom with shower over bath and two good sized bedrooms with the master housing a staircase that leads to a floored loft space. As mentioned previously, the home for sale offers a large rear garden that is predominantly laid to lawn with a designated patio seating area and garden shed. Off street parking facilities could be created at the rear of the property, entry would be from the access lane which is owned by the residents of this row of terraced housing.
EPC Rating: C
- COUNCIL TAXA payment made to your local authority in order to pay for local services like schools, libraries, and refuse collection. The amount you pay depends on the value of the property.Read more about council Tax in our glossary page.
- Band: D
- PARKINGDetails of how and where vehicles can be parked, and any associated costs.Read more about parking in our glossary page.
- Yes
- GARDENA property has access to an outdoor space, which could be private or shared.
- Yes
- ACCESSIBILITYHow a property has been adapted to meet the needs of vulnerable or disabled individuals.Read more about accessibility in our glossary page.
- Ask agent
Energy performance certificate - ask agent
149 Old Castle Road, Cathcart, Glasgow, G44 5TJ
Add an important place to see how long it'd take to get there from our property listings.
__mins driving to your place
Get an instant, personalised result:
- Show sellers you’re serious
- Secure viewings faster with agents
- No impact on your credit score
Your mortgage
Notes
Staying secure when looking for property
Ensure you're up to date with our latest advice on how to avoid fraud or scams when looking for property online.
Visit our security centre to find out moreDisclaimer - Property reference b56eae4c-5f6f-400b-b285-2c255d140053. The information displayed about this property comprises a property advertisement. Rightmove.co.uk makes no warranty as to the accuracy or completeness of the advertisement or any linked or associated information, and Rightmove has no control over the content. This property advertisement does not constitute property particulars. The information is provided and maintained by Clyde Property, Shawlands. Please contact the selling agent or developer directly to obtain any information which may be available under the terms of The Energy Performance of Buildings (Certificates and Inspections) (England and Wales) Regulations 2007 or the Home Report if in relation to a residential property in Scotland.
*This is the average speed from the provider with the fastest broadband package available at this postcode. The average speed displayed is based on the download speeds of at least 50% of customers at peak time (8pm to 10pm). Fibre/cable services at the postcode are subject to availability and may differ between properties within a postcode. Speeds can be affected by a range of technical and environmental factors. The speed at the property may be lower than that listed above. You can check the estimated speed and confirm availability to a property prior to purchasing on the broadband provider's website. Providers may increase charges. The information is provided and maintained by Decision Technologies Limited. **This is indicative only and based on a 2-person household with multiple devices and simultaneous usage. Broadband performance is affected by multiple factors including number of occupants and devices, simultaneous usage, router range etc. For more information speak to your broadband provider.
Map data ©OpenStreetMap contributors.








