
3 bedroom detached house for sale
Church Lane, Rudston, YO25 4UY

- PROPERTY TYPE
Detached
- BEDROOMS
3
- BATHROOMS
2
- SIZE
Ask agent
- TENUREDescribes how you own a property. There are different types of tenure - freehold, leasehold, and commonhold.Read more about tenure in our glossary page.
Freehold
Key features
- Detached Property
- Countryside Views
- Well Presented & Modern
- Village Location
- Character & Charm
- Three Double Bedrooms
Description
A chance to own a piece of history, Autumn Lodge dating back to the 19th Century, is a beautifully presented and well established three bedroom detached home. Over the years the current owners have modified and upgraded throughout to turn into a stunning home which has been very well loved. Nestled in a peaceful village location, the property boasts three good size reception rooms with an abundance of space throughout as well as the added bonus of countryside views to the front and rear aspect. Combining historic character with warmth and practicality of a modern home, we highly recommend viewings to full appreciate what the property has to offer.
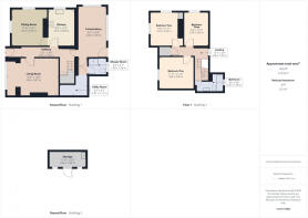
The property briefly comprises:- entrance hall, large lounge area, kitchen, dining room, stairs leading to a bathroom which then go onto three good size bedrooms, sun room, downstairs shower room, storage cupboard, garden, out building with water and power supply, shed, side access, garage and off street parking.
LOCATION
The pretty village of Rudston lies in the Gypsey Race Valley on the B1253 Malton to Bridlington road. The village is easily accessible to the market towns of Malton, Bridlington and Driffield.
THE ACCOMMODATION COMPRISES:-
ENTRANCE HALL
Door to the front aspect, coving, stairs to the first floor landing, understairs cupboard, radiator, telephone point and power points.
LOUNGE- 16'3 (4.96m) x 12'0 (3.67m)
Large window to the front aspect, coving, gas fire with hearth, radiator, TV point and power points.
KITCHEN- 8'5 (2.57m) x 11'9 (3.59m)
Window to the side aspect, coving, a range of wall and base units, tiled walls, sink with drainer unit, integrated fridge/freezer, integrated microwave, plumbing and space for dishwasher, electric hob, electric oven, extractor fan, tiled flooring, radiator and power points.
DINING ROOM- 11'6 (3.52m) x 12'1 (3.69m)
Window to the rear and side aspect, coving, radiator, TV point and power points.
CONSERVATORY- 9'4 (2.86m) x 16'4 (5.00m)
Window to the side and rear aspect, door to the rear aspect, tiled flooring, radiator, TV point and power points.
DOWNSTAIRS SHOWER ROOM- 6'2 (1.90m) x 5'1 (1.56m)
Opaque window to the rear aspect, fully tiled walls, three piece bathroom suite comprising:- low flush WC, sink with pedestal, fully tiled shower cubicle with electric shower, laminated flooring and heated towel rail.
UTILITY ROOM
Boiler, plumbed for washing machine, space for fridge/freezer, tiled flooring and power points.
FIRST FLOOR LANDING
Power points and storage cupboard with lighting.
BEDROOM ONE- 11'11 (3.65m) x 11'2 (3.42m)
Window to the front aspect, built in storage cupboards, radiator and power points.
BEDROOM TWO- 9'9 (2.97m) x 11'11 (3.65m)
Window to the rear and side aspect, coving, built in storage cupboard, radiator and power points.
BEDROOM THREE- 8'5 (2.58m) x 11'9 (3.60m)
Window to the rear, coving, radiator and power points.
BATHROOM- 9'6 (2.91m) x 3'6 (1.09m)
Window to the rear aspect, fully tiled walls, three piece bathroom suite comprising:- panelled bath with shower attachment, sink with pedestal, low flush WC, laminated flooring and radiator.
GARDEN
South-West facing garden which is mainly patio, gravelled area, flower bed borders, outbuilding, outside shed with power point, outside water tap, side access and stunning countryside views.
STORAGE- 11'11 (3.66m) x 5'3 (1.60m)
Versatile room which could be used as storage or home office/study with door to the side aspect and windows leading out to the garden, electric shower, sink with drainer unit, tiled flooring, lighting and power points.
GARAGE
Up and over door.
PARKING
Gravelled off street parking for multiple cars.
SERVICES
Gas central heating with combi boiler, septic tank, mains electric and water.
TENURE
The property is Freehold and offered with the benefit of vacant possession upon completion.
COUNCIL TAX BAND
Council Tax is payable to the East Riding of Yorkshire Council. The property is shown on the Council Tax Property Bandings List in Valuation Band 'D'.
EPC- D
VIEWING
Strictly by appointment with the sole agents.
FREE VALUATION
If you are looking to sell your own property, we will be very happy to provide you with a free, no obligation market appraisal and valuation. We offer very competitive fees and an outstanding personal service that is rated 5 star by our fully verified clients.
ANTI-MONEY LAUNDERING (AML) REGULATIONS
In accordance with the Money Laundering, Terrorist Financing and Transfer of Funds (Information on the Payer) Regulations 2017, we are required to carry out identity checks on all purchasers. A charge of £25 + VAT per person will be payable by the purchaser to cover the cost of these checks. This fee is non-refundable and is payable upon acceptance of an offer.
Brochures
Brochure 1- COUNCIL TAXA payment made to your local authority in order to pay for local services like schools, libraries, and refuse collection. The amount you pay depends on the value of the property.Read more about council Tax in our glossary page.
- Band: D
- PARKINGDetails of how and where vehicles can be parked, and any associated costs.Read more about parking in our glossary page.
- Yes
- GARDENA property has access to an outdoor space, which could be private or shared.
- Yes
- ACCESSIBILITYHow a property has been adapted to meet the needs of vulnerable or disabled individuals.Read more about accessibility in our glossary page.
- Ask agent
Church Lane, Rudston, YO25 4UY
Add an important place to see how long it'd take to get there from our property listings.
__mins driving to your place
Get an instant, personalised result:
- Show sellers you’re serious
- Secure viewings faster with agents
- No impact on your credit score
Your mortgage
Notes
Staying secure when looking for property
Ensure you're up to date with our latest advice on how to avoid fraud or scams when looking for property online.
Visit our security centre to find out moreDisclaimer - Property reference dah_1604014528. The information displayed about this property comprises a property advertisement. Rightmove.co.uk makes no warranty as to the accuracy or completeness of the advertisement or any linked or associated information, and Rightmove has no control over the content. This property advertisement does not constitute property particulars. The information is provided and maintained by Dee Atkinson & Harrison, Driffield. Please contact the selling agent or developer directly to obtain any information which may be available under the terms of The Energy Performance of Buildings (Certificates and Inspections) (England and Wales) Regulations 2007 or the Home Report if in relation to a residential property in Scotland.
*This is the average speed from the provider with the fastest broadband package available at this postcode. The average speed displayed is based on the download speeds of at least 50% of customers at peak time (8pm to 10pm). Fibre/cable services at the postcode are subject to availability and may differ between properties within a postcode. Speeds can be affected by a range of technical and environmental factors. The speed at the property may be lower than that listed above. You can check the estimated speed and confirm availability to a property prior to purchasing on the broadband provider's website. Providers may increase charges. The information is provided and maintained by Decision Technologies Limited. **This is indicative only and based on a 2-person household with multiple devices and simultaneous usage. Broadband performance is affected by multiple factors including number of occupants and devices, simultaneous usage, router range etc. For more information speak to your broadband provider.
Map data ©OpenStreetMap contributors.









