
Stannochy Farm, Brechin, Angus, DD9
- PROPERTY TYPE
Plot
- SIZE
Ask agent
Key features
- Serviced Plots Ready for immediate Development
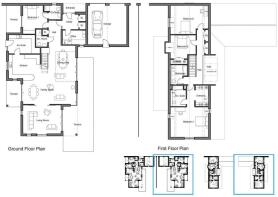
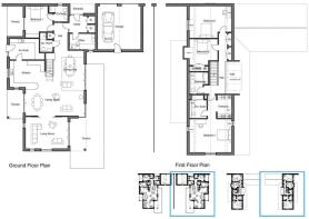
- Detailed architectural drawings showcase the quality, finish, and craftsmanship of each home
- Full Planning Approval
- Beautiful Countryside Views
- Excellent access to Brechin & Surrounding Areas
- 753 m² / 0.0753 hectares
Description
Exceptional Opportunity – Serviced Building Plots with Planning Permission in Brechin
We are delighted to offer seven individual serviced building plots, each with full planning permission for a single detached dwelling, beautifully located on the outskirts of the historic Cathedral city of Brechin.
Each plot features full planning permission for a unique, architect-designed home, thoughtfully integrated into the natural rural landscape. Three of the plots incorporate elements of the existing farm steading, blending character with contemporary living. All designs have been carefully considered to create spacious, high-quality family homes.
Individual house designs tailored to each plot
Full planning permission granted
Serviced plots ready for development
Stunning countryside views
Convenient access to Brechin and surrounding areas
Detailed architectural drawings are available for each home, showcasing the exceptional quality, finish, and attention to detail.
Plot 5 RESERVED
Brochures
Brochure 1Stannochy Farm, Brechin, Angus, DD9
NEAREST STATIONS
Distances are straight line measurements from the centre of the postcode- Montrose Station8.0 miles
Notes
Disclaimer - Property reference 29443293. The information displayed about this property comprises a property advertisement. Rightmove.co.uk makes no warranty as to the accuracy or completeness of the advertisement or any linked or associated information, and Rightmove has no control over the content. This property advertisement does not constitute property particulars. The information is provided and maintained by Thorntons Property Services, Dundee. Please contact the selling agent or developer directly to obtain any information which may be available under the terms of The Energy Performance of Buildings (Certificates and Inspections) (England and Wales) Regulations 2007 or the Home Report if in relation to a residential property in Scotland.
Map data ©OpenStreetMap contributors.









