
2 bedroom flat for sale
Victoria Court, Hereford, HR4

- PROPERTY TYPE
Flat
- BEDROOMS
2
- BATHROOMS
2
- SIZE
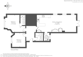
927 sq ft
86 sq m
Key features
- Leasehold Term 999 years from 27/07/2005
- Ground floor apartment
- Two double bedrooms
- open-plan living/kitchen/dining area
- Modern fitted kitchen with integrated appliances
- Private rear courtyard garden
- Allocated parking space
Description
An attractive and spacious two-bedroom, two-bathroom ground floor apartment situated in the prestigious Old Eye Hospital development, one of Hereford’s most sought-after and characterful residential conversions.
Property Details
Located within walking distance of Hereford city centre, this stylish apartment combines the elegance of a period building with the comfort and practicality of modern living. Set in a secure, exclusive development, the property enjoys a peaceful setting while being just moments from shops, restaurants, cafés, and transport links.
The apartment is positioned on the ground floor, offering step-free access and generous proportions throughout. With its tall sash windows, high ceilings, and open-plan design, the interior is light, airy, and ideal for contemporary living.
Accommodation Comprises:
Entrance Hall / Foyer: Welcoming entrance space with storage and access to all rooms.
Open Plan Kitchen / Living / Dining Area: A large, versatile space perfect for entertaining and modern day-to-day living. The kitchen is fully fitted with integrated appliances, ample cupboard space, and a breakfast bar. The living area features French doors leading out to the private rear courtyard garden, ideal for outdoor dining or relaxation.
Utility Room: Separate and discreet, with plumbing for washing machine and extra storage.
Bedroom One (Master): A generous double room with built-in wardrobes and a modern en-suite shower room.
Bedroom Two: Another comfortable double bedroom, ideal for guests, family members, or as a home office.
Family Bathroom: A stylish and spacious bathroom with full-sized bath, WC, and basin, finished with contemporary tiling.
External Features:
Private Courtyard Garden: A rare feature for city apartments, the rear garden provides a private and low-maintenance outdoor space to enjoy.
Allocated Parking Space: Located within the development’s private parking area, with additional visitor parking available.
Secure Communal Entrance: Gated and well-maintained for peace of mind.
Location:
This apartment is ideally situated to make the most of central Hereford living. Just a short stroll from Hereford Cathedral, the city’s high street, the Old Market shopping development, and a wide selection of local amenities, including cafés, restaurants, supermarkets, and leisure facilities.
The property also offers excellent access to transport links including the Hereford railway station (approximately 0.7 miles away), bus routes, and major road connections to Worcester, Ross-on-Wye, Leominster, and beyond.
Brochures
More details from Chancellors- COUNCIL TAXA payment made to your local authority in order to pay for local services like schools, libraries, and refuse collection. The amount you pay depends on the value of the property.Read more about council Tax in our glossary page.
- Band: C
- PARKINGDetails of how and where vehicles can be parked, and any associated costs.Read more about parking in our glossary page.
- Off street
- GARDENA property has access to an outdoor space, which could be private or shared.
- Private garden
- ACCESSIBILITYHow a property has been adapted to meet the needs of vulnerable or disabled individuals.Read more about accessibility in our glossary page.
- Ask agent
Victoria Court, Hereford, HR4
Add an important place to see how long it'd take to get there from our property listings.
__mins driving to your place
Get an instant, personalised result:
- Show sellers you’re serious
- Secure viewings faster with agents
- No impact on your credit score
Your mortgage
Notes
Staying secure when looking for property
Ensure you're up to date with our latest advice on how to avoid fraud or scams when looking for property online.
Visit our security centre to find out moreDisclaimer - Property reference 5957862. The information displayed about this property comprises a property advertisement. Rightmove.co.uk makes no warranty as to the accuracy or completeness of the advertisement or any linked or associated information, and Rightmove has no control over the content. This property advertisement does not constitute property particulars. The information is provided and maintained by Chancellors, Hereford. Please contact the selling agent or developer directly to obtain any information which may be available under the terms of The Energy Performance of Buildings (Certificates and Inspections) (England and Wales) Regulations 2007 or the Home Report if in relation to a residential property in Scotland.
*This is the average speed from the provider with the fastest broadband package available at this postcode. The average speed displayed is based on the download speeds of at least 50% of customers at peak time (8pm to 10pm). Fibre/cable services at the postcode are subject to availability and may differ between properties within a postcode. Speeds can be affected by a range of technical and environmental factors. The speed at the property may be lower than that listed above. You can check the estimated speed and confirm availability to a property prior to purchasing on the broadband provider's website. Providers may increase charges. The information is provided and maintained by Decision Technologies Limited. **This is indicative only and based on a 2-person household with multiple devices and simultaneous usage. Broadband performance is affected by multiple factors including number of occupants and devices, simultaneous usage, router range etc. For more information speak to your broadband provider.
Map data ©OpenStreetMap contributors.








