
Land for sale
Land to the Rear, 3A & B Church Street
- PROPERTY TYPE
Land
- BEDROOMS
3
- BATHROOMS
2
- SIZE
Ask agent
Key features
- Residential Building Plot
- Rear of 3A & B Church Street, Hemswell
- Excellent Rural Location
- Pleasant Open Views
- Planning Permission Granted
- Three Bedroom Detached Family Home
- Detached Garage & Driveway
- GIA Approx. 1636 Square Feet/152 Square Metres
- Three Reception Rooms & Kitchen
Description
DIRECTIONS Heading North out of Lincoln on the A15, continue along the A15 for some time, heading towards Hemswell Cliff. At the roundabout at Caneby Corner, turn left onto the A631 and at the next roundabout take the third turning onto the B1398 towards Hemswell. Upon reaching Hemswell, turn left onto Bunkers Hill, proceeding to the center of the Village, bringing you onto Church Street.
LOCATION Hemswell is a Village in a Civil Parish in the West Lindsey District of Lincolnshire and is situated just North of the A631 on the Lincoln Escarpment two miles West from Caneby Corner and seven miles East from Gainsborough.
PLANNING APPLICATION Date of application: Application number: 147233
Planning application to erect 2no. dwellings with garages included and installation of a private driveway. Land to the rear of 3A, 3B and 5B Church Street, Hemswell. Planning Application number: WL-2025-00434. Discharge conditions for Plots 1 & 2. Planning Application WL-2025-00758 NMA for proposed carriages for 4A, 3A & Plot 1 to be separated.
NOTE The Plot will have a right of way over the private drive. The private drive that extends beyond Plot 1 is to a second plot within the neighboring garden that will be constructed in the future. The private drive will therefore terminate just after the entrance onto the drive of this plot as marked by the yellow posts. There is also an alternative ground floor layout that allows for a ground floor bedroom and shower room for future living which could be considered and is included within the sales particulars.
ENTRANCE HALL
CLOAKROOM
LOUNGE
DINING ROOM
STUDY
KITCHEN
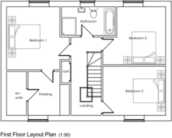
FIRST FLOOR LANDING
BEDROOM
DRESSING ROOM
EN-SUITE
BEDROOM
BEDROOM
BATHROOM
GARAGE
Brochures
4 PAGE BROCHURELand to the Rear, 3A & B Church Street
NEAREST STATIONS
Distances are straight line measurements from the centre of the postcode- Kirton Lindsey Station5.4 miles
Notes
Disclaimer - Property reference 102125034969. The information displayed about this property comprises a property advertisement. Rightmove.co.uk makes no warranty as to the accuracy or completeness of the advertisement or any linked or associated information, and Rightmove has no control over the content. This property advertisement does not constitute property particulars. The information is provided and maintained by Mundys, Lincoln. Please contact the selling agent or developer directly to obtain any information which may be available under the terms of The Energy Performance of Buildings (Certificates and Inspections) (England and Wales) Regulations 2007 or the Home Report if in relation to a residential property in Scotland.
Map data ©OpenStreetMap contributors.










