
Lettoch Terrace, Pitlochry, PH16

- PROPERTY TYPE
Semi-Detached
- BEDROOMS
3
- BATHROOMS
1
- SIZE
1,109 sq ft
103 sq m
- TENUREDescribes how you own a property. There are different types of tenure - freehold, leasehold, and commonhold.Read more about tenure in our glossary page.
Freehold
Key features
- Charming Semi-Detached Villa in a Sought-After Pitlochry Location
- Bright and well-proportioned throughout
- Generous lounge enjoys ample natural light and offers a cosy space for relaxing or entertaining
- Well-sized double bedroom located on the ground floor
- Landing leads to two further bedrooms
- Family bathroom
- Private garden area
- Fantastic opportunity to acquire a charming home in one of Perthshire’s most attractive towns
Description
Charming Semi-Detached Villa in a Sought-After Pitlochry Location
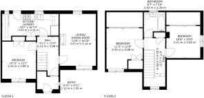
Located in the heart of the scenic Highland town of Pitlochry, this delightful semi-detached villa offers a comfortable and versatile layout across a single storey with an attic conversion. Nestled within a quiet and well-established residential area, the property is surrounded by a variety of traditional and contemporary homes, contributing to a welcoming neighbourhood atmosphere.
The accommodation is bright and well-proportioned throughout. On the ground floor, the home opens with an entrance vestibule leading into a spacious hallway with a staircase to the upper level. The generous lounge enjoys ample natural light and offers a cosy space for relaxing or entertaining. A well-sized double bedroom is also located on this level, providing flexibility for use as a principal bedroom or guest accommodation. The kitchen, located to the rear of the property, offers a practical layout with ample worktop space and storage, and could easily be modernised to suit individual taste.
Upstairs, the landing leads to two further bedrooms, both of which enjoy natural light and pleasant outlooks. A family bathroom with WC is also located on this level and completes the accommodation.
Externally, the property is accessed via an adopted road and benefits from a private garden area, offering potential for landscaping or outdoor seating. On-street parking is available nearby.
Pitlochry itself is a vibrant and highly desirable town, renowned for its natural beauty and excellent range of amenities including shops, cafés, restaurants, primary and secondary schools, and transport links via rail and road. The location is ideal for those looking to enjoy a peaceful lifestyle while remaining within easy reach of services and outdoor recreational opportunities.
This is a fantastic opportunity to acquire a charming home in one of Perthshire’s most attractive towns, with scope for further enhancement to create a truly special property.
EPC Rating: D
- COUNCIL TAXA payment made to your local authority in order to pay for local services like schools, libraries, and refuse collection. The amount you pay depends on the value of the property.Read more about council Tax in our glossary page.
- Band: D
- PARKINGDetails of how and where vehicles can be parked, and any associated costs.Read more about parking in our glossary page.
- Ask agent
- GARDENA property has access to an outdoor space, which could be private or shared.
- Private garden
- ACCESSIBILITYHow a property has been adapted to meet the needs of vulnerable or disabled individuals.Read more about accessibility in our glossary page.
- Ask agent
Energy performance certificate - ask agent
Lettoch Terrace, Pitlochry, PH16
Add an important place to see how long it'd take to get there from our property listings.
__mins driving to your place
Get an instant, personalised result:
- Show sellers you’re serious
- Secure viewings faster with agents
- No impact on your credit score
Your mortgage
Notes
Staying secure when looking for property
Ensure you're up to date with our latest advice on how to avoid fraud or scams when looking for property online.
Visit our security centre to find out moreDisclaimer - Property reference 9b9b056e-1b6e-4c20-8fbf-ebb89b4871c6. The information displayed about this property comprises a property advertisement. Rightmove.co.uk makes no warranty as to the accuracy or completeness of the advertisement or any linked or associated information, and Rightmove has no control over the content. This property advertisement does not constitute property particulars. The information is provided and maintained by Clyde Property, Perth. Please contact the selling agent or developer directly to obtain any information which may be available under the terms of The Energy Performance of Buildings (Certificates and Inspections) (England and Wales) Regulations 2007 or the Home Report if in relation to a residential property in Scotland.
*This is the average speed from the provider with the fastest broadband package available at this postcode. The average speed displayed is based on the download speeds of at least 50% of customers at peak time (8pm to 10pm). Fibre/cable services at the postcode are subject to availability and may differ between properties within a postcode. Speeds can be affected by a range of technical and environmental factors. The speed at the property may be lower than that listed above. You can check the estimated speed and confirm availability to a property prior to purchasing on the broadband provider's website. Providers may increase charges. The information is provided and maintained by Decision Technologies Limited. **This is indicative only and based on a 2-person household with multiple devices and simultaneous usage. Broadband performance is affected by multiple factors including number of occupants and devices, simultaneous usage, router range etc. For more information speak to your broadband provider.
Map data ©OpenStreetMap contributors.






