
3 bedroom detached house for sale
Cornflower Close, Ainsdale, Southport, Merseyside, PR8

- PROPERTY TYPE
Detached
- BEDROOMS
3
- BATHROOMS
3
- SIZE
Ask agent
- TENUREDescribes how you own a property. There are different types of tenure - freehold, leasehold, and commonhold.Read more about tenure in our glossary page.
Freehold
Key features
- Detached three bedroom modern family home
- Situated on a quiet, sought-after new development in Ainsdale
- Spacious lounge and open-plan kitchen/diner with French doors to garden
- Master bedroom with en-suite shower room
- Two further well-proportioned bedrooms
- Stylish family bathroom and downstairs WC
- Driveway providing off-street parking for multiple vehicles
- Private and enclosed rear garden
- Energy-efficient and move-in ready
- Walking distance to Ainsdale Village, train station, schools and amenities
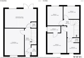
Description
Nestled within a popular new development in the heart of Ainsdale, this beautifully presented three bedroom detached home on Cornflower Close offers the perfect blend of modern style and family-friendly living.
Set back with a quiet close, the property benefits from off-street parking for multiple vehicles and a well-maintained rear garden – ideal for both relaxing and entertaining.
Step inside and you're greeted by a spacious entrance hallway with access to a convenient downstairs WC. To the front of the home is a generous living room, perfect for cosy evenings, while to the rear you'll find the stunning open-plan kitchen/dining room – the true heart of the home – featuring French doors opening onto the garden and plenty of natural light.
Upstairs, the main bedroom benefits from its own en-suite shower room, while two further well-proportioned bedrooms provide flexible space for a growing family, guests, or home working. A sleek, modern family bathroom completes the first-floor layout.
This property offers all the perks of a recently built home – energy-efficient features, double glazing, modern fixtures and fittings – all set within a sought-after neighbourhood just a short distance from Ainsdale Village, transport links, schools and local amenities.
- COUNCIL TAXA payment made to your local authority in order to pay for local services like schools, libraries, and refuse collection. The amount you pay depends on the value of the property.Read more about council Tax in our glossary page.
- Band: B
- PARKINGDetails of how and where vehicles can be parked, and any associated costs.Read more about parking in our glossary page.
- Yes
- GARDENA property has access to an outdoor space, which could be private or shared.
- Yes
- ACCESSIBILITYHow a property has been adapted to meet the needs of vulnerable or disabled individuals.Read more about accessibility in our glossary page.
- Ask agent
Cornflower Close, Ainsdale, Southport, Merseyside, PR8
Add an important place to see how long it'd take to get there from our property listings.
__mins driving to your place
Get an instant, personalised result:
- Show sellers you’re serious
- Secure viewings faster with agents
- No impact on your credit score

Your mortgage
Notes
Staying secure when looking for property
Ensure you're up to date with our latest advice on how to avoid fraud or scams when looking for property online.
Visit our security centre to find out moreDisclaimer - Property reference SPT250521. The information displayed about this property comprises a property advertisement. Rightmove.co.uk makes no warranty as to the accuracy or completeness of the advertisement or any linked or associated information, and Rightmove has no control over the content. This property advertisement does not constitute property particulars. The information is provided and maintained by Ball & Percival, Ainsdale. Please contact the selling agent or developer directly to obtain any information which may be available under the terms of The Energy Performance of Buildings (Certificates and Inspections) (England and Wales) Regulations 2007 or the Home Report if in relation to a residential property in Scotland.
*This is the average speed from the provider with the fastest broadband package available at this postcode. The average speed displayed is based on the download speeds of at least 50% of customers at peak time (8pm to 10pm). Fibre/cable services at the postcode are subject to availability and may differ between properties within a postcode. Speeds can be affected by a range of technical and environmental factors. The speed at the property may be lower than that listed above. You can check the estimated speed and confirm availability to a property prior to purchasing on the broadband provider's website. Providers may increase charges. The information is provided and maintained by Decision Technologies Limited. **This is indicative only and based on a 2-person household with multiple devices and simultaneous usage. Broadband performance is affected by multiple factors including number of occupants and devices, simultaneous usage, router range etc. For more information speak to your broadband provider.
Map data ©OpenStreetMap contributors.





